Connect

Find us on...

Dashboard

Login using...

Shawn Bengtson

Office Broker - DRE 01236964

  • Office 760-805-7199
Questions?

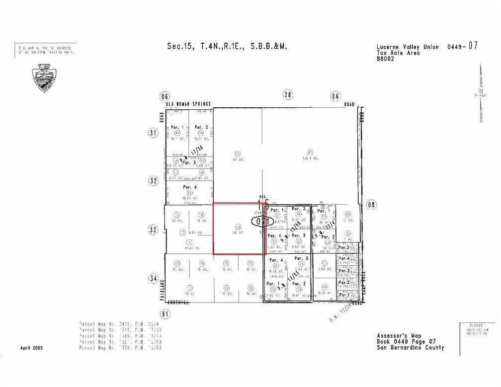
Joshua Avenue, Lucerne Valley – $229,800

  • $230k Price
  • 40 Acres
  • 150 DOM
  • $230k Price
  • 40 Acres
  • 150 DOM

Joshua Avenue

This 40 AC of open land ready for your own use and your dreams to make this your own. Great mountain views. Current Zoning is LV/AG (Lucerne Valley/Agricultural Use). Land may have been used for hay/alfalfa production when the area was the home to the dairy industry. Zoning allows for agricultural and animal keeping use as well as a dwelling (see more below). Property is located in a NMTC (New Market Tax Credit Zone) designed to encourage business start-ups to hire local talent. Other potential use: development of low=income housing project. (May require zoning use amendments at buyer cost. LIHTC may be available, buyer to verify/apply). Property also has 1/16th Mineral Rights with ownership. Allowable/Potential Uses: Residential, ADU, Dependent Housing, Guest Housing, Secondary Units, Lodging (e.g. BnB) Residential Care Facilities, Recreational Vehicle Use, Agritourism, Agriculture, Nursery/Landscape materials, Camp Grounds, Private Gun Club (Skeet/Trap), Equestrian/Livestock, Alternative energy production, Wireless Communication Facility, Medical use (e.g. rehabilitation centers), Recycling Facilities, Sewage Treatment/Disposal facilities), Storage/warehouse facility. Lucerne Valley Area is conveniently located close to Victorville/Hesperia/Apple Valley metro area and the Mountain resorts of Big Bear and Lake Arrowhead. The area is experiencing explosive land sales and population growth because of affordability and proximity to most major areas of Southern California. Lucerne Valley makes a great destination for those seeking open space at an affordable price, yet within reach of modern conveniences and services. Historically, Lucerne Valley is known as the last battle in California between indigenous peoples and settlers. Lucerne Valley is also home to Mitsubishi gypsum and concrete works. * No assigned street address number. Numerical reference is part of the APN.

Essential Information

  • MLS® #OC25175074
  • Price$229,800
  • Bathrooms0.00
  • Acres40.00
  • TypeLand
  • StatusActive

Community Information

  • AddressJoshua Avenue
  • AreaLUV - Lucerne Valley
  • CityLucerne Valley
  • CountySan Bernardino
  • Zip Code92356

Amenities

  • UtilitiesWater Not Available
  • ViewMountain(s)

Exterior

Lot Description

Agricultural, Corner Lot, Corners Marked, Lot Over 40000 Sqft, Rectangular Lot

Additional Information

  • Date ListedAugust 2nd, 2025
  • Days on Market150
  • ZoningLV/AG

Listing Details

  • AgentGregg Cochran
  • OfficeSmokeTree Commercial
Please provide a valid email address.

Gregg Cochran, SmokeTree Commercial.

Based on information from California Regional Multiple Listing Service, Inc. as of January 1st, 2026 at 1:55pm PST. This information is for your personal, non-commercial use and may not be used for any purpose other than to identify prospective properties you may be interested in purchasing. Display of MLS data is usually deemed reliable but is NOT guaranteed accurate by the MLS. Buyers are responsible for verifying the accuracy of all information and should investigate the data themselves or retain appropriate professionals. Information from sources other than the Listing Agent may have been included in the MLS data. Unless otherwise specified in writing, Broker/Agent has not and will not verify any information obtained from other sources. The Broker/Agent providing the information contained herein may or may not have been the Listing and/or Selling Agent.