Connect

Find us on...

Dashboard

Login using...

Shawn Bengtson

Office Broker - DRE 01236964

  • Office 760-805-7199
Questions?

27442 Calle Arroyo, San Juan Capistrano – $6,250

  • $6.3k Price
  • .19 Acres
  • 138 DOM
  • $6.3k Price
  • .19 Acres
  • 138 DOM

27442 Calle Arroyo

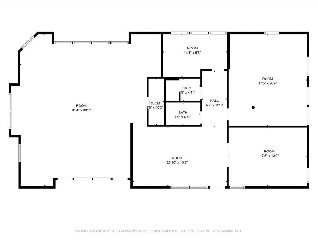
Prime Ground Floor Suite, Ideal for Medical, Steps to Parking! This Rare Opportunity to Lease a Spacious 2,086 Sq. Ft. Commercial Office in the Heart of San Juan Capistrano Offers Convenient Access to the I-5 Freeway and San Joaquin 73-Fwy Toll Road. Located Within the Ortega Planned Community, the Suite Features a Flexible Layout Perfect for Medical, Retail, or Office Use. It Can Be Divided Into Separate Suites With Individual Entrances, Providing Options for Business Growth or Rental Income. Zoned for Medical Use, It Is an Ideal Choice for Dental, GP, Pediatrics, Dermatology, Physical Therapy, Acupuncture, Counseling, and Wellness Practices, and Sits Next to Established Medical and Dental Practices, Which Supports Built-In Referral Potential Offering Modernized Facilities With Beautiful Spanish-Style Architecture, Vaulted Ceilings, Extensive Windows, and a Full Bathroom With a Shower for Added Convenience. The Location Offers Simple Patient Wayfinding With Easy Access to Ortega Highway and the I-5, and Signage Opportunities Are Available, Subject to Approvals. Ample Nearby Parking Makes for Easy In-and-Out Access for Patients and Staff. This Professional Setting Is Surrounded by High-End Dining Options Like Haven Craft Kitchen + Bar, Café Tu Tu Tango, and Bad to the Bone Barbecue, as Well as Several Retail Amenities, Providing Excellent Visibility and Accessibility. Whether You’re Looking to Establish a Medical Practice or a Professional Office, This Suite Offers a Prime Location in a Thriving Business District.

Essential Information

  • MLS® #OC25198887
  • Price$6,250
  • Bathrooms0.00
  • Acres0.19
  • Year Built1981
  • TypeCommercial Lease
  • Sub-TypeBusiness
  • StatusActive

Community Information

  • Address27442 Calle Arroyo
  • AreaJS - San Juan South
  • CitySan Juan Capistrano
  • CountyOrange
  • Zip Code92675

Amenities

Utilities

Cable Available, Electricity Connected, Sewer Connected, Water Connected

Interior

  • HeatingCentral
  • CoolingCentral Air
  • # of Stories2

Exterior

  • Lot DescriptionStreet Level, Level, Near Park

Additional Information

  • Date ListedSeptember 5th, 2025
  • Days on Market138

Listing Details

  • AgentDevin Doherty
  • OfficeeXp Realty of California Inc
Please provide a valid email address.

Devin Doherty, eXp Realty of California Inc.

Based on information from California Regional Multiple Listing Service, Inc. as of January 22nd, 2026 at 8:30pm PST. This information is for your personal, non-commercial use and may not be used for any purpose other than to identify prospective properties you may be interested in purchasing. Display of MLS data is usually deemed reliable but is NOT guaranteed accurate by the MLS. Buyers are responsible for verifying the accuracy of all information and should investigate the data themselves or retain appropriate professionals. Information from sources other than the Listing Agent may have been included in the MLS data. Unless otherwise specified in writing, Broker/Agent has not and will not verify any information obtained from other sources. The Broker/Agent providing the information contained herein may or may not have been the Listing and/or Selling Agent.