Connect

Find us on...

Dashboard

Login using...

Shawn Bengtson

Office Broker - DRE 01236964

  • Office 760-805-7199
Questions?

16601 Pacific Avenue, Sunset Beach – $6,500,000

  • 4 Beds
  • 4 Baths
  • 3,816 Sqft
  • .07 Acres
  • 4 Beds
  • 4 Baths
  • 3,816 Sqft
  • .07 Acres

16601 Pacific Avenue

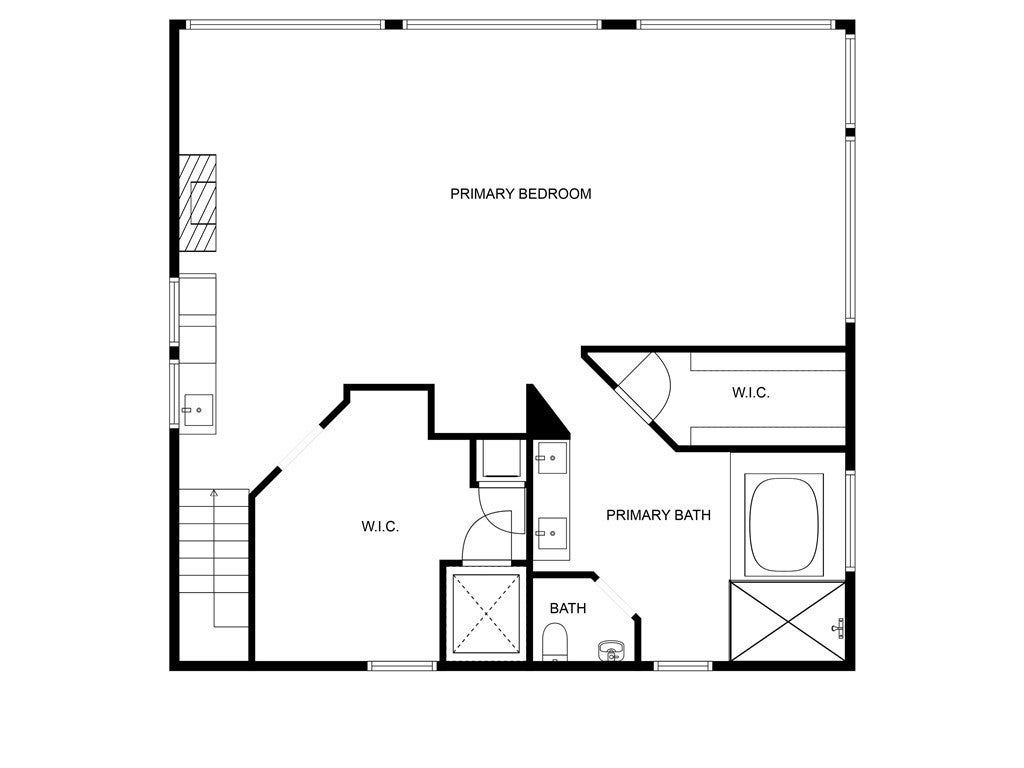
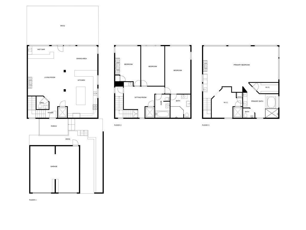
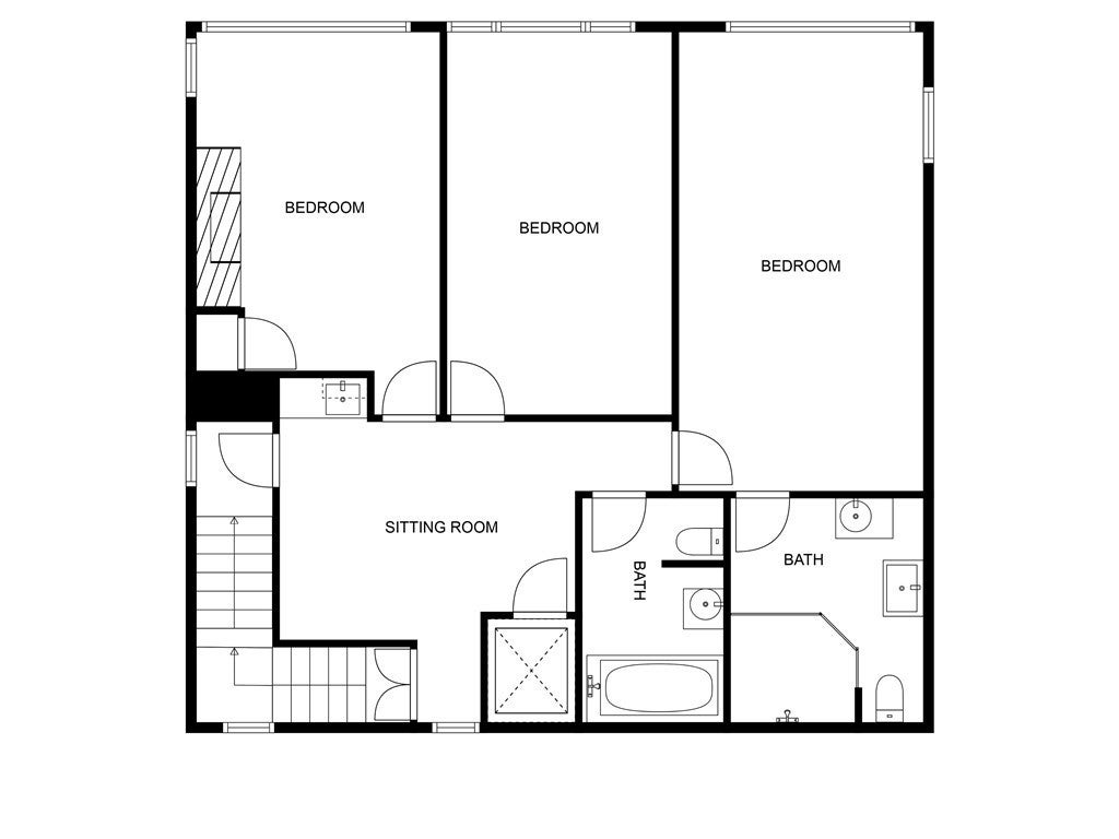
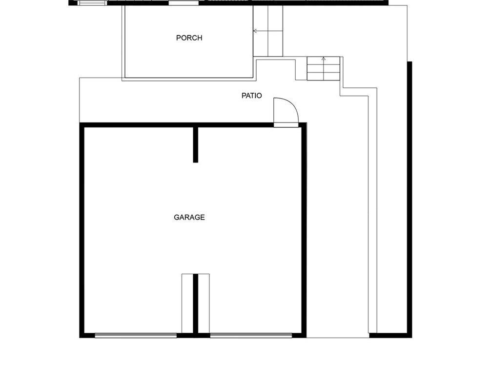
Fantastic New Listing on the Sand in the Sunset Beach area of Huntington Beach! Where is Sunset Beach? It is a quaint & sleepy area of Huntington Beach located just south of Surfside Colony and North of Bolsa Chica State Beach. Due to limited public parking, the soft sands & surfable waves of Sunset Beach are refreshingly less crowded than other Southern California beaches. Those who appreciate privacy are drawn to this remarkable stretch of Orange County coastline, yet it is only a 20 minute drive to Long Beach Airport and less than an hour from your friends & family in most areas of Los Angeles County. This beautiful oceanfront home has an ELEVATOR to all three levels. It was constructed in 1988 and has been substantially enhanced in recent years. It sits on a rare “Sunny” 40 foot wide corner lot with amazing over-the-water sunset views and has approximately 3816 square feet of living area. The full width 3rd floor Primary Suite has panoramic whitewater, sunset, and Catalina views which must be seen to be appreciated… the views can be enjoyed from the sectional sofa area (with fireplace), presidential desk, and the king size bed. Other luxury features in the primary suite include beverage fridge, dishwasher, built-in coffee maker & microwave, two walk-in closets, separate tub/shower, and washer/dryer area. The 2nd floor has an office (could be bedroom), sitting area, and guest room that share a nautical theme hall bath, plus a VIP bedroom with ensuite accessible bathroom with roll-in shower. The entire first floor is an open concept “great room” with fireplace, sofa area, countertop bar (with two wine/beverage fridges, sink, & ice maker), oceanview dining area, and gourmet kitchen with 8 burner range, wok burner, built in refrigerator, 2 dishwashers, beverage fridge, and enough counter space to serve all that you desire to invite to your “get togethers”. Bi-fold doors lead to the spacious patio on the sand and a planted dune which provides both ambiance and privacy. The owner recently had two enclosed garage spaces fabricated, and there is additional parking on site for up to 3 additional cars. This truly special beach home has the combination of parking, bedrooms, and living space which will allow you to entertain all the family & friends you care to invite… If you have been looking for a move-in ready detached house on the sand in Coastal Orange County with all the features anyone could desire in a beach home, this is quite possibly the one.

Essential Information

  • MLS® #OC25218920
  • Price$6,500,000
  • Bedrooms4
  • Bathrooms4.00
  • Full Baths2
  • Half Baths1
  • Square Footage3,816
  • Acres0.07
  • Year Built1988
  • TypeResidential
  • Sub-TypeSingle Family Residence
  • StyleContemporary, Mediterranean
  • StatusActive Under Contract

Community Information

  • Address16601 Pacific Avenue
  • SubdivisionSunset Beach (SUNB)
  • CitySunset Beach
  • CountyOrange
  • Zip Code90742

Area

17 - Northwest Huntington Beach

Amenities

  • Parking Spaces5
  • # of Garages2
  • PoolNone

Utilities

Electricity Connected, Natural Gas Connected, Sewer Connected, Water Connected

Parking

Driveway Level, Driveway, Garage, Guest, Private

Garages

Driveway Level, Driveway, Garage, Guest, Private

View

Catalina, City Lights, Coastline, Mountain(s), Neighborhood, Ocean, Water, Panoramic

Waterfront

Beach Access, Beach Front, Ocean Access, Ocean Front, Ocean Side Of Highway

Interior

  • InteriorCarpet, Bamboo, Stone
  • CoolingNone
  • FireplaceYes
  • # of Stories3
  • StoriesThree Or More

Interior Features

Breakfast Bar, Built-in Features, Ceiling Fan(s), Granite Counters, Multiple Staircases, Stone Counters, Recessed Lighting, Primary Suite, Walk-In Closet(s), All Bedrooms Up, Bar, Beamed Ceilings, Cathedral Ceiling(s), Elevator, High Ceilings, Instant Hot Water, Multiple Primary Suites, Open Floorplan, Unfurnished, Wet Bar, Wired for Sound

Appliances

Double Oven, Dishwasher, Freezer, Disposal, Gas Oven, Gas Range, Gas Water Heater, Microwave, Refrigerator, Range Hood, Tankless Water Heater, Vented Exhaust Fan, Water To Refrigerator, Water Heater, Dryer, Washer, Ice Maker, SixBurnerStove, Warming Drawer

Heating

Central, Forced Air, Fireplace(s), Natural Gas

Fireplaces

Gas, Gas Starter, Living Room, Den, Primary Bedroom

Exterior

  • Exterior FeaturesLighting, Rain Gutters
  • RoofRolled/Hot Mop
  • FoundationSlab

Exterior

Drywall, Concrete, Stucco, Block, Glass

Lot Description

Sprinklers In Rear, Sprinklers In Front, Landscaped, Sprinklers Timer, Corner Lot, Near Park, Near Public Transit, Sprinklers On Side, Sprinkler System, Street Level

Windows

Double Pane Windows, Bay Window(s), Tinted Windows

Construction

Drywall, Concrete, Stucco, Block, Glass

School Information

  • DistrictHuntington Beach Union High

Additional Information

  • Date ListedSeptember 17th, 2025
  • Days on Market53

Listing Details

  • AgentScot Campbell
  • OfficeColdwell Banker-Campbell Rltrs
Please provide a valid email address.

Price Change History for 16601 Pacific Avenue, Sunset Beach, (MLS® #OC25218920)

Date Details Change
Status Changed from Active to Active Under Contract

Scot Campbell, Coldwell Banker-Campbell Rltrs.

Based on information from California Regional Multiple Listing Service, Inc. as of November 11th, 2025 at 7:56am PST. This information is for your personal, non-commercial use and may not be used for any purpose other than to identify prospective properties you may be interested in purchasing. Display of MLS data is usually deemed reliable but is NOT guaranteed accurate by the MLS. Buyers are responsible for verifying the accuracy of all information and should investigate the data themselves or retain appropriate professionals. Information from sources other than the Listing Agent may have been included in the MLS data. Unless otherwise specified in writing, Broker/Agent has not and will not verify any information obtained from other sources. The Broker/Agent providing the information contained herein may or may not have been the Listing and/or Selling Agent.