Connect

Find us on...

Dashboard

Login using...

Shawn Bengtson

Office Broker - DRE 01236964

  • Office 760-805-7199
Questions?

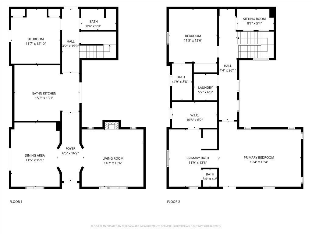
83 Mission, Irvine – $4,600

  • 3 Beds
  • 3 Baths
  • 2,004 Sqft
  • .06 Acres
  • 3 Beds
  • 3 Baths
  • 2,004 Sqft
  • .06 Acres

83 Mission

Ideally located minutes from Orange County’s top public schools, including Santiago Hills Elementary, this recently upgraded condo features new laminate flooring and fresh paint, a generously sized primary bedroom, and formal living and dining rooms, all with exceptional park views. Together with the adjacent patio, the home offers a spacious entertaining area that flows seamlessly from the living room outdoors with direct park views. The large, upgraded kitchen features stainless steel appliances and opens to a dedicated private patio, while a first-floor bedroom with a media niche offers a flexible space ideal for a family room, playroom, or guest bedroom. The second floor includes a generously sized primary bedroom with a private family room feel, an additional good-sized bedroom, a loft area well suited for study and bookshelves, and a conveniently located laundry room. The primary bathroom features a spacious closet and a jacuzzi tub. The community offers upscale amenities including a commons area, three large pools, and a beach volleyball court. Several parks are located throughout the community, including the park directly in front of the home, which features a large grassy area, barbecue stations, benches, and shaded shelters, making it ideal for birthday parties and family gatherings. Two children’s playgrounds are also located within the same park.

Essential Information

  • MLS® #OC25230828
  • Price$4,600
  • Bedrooms3
  • Bathrooms3.00
  • Full Baths3
  • Square Footage2,004
  • Acres0.06
  • Year Built2007
  • TypeResidential Lease
  • Sub-TypeCondominium
  • StatusActive

Community Information

  • Address83 Mission
  • AreaWD - Woodbury
  • SubdivisionTreo (WDTR)
  • CityIrvine
  • CountyOrange
  • Zip Code92620

Amenities

  • UtilitiesAssociation Dues, Pool
  • Parking Spaces2
  • # of Garages2
  • ViewNone
  • Has PoolYes
  • PoolAssociation

Amenities

Clubhouse, Barbecue, Pool, Spa/Hot Tub, Maintenance Front Yard

Interior

  • Interior FeaturesBedroom on Main Level
  • CoolingCentral Air
  • FireplaceYes
  • FireplacesLiving Room
  • # of Stories2
  • StoriesTwo

School Information

  • DistrictIrvine Unified

Additional Information

  • Date ListedOctober 2nd, 2025
  • Days on Market6

Listing Details

  • AgentAhmad Arshi
  • OfficeRegency Real Estate Brokers
Please provide a valid email address.

Price Change History for 83 Mission, Irvine, (MLS® #OC25230828)

Date Details Change
Price Increased from $4,500 to $4,600 $100 (2.22%)
Price Reduced from $4,650 to $4,500 $150 (3.23%)

Ahmad Arshi, Regency Real Estate Brokers.

Based on information from California Regional Multiple Listing Service, Inc. as of February 18th, 2026 at 6:56pm PST. This information is for your personal, non-commercial use and may not be used for any purpose other than to identify prospective properties you may be interested in purchasing. Display of MLS data is usually deemed reliable but is NOT guaranteed accurate by the MLS. Buyers are responsible for verifying the accuracy of all information and should investigate the data themselves or retain appropriate professionals. Information from sources other than the Listing Agent may have been included in the MLS data. Unless otherwise specified in writing, Broker/Agent has not and will not verify any information obtained from other sources. The Broker/Agent providing the information contained herein may or may not have been the Listing and/or Selling Agent.