Connect

Find us on...

Dashboard

Login using...

Shawn Bengtson

Office Broker - DRE 01236964

  • Office 760-805-7199
Questions?

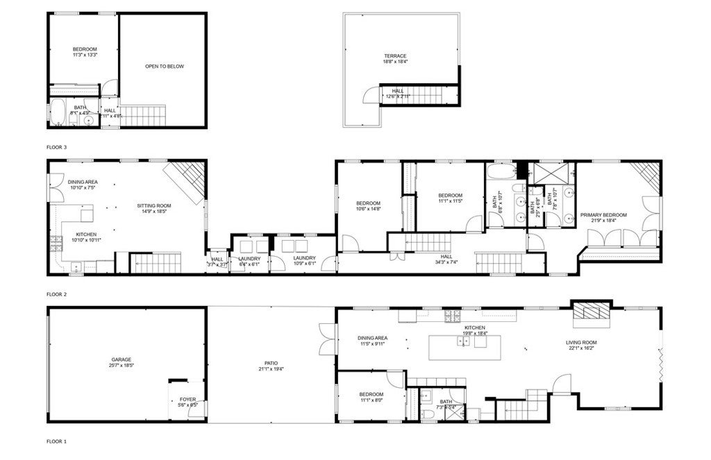
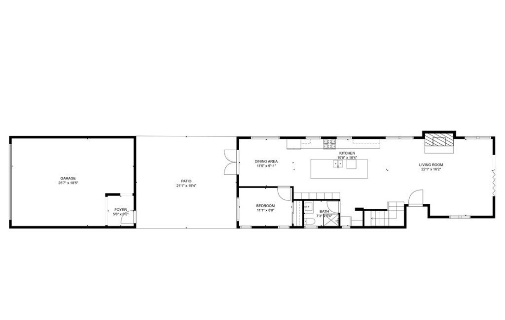
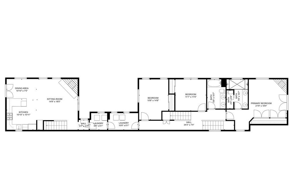
208 Indianapolis, Huntington Beach – $9,500

  • 5 Beds
  • 5 Baths
  • 2,796 Sqft
  • .07 Acres
  • 5 Beds
  • 5 Baths
  • 2,796 Sqft
  • .07 Acres

208 Indianapolis

Magnificent beach-close Nantucket-Style home PLUS a separate two-story apartment—offering over 3,000 square feet of completely reimagined living space. A rare opportunity for homeowners & investors alike! This show-stopping residence is like a brand new home boasting modern luxury finishes, sophisticated architectural details, and exquisite craftsmanship throughout. The main house features 4 bedrooms and 3 bathrooms—including a convenient downstairs bedroom and bathroom—while the private apartment offers 1 bedroom, 1 bathroom, a full kitchen, living room with fireplace, dining area, laundry room, and its own balcony, ideal for rental income or extended family guest quarters. Not one inch of this house has gone untouched with the finest materials and spectacular woodwork. The entire residence boasts beautiful hardwood floors throughout all levels, new windows, Central A/C, extensive wainscoting, crown molding, white shiplap volume ceilings, recessed LED lighting, and beautiful tile work and marble graces all 4 bathrooms creating a refined coastal ambiance. French doors and bifold doors seamlessly connect indoor and outdoor living, where you'll find a front brick patio with built-in seating and elevated fire pit, and a spacious back patio perfect for major entertaining. The open-concept layout includes an elegant formal living room with fireplace, multiple dining areas, and a built-in quartz wine bar with wine fridge. The main kitchen is a chef’s dream, featuring an oversized island, quartz countertops, porcelain farmhouse sink, an abundance of solid wood white shaker cabinetry with chic gold hardware, and an Italian 8-burner ILVE range with double ovens, shinny gold accents, and a matching pot-filler. The apartment kitchen is equally elegant with its own ILVE range and custom cabinetry. The luxurious primary suite showcases a cathedral ceiling, brick fireplace, and private balcony, while the third-floor rooftop deck offers sunset views and full entertainment hookups. Two upstairs laundry areas allow complete separation between the main house and the apartment. An epoxy-finished 2-car garage completes this impeccable home. This house is ready for the most discriminating buyer with a desire for a timeless beach house blocks from the beach and vibrant Main Street. All or any furniture can be included!

Essential Information

  • MLS® #OC25258623
  • Price$9,500
  • Bedrooms5
  • Bathrooms5.00
  • Full Baths4
  • Half Baths1
  • Square Footage2,796
  • Acres0.07
  • Year Built1985
  • TypeResidential Lease
  • Sub-TypeSingle Family Residence
  • StatusActive

Community Information

  • Address208 Indianapolis
  • Area15 - West Huntington Beach
  • SubdivisionDowntown Area (DOWN)
  • CityHuntington Beach
  • CountyOrange
  • Zip Code92648

Amenities

  • UtilitiesNone
  • Parking Spaces2
  • # of Garages2
  • ViewNone
  • PoolNone

Parking

Door-Multi, Direct Access, Garage, Garage Faces Rear

Garages

Door-Multi, Direct Access, Garage, Garage Faces Rear

Interior

  • Interior FeaturesBalcony, Bedroom on Main Level
  • HeatingCentral
  • CoolingCentral Air
  • FireplaceYes
  • # of Stories3
  • StoriesThree Or More

Appliances

SixBurnerStove, Dishwasher, Electric Range, Disposal, Gas Range

Fireplaces

Living Room, Primary Bedroom, Outside, Guest Accommodations

Exterior

  • Lot DescriptionZeroToOneUnitAcre

School Information

  • DistrictHuntington Beach Union High

Additional Information

  • Date ListedNovember 11th, 2025
  • Days on Market34

Listing Details

  • AgentDianne Rector
  • OfficeKeller Williams Realty
Please provide a valid email address.

Dianne Rector, Keller Williams Realty.

Based on information from California Regional Multiple Listing Service, Inc. as of December 18th, 2025 at 5:56am PST. This information is for your personal, non-commercial use and may not be used for any purpose other than to identify prospective properties you may be interested in purchasing. Display of MLS data is usually deemed reliable but is NOT guaranteed accurate by the MLS. Buyers are responsible for verifying the accuracy of all information and should investigate the data themselves or retain appropriate professionals. Information from sources other than the Listing Agent may have been included in the MLS data. Unless otherwise specified in writing, Broker/Agent has not and will not verify any information obtained from other sources. The Broker/Agent providing the information contained herein may or may not have been the Listing and/or Selling Agent.