Connect

Find us on...

Dashboard

Login using...

Shawn Bengtson

Office Broker - DRE 01236964

  • Office 760-805-7199
Questions?

24892 Golden Vista, Laguna Niguel – $1,395,000

  • 3 Beds
  • 3 Baths
  • 1,558 Sqft
  • .09 Acres
  • 3 Beds
  • 3 Baths
  • 1,558 Sqft
  • .09 Acres

24892 Golden Vista

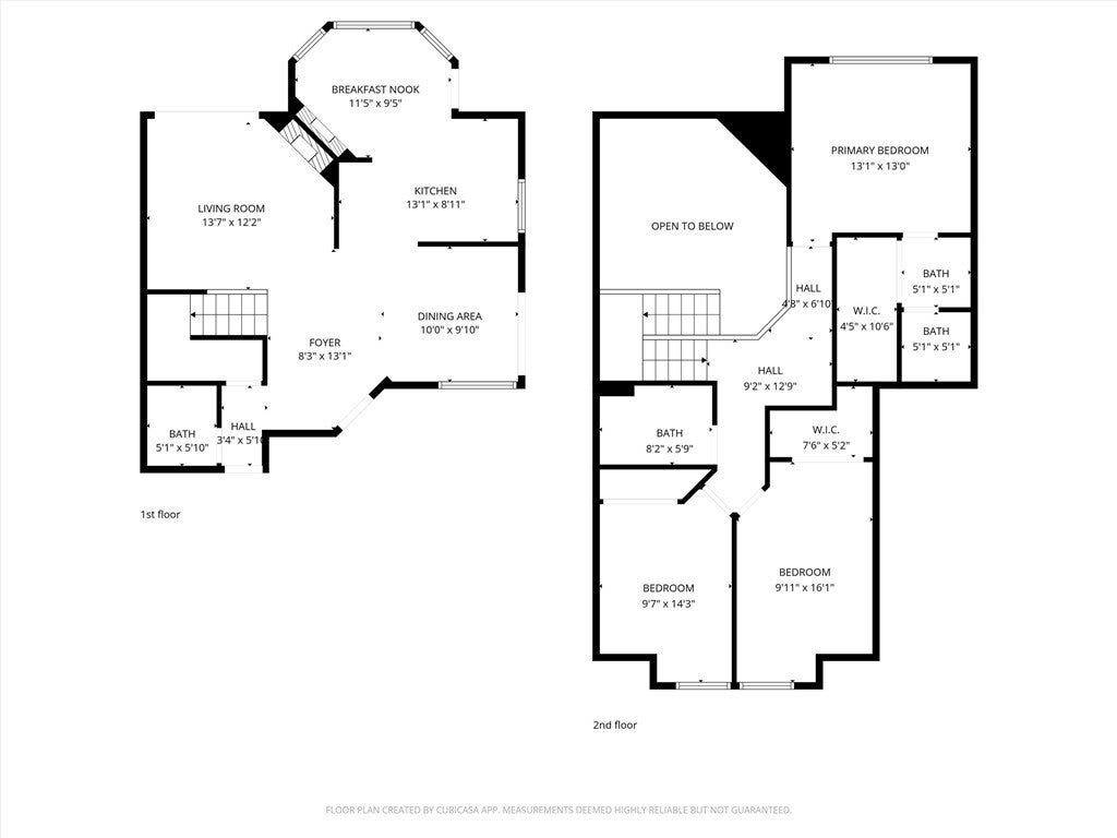
Welcome to your completely reimagined home in the coveted Rancho Niguel community, where sweeping foothill views, unmatched privacy, and modern luxury come together in perfect harmony. Fully renovated from top to bottom, this rare offering sits with no home in front or behind, creating an exceptional sense of openness and tranquility. A gated courtyard entry welcomes you into a perfectly sun-drenched interior with vaulted ceilings, new finishes, and effortless indoor-outdoor flow. The spacious living room features a newly tiled herringbone dual-sided fireplace, two-story ceilings, and sliders that open directly to the meticulously landscaped rear yard with panoramic foothill views. The formal dining room and upgraded kitchen create the perfect setting for both intimate meals and memorable entertaining. A charming breakfast nook, warmed by the shared fireplace, invites you to slow down and savor peaceful morning vistas. Upstairs, the serene primary suite offers breathtaking views, an en-suite bath, dual-sink vanity, walk-in closet, and plush new carpet. Two additional bedrooms and a sleek, modern hall bath complete the level. Every detail has been refreshed, including new flooring, new paint inside and out, new vinyl windows and sliders, a newly poured driveway and patio, landscaping, and a remodeled kitchen and bathrooms, along with a newer HVAC system to ensure year-round comfort. Residents of Rancho Niguel enjoy exclusive membership to The Club, offering resort-style amenities including pools, pickleball and tennis courts, racquetball, sports courts, a fitness center, picnic areas, BBQs, and a playground. Ideally located within the sought-after Bergeson Elementary boundaries and moments from shopping, dining, coastal destinations, and major freeways, this is a rare opportunity to own a fully transformed home in one of Laguna Niguel’s premier neighborhoods.

Essential Information

  • MLS® #OC25261816
  • Price$1,395,000
  • Bedrooms3
  • Bathrooms3.00
  • Full Baths1
  • Half Baths1
  • Square Footage1,558
  • Acres0.09
  • Year Built1985
  • TypeResidential
  • Sub-TypeSingle Family Residence
  • StylePatio Home
  • StatusActive Under Contract

Community Information

  • Address24892 Golden Vista
  • AreaLNLAK - Lake Area
  • SubdivisionWindrose (RN) (RNR)
  • CityLaguna Niguel
  • CountyOrange
  • Zip Code92677

Amenities

  • Parking Spaces4
  • # of Garages2
  • ViewHills, Trees/Woods
  • Has PoolYes
  • PoolCommunity, Association

Amenities

Clubhouse, Fitness Center, Playground, Pickleball, Pool, Spa/Hot Tub, Tennis Court(s), Racquetball, Sport Court

Utilities

Cable Available, Electricity Connected, Natural Gas Connected, Sewer Connected, Water Connected

Parking

Direct Access, Door-Single, Driveway, Garage

Garages

Direct Access, Door-Single, Driveway, Garage

Interior

  • InteriorCarpet, Tile, Wood
  • HeatingCentral
  • CoolingCentral Air
  • FireplaceYes
  • FireplacesLiving Room, Multi-Sided
  • # of Stories2
  • StoriesTwo

Interior Features

Built-in Features, Balcony, Breakfast Area, Separate/Formal Dining Room, High Ceilings, Quartz Counters, Recessed Lighting, Two Story Ceilings, Unfurnished, All Bedrooms Up, Entrance Foyer, Primary Suite, Walk-In Closet(s)

Appliances

Dishwasher, ENERGY STAR Qualified Appliances, Disposal, Microwave, Water Heater, ENERGY STAR Qualified Water Heater

Exterior

  • ExteriorStucco
  • RoofTile
  • ConstructionStucco

Lot Description

Back Yard, Front Yard, Landscaped, Near Park

Windows

ENERGY STAR Qualified Windows, Screens

School Information

  • DistrictCapistrano Unified
  • ElementaryMarian Bergeson
  • HighAliso Niguel

Additional Information

  • Date ListedNovember 19th, 2025
  • Days on Market23
  • HOA Fees95
  • HOA Fees Freq.Monthly

Listing Details

  • AgentAmy Hlad
  • OfficeEngel & Voelkers Newport Beach
Please provide a valid email address.

Price Change History for 24892 Golden Vista, Laguna Niguel, (MLS® #OC25261816)

Date Details Change
Status Changed from Active to Active Under Contract

Amy Hlad, Engel & Voelkers Newport Beach.

Based on information from California Regional Multiple Listing Service, Inc. as of December 14th, 2025 at 8:26pm PST. This information is for your personal, non-commercial use and may not be used for any purpose other than to identify prospective properties you may be interested in purchasing. Display of MLS data is usually deemed reliable but is NOT guaranteed accurate by the MLS. Buyers are responsible for verifying the accuracy of all information and should investigate the data themselves or retain appropriate professionals. Information from sources other than the Listing Agent may have been included in the MLS data. Unless otherwise specified in writing, Broker/Agent has not and will not verify any information obtained from other sources. The Broker/Agent providing the information contained herein may or may not have been the Listing and/or Selling Agent.