Connect

Find us on...

Dashboard

Login using...

Shawn Bengtson

Office Broker - DRE 01236964

  • Office 760-805-7199
Questions?

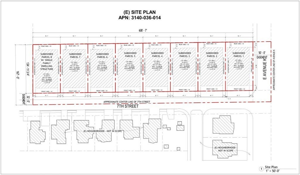
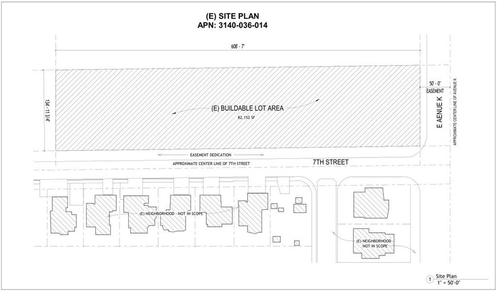
43600 E 7th Street, Lancaster – $400,000

  • $400k Price
  • 2.16 Acres
  • 15 DOM
  • $400k Price
  • 2.16 Acres
  • 15 DOM

43600 E 7th Street

Introducing an exceptional chance to develop in one of Lancaster’s most promising growth areas. This 2.16-acre (94,090 SF) residential parcel, APN: 3140-036-014, zoned LRR1-7000, is perfectly positioned for investors or builders seeking a ready-to-go project with impressive upside. A Property Survey along with Preliminary Concept Architectural & Design Plans, including subdivision layouts, site studies, and detailed renderings for eight single-family homes on quarter-acre lots, have already been completed by Drury Architects and are available upon request. Much of the upfront planning is done, making this an ideal plug-and-play development opportunity. The seller has also added value by installing quality fencing around the entire parcel, giving buyers added security, clear boundaries, and reduced prep work ahead of development. Positioned on a flat, fully-fenced corner lot at Avenue K and 7th Street East, this property boasts approximately 608 feet of frontage on 7th Street East and 154 feet of frontage on Avenue K. With all major utilities already at the street (electricity, water, and sewer), developers benefit from lower infrastructure costs and simplified construction logistics. Located in the heart of Lancaster and surrounded by established neighborhoods, schools, businesses, and essential services, this parcel sits in a high-demand residential corridor with strong long-term growth. Whether you're preparing to build immediately or securing land in a rapidly expanding market, this property delivers both value and vision. Don’t miss the chance to capitalize on a rare development-ready parcel in one of Lancaster’s most sought-after areas!

Essential Information

  • MLS® #OC25270013
  • Price$400,000
  • Bathrooms0.00
  • Acres2.16
  • TypeLand
  • StatusActive

Community Information

  • Address43600 E 7th Street
  • AreaLAC - Lancaster
  • CityLancaster
  • CountyLos Angeles
  • Zip Code93535

Amenities

Utilities

Electricity Available, Natural Gas Available, Sewer Available, See Remarks, Water Available

View

City Lights, Desert, Hills, Mountain(s)

Exterior

Lot Description

TwoToFiveUnitsAcre, Corner Lot, Lot Over 40000 Sqft, Level, Near Park, Near Public Transit, Paved, Rectangular Lot, Street Level

Additional Information

  • Date ListedDecember 1st, 2025
  • Days on Market15
  • ZoningLRR1-7000

Listing Details

  • AgentScott Vu
  • OfficeNexus Commercial
Please provide a valid email address.

Price Change History for 43600 E 7th Street, Lancaster, (MLS® #OC25270013)

Date Details Change
Price Reduced from $495,000 to $400,000 $95,000 (19.19%)

Scott Vu, Nexus Commercial.

Based on information from California Regional Multiple Listing Service, Inc. as of December 18th, 2025 at 10:30am PST. This information is for your personal, non-commercial use and may not be used for any purpose other than to identify prospective properties you may be interested in purchasing. Display of MLS data is usually deemed reliable but is NOT guaranteed accurate by the MLS. Buyers are responsible for verifying the accuracy of all information and should investigate the data themselves or retain appropriate professionals. Information from sources other than the Listing Agent may have been included in the MLS data. Unless otherwise specified in writing, Broker/Agent has not and will not verify any information obtained from other sources. The Broker/Agent providing the information contained herein may or may not have been the Listing and/or Selling Agent.