Connect

Find us on...

Dashboard

Login using...

Shawn Bengtson

Office Broker - DRE 01236964

  • Office 760-805-7199
Questions?

3444 E Anaheim, Long Beach – $3,250,000

  • $3.3M Price
  • .26 Acres
  • 66 DOM
  • $3.3M Price
  • .26 Acres
  • 66 DOM

3444 E Anaheim

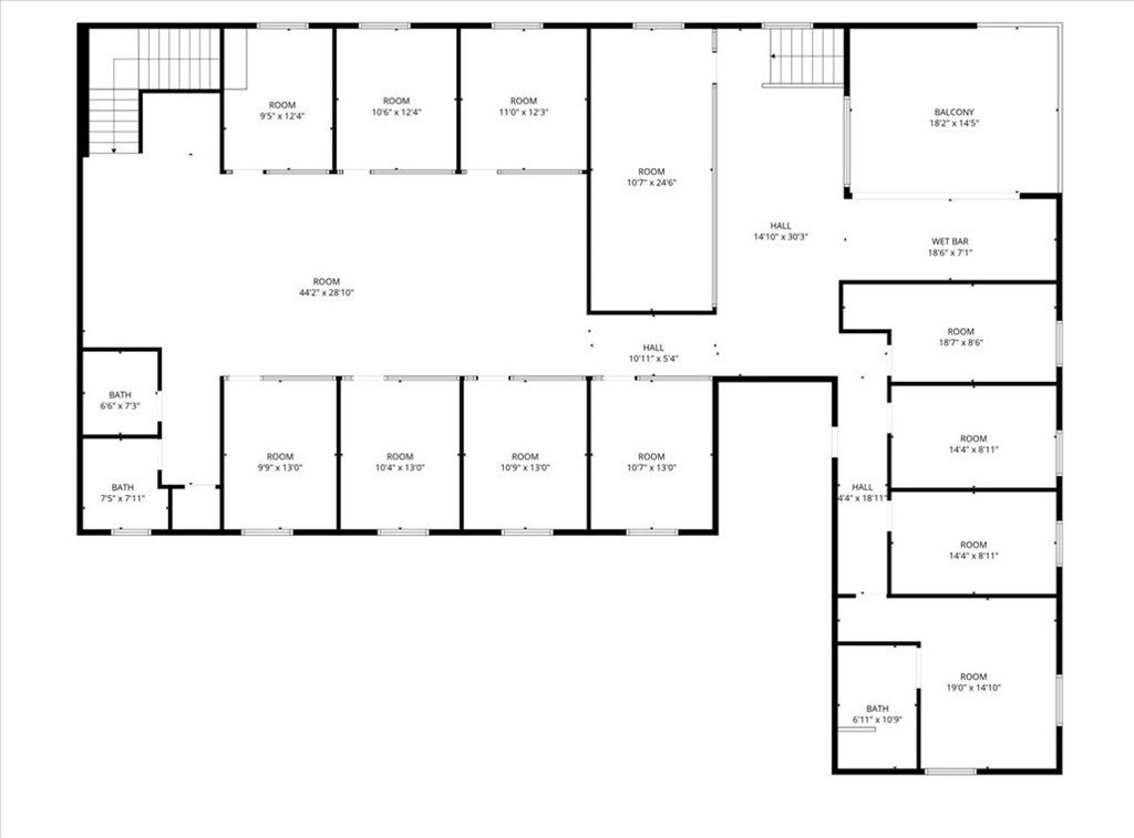
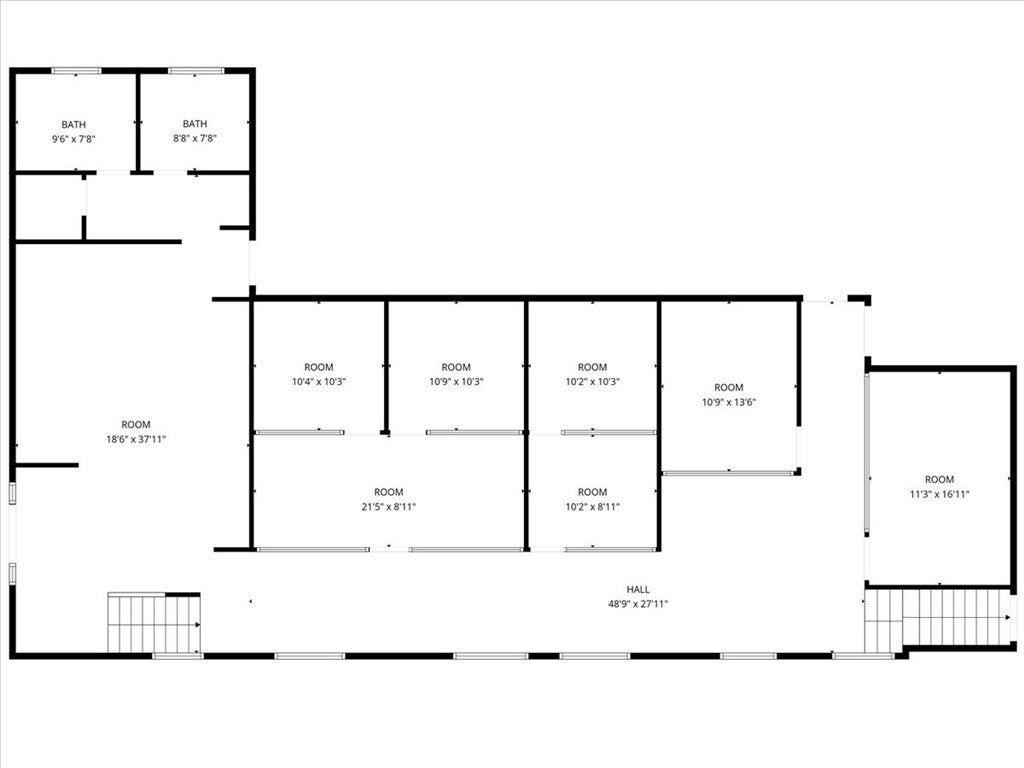
Welcome To 3444 E Anaheim St, A Spacious 5,900 Sq Ft Commercial Property In The Heart Of Long Beach’s Eastside, Where Opportunity And Convenience Seamlessly Blend. This Property Features A Versatile, Open Layout With Ample Room For Offices, Meeting Spaces, And Storage, Designed To Accommodate A Wide Range Of Business Operations. Large Windows Allow Natural Light To Flood The Interior, Creating A Bright And Welcoming Atmosphere. The Building's Exterior Includes Well-Maintained Landscaping, Covered Entryways, And Plenty Of Parking For Clients And Staff. The Prime Location Offers Easy Access To Major Roads And Is Just Minutes Away From California State University Long Beach, Making It An Ideal Spot For Businesses Looking To Attract Foot Traffic. This Property Is More Than Just A Place To Work; It’s A Place To Grow, Surrounded By The Energy And Potential Of Long Beach’s Vibrant Business Community.

Essential Information

  • MLS® #OC25279811
  • Price$3,250,000
  • Bathrooms0.00
  • Acres0.26
  • Year Built1986
  • TypeCommercial Sale
  • Sub-TypeOffice
  • StatusActive

Community Information

  • Address3444 E Anaheim
  • Area3 - Eastside, Circle Area
  • CityLong Beach
  • CountyLos Angeles
  • Zip Code90804

Amenities

  • Parking Spaces6

Utilities

Electricity Connected, Sewer Connected, Water Connected, Phone Connected

Interior

  • HeatingCentral
  • # of Stories2

Exterior

Lot Description

Lot Over 40000 Sqft, Near Park, Rectangular Lot, Street Level

Additional Information

  • Date ListedJanuary 26th, 2026
  • Days on Market66
  • ZoningLBCCA

Listing Details

  • AgentDevin Doherty
  • OfficeeXp Realty of California Inc
Please provide a valid email address.

Price Change History for 3444 E Anaheim, Long Beach, (MLS® #OC25279811)

Date Details Change
Price Reduced from $3,500,000 to $3,250,000 $250,000 (7.14%)

Devin Doherty, eXp Realty of California Inc.

Based on information from California Regional Multiple Listing Service, Inc. as of April 4th, 2026 at 5:20am PDT. This information is for your personal, non-commercial use and may not be used for any purpose other than to identify prospective properties you may be interested in purchasing. Display of MLS data is usually deemed reliable but is NOT guaranteed accurate by the MLS. Buyers are responsible for verifying the accuracy of all information and should investigate the data themselves or retain appropriate professionals. Information from sources other than the Listing Agent may have been included in the MLS data. Unless otherwise specified in writing, Broker/Agent has not and will not verify any information obtained from other sources. The Broker/Agent providing the information contained herein may or may not have been the Listing and/or Selling Agent.