Connect

Find us on...

Dashboard

Login using...

Shawn Bengtson

Office Broker - DRE 01236964

  • Office 760-805-7199
Questions?

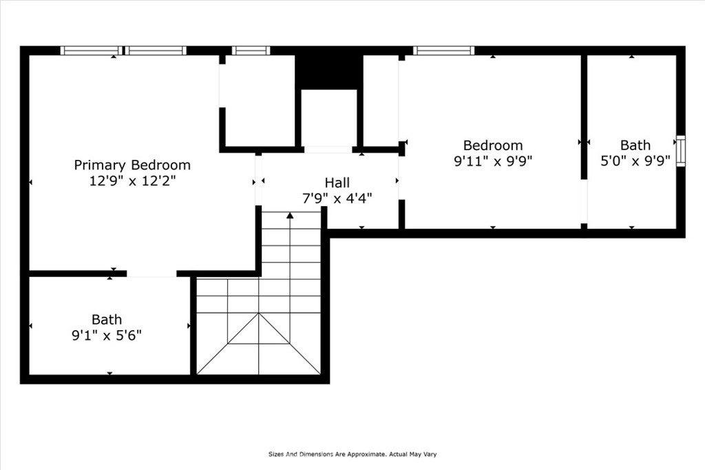
57 Hinterland, Ladera Ranch – $3,000

  • 2 Beds
  • 3 Baths
  • 1,000 Sqft
  • 6.36 Acres
  • 2 Beds
  • 3 Baths
  • 1,000 Sqft
  • 6.36 Acres

57 Hinterland

Gorgeous 2 bedroom Valmont home's open floor plan features laminate wood flooring downstairs, stainless steel appliances and granite countertops in the kitchen. Ceiling fans in the bedrooms and family room. Bedrooms are good size and both feature ensuite bathrooms. Stacking washer/dryer upstairs in the closet and additional custom storage cabinets in the upstairs hallway. Two cars detached garage with access door right by stairs to the condo. Easy access to guest parking. The Ladera Ranch lifestyle offers outstanding community amenities including 12 Pools, Jacuzzi, Tennis Courts, 4 Clubhouses, Parks, a Skate Park, and Hiking Trails throughout the city as well as Award-Winning Schools and Cox Internet is provided by the association.

Essential Information

  • MLS® #OC25280816
  • Price$3,000
  • Bedrooms2
  • Bathrooms3.00
  • Full Baths2
  • Half Baths1
  • Square Footage1,000
  • Acres6.36
  • Year Built2004
  • TypeResidential Lease
  • Sub-TypeCondominium
  • StatusActive

Community Information

  • Address57 Hinterland
  • AreaLD - Ladera Ranch
  • SubdivisionValmont (VALM)
  • CityLadera Ranch
  • CountyOrange
  • Zip Code92694

Amenities

  • Parking Spaces2
  • ParkingGarage
  • # of Garages2
  • GaragesGarage
  • ViewNeighborhood
  • Has PoolYes
  • PoolAssociation

Amenities

Clubhouse, Sport Court, Dog Park, Barbecue, Pool, Spa/Hot Tub, Tennis Court(s)

Utilities

Cable Available, Electricity Connected, Natural Gas Connected, Sewer Connected, Water Connected, Association Dues

Interior

  • InteriorCarpet, Laminate
  • HeatingCentral
  • CoolingCentral Air
  • FireplacesNone
  • # of Stories2
  • StoriesMulti/Split

Interior Features

Balcony, Separate/Formal Dining Room, All Bedrooms Up

Appliances

Dishwasher, Gas Oven, Gas Range, Gas Water Heater, Microwave, Refrigerator

School Information

  • DistrictCapistrano Unified
  • ElementaryOso Grande
  • MiddleLadera
  • HighSan Juan Hills

Additional Information

  • Date ListedDecember 27th, 2025
  • Days on Market8

Listing Details

  • AgentJung Yim
  • OfficeCENTURY 21 Affiliated
Please provide a valid email address.

Jung Yim, CENTURY 21 Affiliated.

Based on information from California Regional Multiple Listing Service, Inc. as of February 2nd, 2026 at 6:15pm PST. This information is for your personal, non-commercial use and may not be used for any purpose other than to identify prospective properties you may be interested in purchasing. Display of MLS data is usually deemed reliable but is NOT guaranteed accurate by the MLS. Buyers are responsible for verifying the accuracy of all information and should investigate the data themselves or retain appropriate professionals. Information from sources other than the Listing Agent may have been included in the MLS data. Unless otherwise specified in writing, Broker/Agent has not and will not verify any information obtained from other sources. The Broker/Agent providing the information contained herein may or may not have been the Listing and/or Selling Agent.