Connect

Find us on...

Dashboard

Login using...

Shawn Bengtson

Office Broker - DRE 01236964

  • Office 760-805-7199
Questions?

181 California Court, Mission Viejo – $3,400

  • 2 Beds
  • 2 Baths
  • 843 Sqft
  • 1.39 Acres
  • 2 Beds
  • 2 Baths
  • 843 Sqft
  • 1.39 Acres

181 California Court

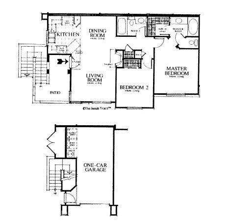
Welcome home to 181 California Ct in Mission Viejo’s desirable California Terrace community—a carriage-style 2-bedroom, 2-bath unit with no one above or below and 1-car garage right under the unit. Step through your private front patio into a light-filled, open-concept layout where the kitchen faces the dining and living areas, making the space feel connected and easy to live in. The living room features soaring ceilings and a cozy fireplace, while fresh interior paint, vinyl flooring, and clean white cabinetry give the home a crisp, modern feel. All appliances are included for a true move-in-ready experience. ( Full Size Washer and Dryer are in the Garage) Both bedrooms include ceiling fans, and both bathrooms offer a tub/shower combo—practical, clean, and easy. Primary Bedroom has a spacious Walk-In closet too. You’ll also love the brand-new HVAC system with a Nest thermostat, keeping you comfortable year-round. As a bonus, enjoy Lake Mission Viejo membership privileges (member-only amenities, events, and activities—subject to association rules/requirements). Centrally located near everyday conveniences—shopping and dining at nearby retail centers like Sprouts, Ralph, Starbucks, Restaurants, .... —plus commuter-friendly access around South Orange County. Did I mentions great schools and walking distance to the Saddleback Church?

Essential Information

  • MLS® #OC26006375
  • Price$3,400
  • Bedrooms2
  • Bathrooms2.00
  • Full Baths2
  • Square Footage843
  • Acres1.39
  • Year Built1993
  • TypeResidential Lease
  • Sub-TypeCondominium
  • StatusActive

Community Information

  • Address181 California Court
  • AreaMN - Mission Viejo North
  • SubdivisionCalifornia Court (CALC)
  • CityMission Viejo
  • CountyOrange
  • Zip Code92692

Amenities

  • Parking Spaces1
  • # of Garages1
  • ViewNeighborhood
  • Has PoolYes
  • PoolAssociation

Utilities

Cable Available, Electricity Connected, Natural Gas Connected, Phone Available, Sewer Connected, Water Connected, Pool, Sewer

Interior

  • InteriorVinyl
  • HeatingCentral
  • CoolingCentral Air
  • FireplaceYes
  • FireplacesLiving Room
  • # of Stories2
  • StoriesOne

Interior Features

Ceiling Fan(s), Separate/Formal Dining Room, All Bedrooms Up, Bedroom on Main Level, Walk-In Closet(s)

Appliances

Dishwasher, Disposal, Gas Range, Gas Water Heater, Microwave, Refrigerator, Dryer, Washer

School Information

  • DistrictSaddleback Valley Unified
  • ElementaryDel Lago
  • MiddleLa Paz
  • HighTrabuco Hills

Additional Information

  • Date ListedJanuary 10th, 2026
  • Days on Market1

Listing Details

  • AgentParisa Houshangi
  • OfficeKeller Williams Realty
Please provide a valid email address.

Parisa Houshangi, Keller Williams Realty.

Based on information from California Regional Multiple Listing Service, Inc. as of January 11th, 2026 at 9:21am PST. This information is for your personal, non-commercial use and may not be used for any purpose other than to identify prospective properties you may be interested in purchasing. Display of MLS data is usually deemed reliable but is NOT guaranteed accurate by the MLS. Buyers are responsible for verifying the accuracy of all information and should investigate the data themselves or retain appropriate professionals. Information from sources other than the Listing Agent may have been included in the MLS data. Unless otherwise specified in writing, Broker/Agent has not and will not verify any information obtained from other sources. The Broker/Agent providing the information contained herein may or may not have been the Listing and/or Selling Agent.