Connect

Find us on...

Dashboard

Login using...

Shawn Bengtson

Office Broker - DRE 01236964

  • Office 760-805-7199
Questions?

640 W Nicolet, Banning – $279,900

  • $280k Price
  • .78 Acres
  • 37 DOM
  • $280k Price
  • .78 Acres
  • 37 DOM

640 W Nicolet

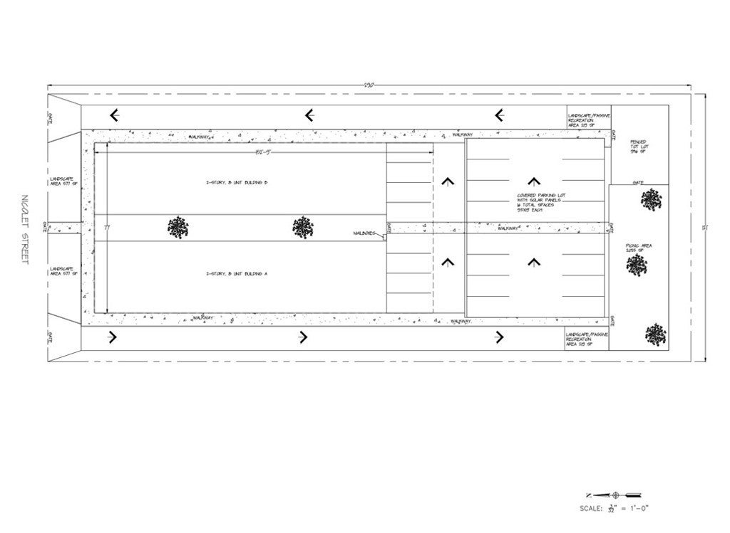
Investor/Developer Opportunity – R3 Land in Opportunity Zone for 16-Unit Multi-Family Project in rapidly growing Banning. The site allows for the construction of a 16-unit apartment complex, perfectly positioned to capitalize on the city’s strong rental demand and limited multi-family inventory. Banning’s rental market has continued to strengthen, driven by population and job growth as well as proximity to major job centers in Beaumont, Palm Springs, and the Inland Empire. With Interstate 10 access minutes away, this parcel offers excellent commuter connectivity and long-term investment security. Pro Forma & Investor Highlights: Entitled for 16 units – conservative market rents projected at $2,000–$2,400 per unit/month Annual Gross Potential Income: $384,000–$422,400 Estimated Expense Ratio: 20–30% ($76,800–$126,000 annually) Net Operating Income (NOI): $268,000–$346,000 Cap Rate Valuation: At a conservative 6–8% cap rate, the completed project could be valued between $4.4M–$5.7M Flat, buildable parcel ideal for cost-efficient construction Excellent location near schools, shopping, parks, and new retail development Banning remains one of Southern California’s most promising emerging markets, with a shortage of quality rental housing and steady population growth. Whether you build to hold for strong cash flow or sell upon stabilization, this property offers significant upside potential. Don’t miss this rare development opportunity – pro forma numbers support strong returns with multiple exit strategies.

Essential Information

  • MLS® #OC26007699
  • Price$279,900
  • Bathrooms0.00
  • Acres0.78
  • TypeLand
  • StatusActive

Community Information

  • Address640 W Nicolet
  • Subdivisionn/a
  • CityBanning
  • CountyRiverside
  • Zip Code92220

Area

263 - Banning/Beaumont/Cherry Valley

Amenities

  • ViewNone

Exterior

  • Lot DescriptionElevenToFifteenUnitsAcre

Additional Information

  • Date ListedJanuary 19th, 2026
  • Days on Market37
  • ZoningR3

Listing Details

  • AgentMikaela Nguyen
  • OfficeH & M Realty Group
Please provide a valid email address.

Mikaela Nguyen, H & M Realty Group.

Based on information from California Regional Multiple Listing Service, Inc. as of February 25th, 2026 at 9:30am PST. This information is for your personal, non-commercial use and may not be used for any purpose other than to identify prospective properties you may be interested in purchasing. Display of MLS data is usually deemed reliable but is NOT guaranteed accurate by the MLS. Buyers are responsible for verifying the accuracy of all information and should investigate the data themselves or retain appropriate professionals. Information from sources other than the Listing Agent may have been included in the MLS data. Unless otherwise specified in writing, Broker/Agent has not and will not verify any information obtained from other sources. The Broker/Agent providing the information contained herein may or may not have been the Listing and/or Selling Agent.