Connect

Find us on...

Dashboard

Login using...

Shawn Bengtson

Office Broker - DRE 01236964

  • Office 760-805-7199
Questions?

16802 Baruna, Huntington Beach – $3,750,000

  • 5 Beds
  • 4 Baths
  • 3,790 Sqft
  • .11 Acres
  • 5 Beds
  • 4 Baths
  • 3,790 Sqft
  • .11 Acres

16802 Baruna

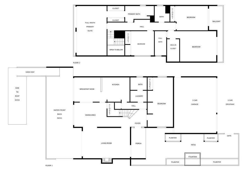
Mid-Century Waterfront Home on Davenport Island with wide Channel View… front row for the boat parade! The Home was remodeled in the early 1990s: Kitchen with granite Counters, New Baths, New Plumbing & Electrical. The lot has 50 feet of frontage with side-tie boat dock… There is room on the dock for up to a 48 foot yacht + duffy boat or skiff + kayaks & paddleboards. Davenport Island has many family-friendly features including: Neighborhood park with playground, sport court, and nice big greenbelt… and a fantastic & safe beach just before the bridge. This is a fantastic floorplan in a highly desirable location... perfect to use as it is or remodel to your liking. Take a look at the floorplan drawing in photos and the 3D tour for more details.

Essential Information

  • MLS® #OC26009249
  • Price$3,750,000
  • Bedrooms5
  • Bathrooms4.00
  • Full Baths4
  • Square Footage3,790
  • Acres0.11
  • Year Built1965
  • TypeResidential
  • Sub-TypeSingle Family Residence
  • StatusActive

Style

Contemporary, Mid-Century Modern

Community Information

  • Address16802 Baruna
  • SubdivisionDavenport Island (HDAV)
  • CityHuntington Beach
  • CountyOrange
  • Zip Code92649

Area

17 - Northwest Huntington Beach

Amenities

  • Parking Spaces6
  • # of Garages3
  • ViewWater, Canal
  • PoolNone

Utilities

Electricity Connected, Natural Gas Connected, Sewer Connected, Water Connected

Parking

Driveway, Garage Faces Front, Garage

Garages

Driveway, Garage Faces Front, Garage

Waterfront

Bay Front, Dock Access, Navigable Water, Seawall

Interior

  • InteriorCarpet, Wood
  • CoolingNone
  • FireplaceYes
  • FireplacesGas, Living Room
  • # of Stories2
  • StoriesTwo

Interior Features

Breakfast Bar, Cathedral Ceiling(s), Stone Counters, Bedroom on Main Level, Walk-In Closet(s)

Appliances

Dishwasher, Electric Cooktop, Electric Oven, Disposal, Microwave, Refrigerator, Water Heater, Dryer, Washer

Heating

Central, Forced Air, Natural Gas

Exterior

  • ExteriorDrywall, Stucco, Wood Siding
  • Exterior FeaturesDock
  • RoofFlat
  • ConstructionDrywall, Stucco, Wood Siding
  • FoundationSlab

Lot Description

Front Yard, Landscaped, Rectangular Lot, Sprinkler System

School Information

  • DistrictHuntington Beach Union High
  • ElementaryHarbor View
  • MiddleMarine View
  • HighMarina

Additional Information

  • Date ListedJanuary 13th, 2026
  • Days on Market47

Listing Details

  • AgentScot Campbell
  • OfficeColdwell Banker-Campbell Rltrs
Please provide a valid email address.

Price Change History for 16802 Baruna, Huntington Beach, (MLS® #OC26009249)

Date Details Change
Status Changed from Active Under Contract to Active
Status Changed from Active to Active Under Contract

Scot Campbell, Coldwell Banker-Campbell Rltrs.

Based on information from California Regional Multiple Listing Service, Inc. as of March 30th, 2026 at 2:30am PDT. This information is for your personal, non-commercial use and may not be used for any purpose other than to identify prospective properties you may be interested in purchasing. Display of MLS data is usually deemed reliable but is NOT guaranteed accurate by the MLS. Buyers are responsible for verifying the accuracy of all information and should investigate the data themselves or retain appropriate professionals. Information from sources other than the Listing Agent may have been included in the MLS data. Unless otherwise specified in writing, Broker/Agent has not and will not verify any information obtained from other sources. The Broker/Agent providing the information contained herein may or may not have been the Listing and/or Selling Agent.