Connect

Find us on...

Dashboard

Login using...

Shawn Bengtson

Office Broker - DRE 01236964

  • Office 760-805-7199
Questions?

31302 Andres Pico, San Juan Capistrano – $798,000

  • $798k Price
  • .08 Acres
  • 61 DOM
  • $798k Price
  • .08 Acres
  • 61 DOM

31302 Andres Pico

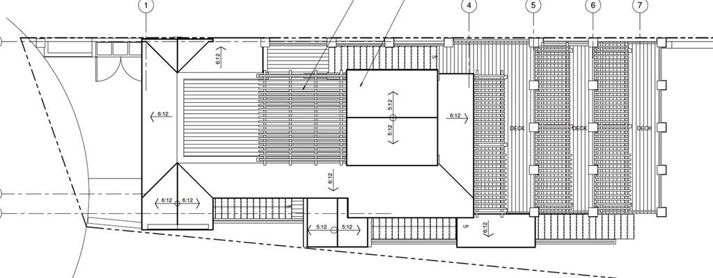
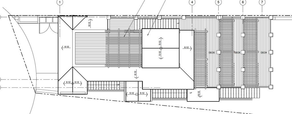
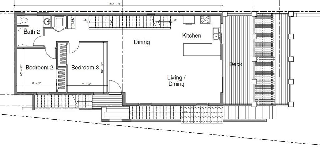
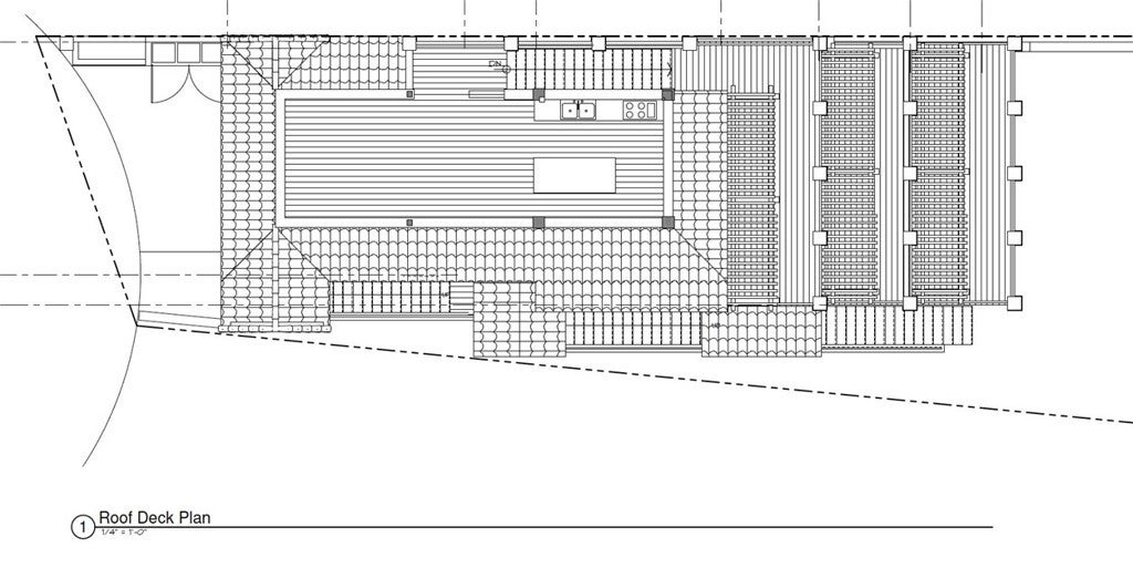
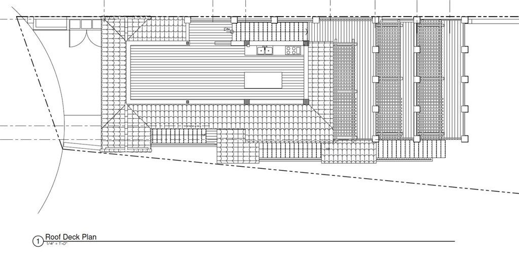
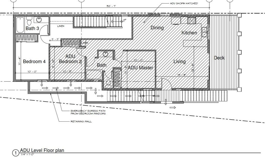
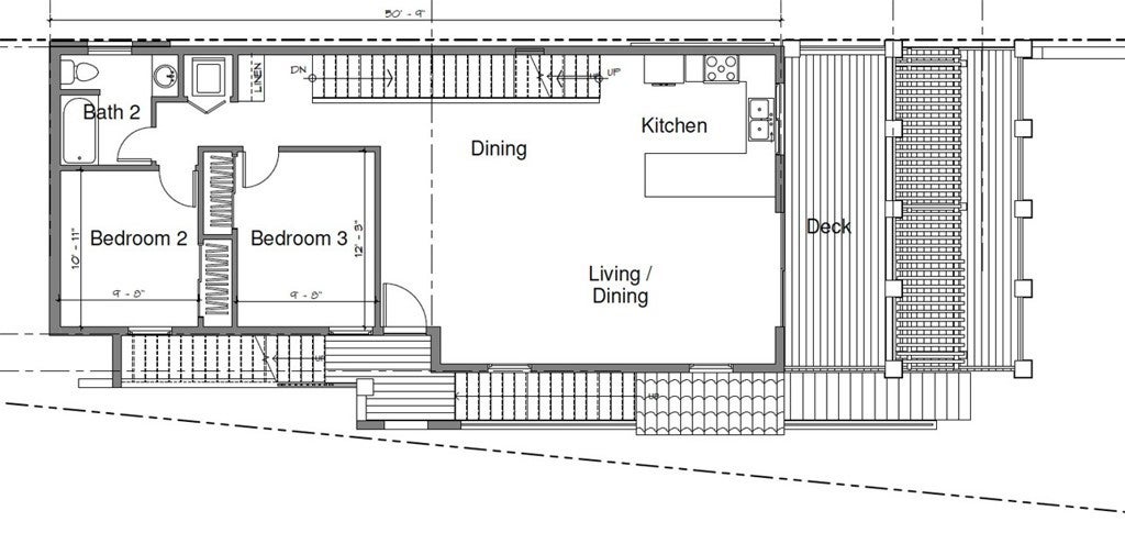
Property is located in an Opportunity Zone, which has significant tax benefits. Own it for 10 years and pay ZERO federal capital gains tax when you sell. Exceptional opportunity to build on one of the few remaining lots in San Juan Capistrano Mission Hills area. Imagine being walking distance to the vibrant and historic downtown and Mission area of SJC. Walk to your favorite local shops and dining locations in less than 10 minutes and then head back to enjoy the wonderful views from your own private rooftop deck. Permit ready for SFR +ADU. City approved plans with multiple variances approved by Planning Commission to optimize the space. Plans are ready to pull permits and start construction. Plans include 4 bedrooms and 3.5 baths for the main unit with a rooftop deck with beautiful hillside views and possible views of the Mission from atop. Great rooftop entertaining space with plans for an outdoor kitchen, TV, and overhead covers. Plans include a 2 car grade level garage. The 2nd unit is a 2 bedroom and 2 bath ADU that can be rented separately. There was a lot of time and money spent to get these approvals.

Essential Information

  • MLS® #OC26014088
  • Price$798,000
  • Bathrooms0.00
  • Acres0.08
  • TypeLand
  • StatusActive

Community Information

  • Address31302 Andres Pico
  • AreaMA - Mission Area
  • SubdivisionOld San Juan (SJ)
  • CitySan Juan Capistrano
  • CountyOrange
  • Zip Code92675

Amenities

  • UtilitiesNone
  • ViewHills

Exterior

  • Lot DescriptionZeroToOneUnitAcre

Additional Information

  • Date ListedJanuary 20th, 2026
  • Days on Market61
  • ZoningMRD-4000

Listing Details

  • AgentScott Ayres
  • OfficeBay Property Management & Rlty
Please provide a valid email address.

Price Change History for 31302 Andres Pico, San Juan Capistrano, (MLS® #OC26014088)

Date Details Change
Price Reduced from $862,000 to $798,000 $64,000 (7.42%)

Scott Ayres, Bay Property Management & Rlty.

Based on information from California Regional Multiple Listing Service, Inc. as of March 22nd, 2026 at 3:56pm PDT. This information is for your personal, non-commercial use and may not be used for any purpose other than to identify prospective properties you may be interested in purchasing. Display of MLS data is usually deemed reliable but is NOT guaranteed accurate by the MLS. Buyers are responsible for verifying the accuracy of all information and should investigate the data themselves or retain appropriate professionals. Information from sources other than the Listing Agent may have been included in the MLS data. Unless otherwise specified in writing, Broker/Agent has not and will not verify any information obtained from other sources. The Broker/Agent providing the information contained herein may or may not have been the Listing and/or Selling Agent.