Connect

Find us on...

Dashboard

Login using...

Shawn Bengtson

Office Broker - DRE 01236964

  • Office 760-805-7199
Questions?

Gunther, Menifee – $95,000

  • $95k Price
  • 27 Acres
  • 37 DOM
  • $95k Price
  • 27 Acres
  • 37 DOM

Gunther

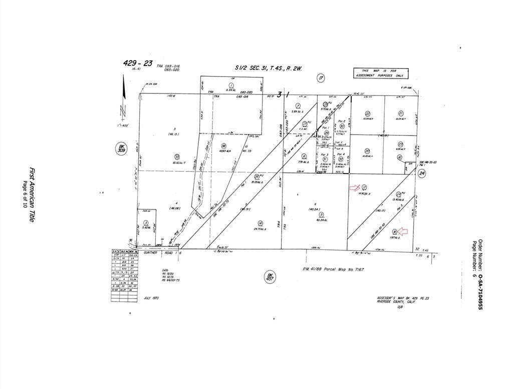
Incredible Land Opportunity – 26.77 Acres in the Scenic Hills of Menifee, CA – Priced at Under $3,600 per Acre! Don’t miss this rare chance to own 26.77 acres of raw, natural beauty in the picturesque hills of Menifee, located in desirable Southwestern Riverside County, California. This expansive offering consists of two separate parcels sold together, providing ample room for outdoor recreation, future development, or a peaceful private retreat. Ideal for horseback riding, off-road motorcycling, hiking, weekend getaways, family camping, or long-term investment, this serene property features a beautiful and secluded valley setting with rolling topography and panoramic views. Parcel 017 encompasses 14.90 acres (649,044± sq. ft.), with a triangular shape and approximately 1,182 feet along the northern boundary, 1,154 feet on the west, and 1,655 feet along the southeasterly side. Adjacent Parcel 018 offers 11.87 acres (517,057± sq. ft.), also triangular in shape, with approximately 1,365 feet on the northeasterly side, 963 feet along the south, and 967 feet along the east boundary. The two parcels are separated by a vacant 13+ acre Southern California Edison utility parcel, enhancing privacy and offering a natural buffer from potential neighbors. Together, they form an extraordinary opportunity for those seeking space, solitude, and versatility. With easy access to nearby amenities, yet far enough to enjoy peace and quiet, this land is a fantastic canvas for your vision—whether recreational, residential, or purely as an appreciating asset. GPS coordinates: 33.77457, -117.12375. Whether you're an investor, developer, or outdoor enthusiast, this is your chance to secure a large piece of Southern California land at an unbeatable price. Act now—this unique opportunity won’t last!

Essential Information

  • MLS® #OC26034726
  • Price$95,000
  • Bathrooms0.00
  • Acres27.00
  • TypeLand
  • StatusActive

Community Information

  • AddressGunther
  • CityMenifee
  • CountyRiverside
  • Zip Code92585

Area

SRCAR - Southwest Riverside County

Amenities

  • UtilitiesNone, Water Not Available

View

Hills, Panoramic, Valley, Rocks

Exterior

Lot Description

Horse Property, Lot Over 40000 Sqft, Rocks, Secluded, Value In Land

Additional Information

  • Date ListedFebruary 15th, 2026
  • Days on Market37
  • ZoningR-A-10

Listing Details

  • AgentShawn Smithson
  • OfficeRE/MAX One
Please provide a valid email address.

Shawn Smithson, RE/MAX One.

Based on information from California Regional Multiple Listing Service, Inc. as of March 25th, 2026 at 1:40am PDT. This information is for your personal, non-commercial use and may not be used for any purpose other than to identify prospective properties you may be interested in purchasing. Display of MLS data is usually deemed reliable but is NOT guaranteed accurate by the MLS. Buyers are responsible for verifying the accuracy of all information and should investigate the data themselves or retain appropriate professionals. Information from sources other than the Listing Agent may have been included in the MLS data. Unless otherwise specified in writing, Broker/Agent has not and will not verify any information obtained from other sources. The Broker/Agent providing the information contained herein may or may not have been the Listing and/or Selling Agent.