Connect

Find us on...

Dashboard

Login using...

Shawn Bengtson

Office Broker - DRE 01236964

  • Office 760-805-7199
Questions?

84250 Indio Springs # 196, Indio – $89,000

  • 1 Bed
  • 1 Bath
  • 513 Sqft
  • .04 Acres
  • 1 Bed
  • 1 Bath
  • 513 Sqft
  • .04 Acres

84250 Indio Springs # 196

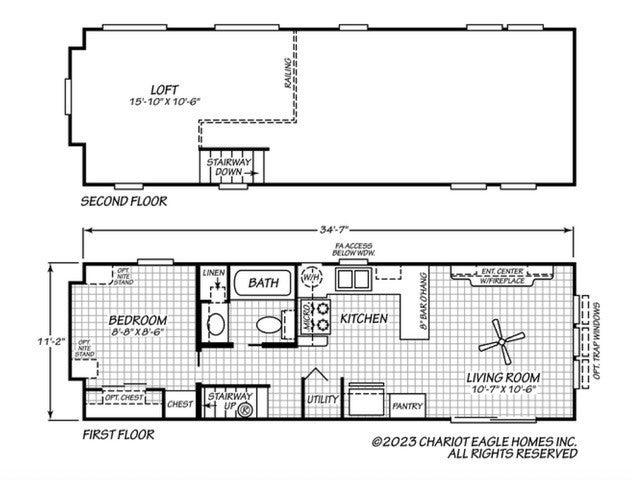
CALLING ALL SNOWBIRDS!!!! Completely remodeled 2003 Champion Eagle model trailer and lot, located in an amazing, seasonal community of Indio Springs RV Resort. This lot and Trailer for sale has its own APN - ( you own the land), NOT a land lease. Completely remodeled throughout with new kitchen; quartz counters, stainless steel refrigerator, oven/Stove, microwave and sink. All flooring throughout is new laminate. All new outlets. Bathroom has brand new vanity, sink, mirror, toilet ( with bidet) and TILED walk-in shower ( not a one-piece slide in). Bedroom has new flooring, wall sconces, ceiling fan, quartz counter and new wall mounted TV. Living area has new flooring, ceiling fan, hanging chandelier, quartz top cabinet and new, wall mounted TV. This trailer is one of only a few that has bonus upstairs loft, with new carpet. Fresh paint throughout inside as well as new solar reflective window film on windows. Entry has raised , covered patio with composite decking. This RV resort community is a 9 month maximum seasonal residency, per HOA and is a great seasonal community, with Pool/ hot tub, Pickleball, club house, Rec' room, laundry on site, Lake, etc. Bonus perk: walk out the main gate and you are at Fantasy Springs Casino / resort, with great food, entertainment and of course gambling. A Must see.

Essential Information

  • MLS® #OC26038005
  • Price$89,000
  • Bedrooms1
  • Bathrooms1.00
  • Square Footage513
  • Acres0.04
  • Year Built2003
  • TypeManufactured In Park
  • StatusActive

Community Information

  • Address84250 Indio Springs # 196
  • CityIndio
  • CountyRiverside
  • Zip Code92203

Area

309 - Indio North of East Valley

Amenities

  • Parking Spaces1
  • ParkingDriveway, Paved, One Space
  • GaragesDriveway, Paved, One Space
  • ViewNeighborhood, Desert
  • Has PoolYes
  • PoolCommunity, Association

Amenities

Clubhouse, Controlled Access, Maintenance Grounds, Game Room, Meeting/Banquet/Party Room, Pickleball, Pool, Pet Restrictions, Spa/Hot Tub, Trash, Cable TV, Water, Recreation Room

Utilities

Cable Connected, Electricity Connected, Propane, Phone Available, Sewer Connected, Water Connected

Interior

  • InteriorLaminate
  • HeatingPropane
  • CoolingCentral Air
  • # of Stories1
  • StoriesOne

Interior Features

Ceiling Fan(s), Quartz Counters, All Bedrooms Down, Loft

Appliances

Free-Standing Range, Disposal, Microwave, Refrigerator, Propane Oven, Propane Range, Propane Water Heater

Exterior

  • Lot DescriptionNear Park, Level
  • WindowsTinted Windows
  • RoofAsphalt
  • FoundationSlab, Pier Jacks

School Information

  • DistrictDesert Sands Unified

Additional Information

  • Date ListedFebruary 19th, 2026
  • Days on Market59
  • HOA Fees307
  • HOA Fees Freq.Monthly

Listing Details

  • AgentBrett Coats
  • OfficeFirst Team Real Estate
Please provide a valid email address.

Brett Coats, First Team Real Estate.

Based on information from California Regional Multiple Listing Service, Inc. as of April 21st, 2026 at 1:42pm PDT. This information is for your personal, non-commercial use and may not be used for any purpose other than to identify prospective properties you may be interested in purchasing. Display of MLS data is usually deemed reliable but is NOT guaranteed accurate by the MLS. Buyers are responsible for verifying the accuracy of all information and should investigate the data themselves or retain appropriate professionals. Information from sources other than the Listing Agent may have been included in the MLS data. Unless otherwise specified in writing, Broker/Agent has not and will not verify any information obtained from other sources. The Broker/Agent providing the information contained herein may or may not have been the Listing and/or Selling Agent.