Connect

Find us on...

Dashboard

Login using...

Shawn Bengtson

Office Broker - DRE 01236964

  • Office 760-805-7199
Questions?

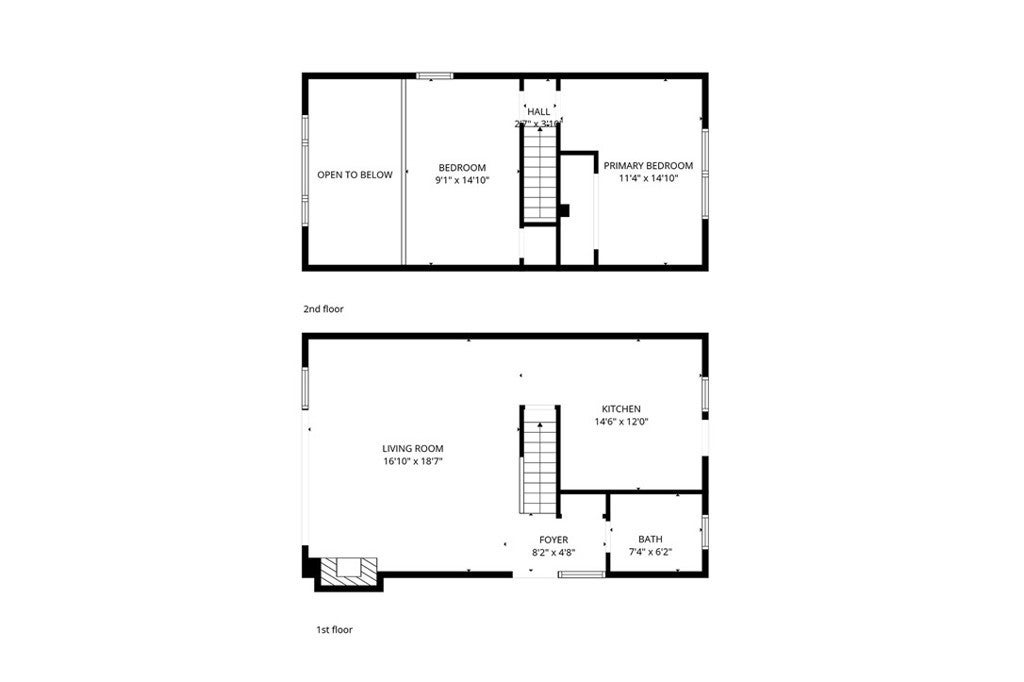
189 Moreno Lane, Sugarloaf – $359,000

  • 2 Beds
  • 1 Bath
  • 976 Sqft
  • .17 Acres
  • 2 Beds
  • 1 Bath
  • 976 Sqft
  • .17 Acres

189 Moreno Lane

Single-family cabin fully remodeled! This cozy 2 bedrooms, 1 bathroom home has been completely updated and is move-in ready, offering the perfect blend of comfort and mountain charm. Recent renovations include new flooring, freshly painted exterior walls, new bathroom, beautifully updated kitchen, including dishwasher and washer/dryer. The home is all furnished and for your convenience, all new furniture can be included for a small additional price. Situated on a spacious, flat corner lot, the property offers a huge yard with endless possibilities. Barbecue area under a charming gazebo, space to park trailer, boat or RV. A storage shed is also included, providing extra room for tools, equipment, or seasonal items. Located just 6 miles from the ski resort, walking distance to the local elementary and high schools, yet far enough to maintain peace and quiet. An excellent opportunity for investors seeking a vacation rental or for first-time buyers looking for an affordable, turnkey mountain retreat. For sale separately or together with a neighbor home (183 Moreno Lane - Sugarloaf)

Essential Information

  • MLS® #OC26053766
  • Price$359,000
  • Bedrooms2
  • Bathrooms1.00
  • Full Baths1
  • Square Footage976
  • Acres0.17
  • Year Built1977
  • TypeResidential
  • Sub-TypeCabin
  • StatusActive

Community Information

  • Address189 Moreno Lane
  • AreaSGLF - Sugarloaf
  • CitySugarloaf
  • CountySan Bernardino
  • Zip Code92386

Amenities

  • ParkingDriveway
  • GaragesDriveway
  • ViewMountain(s)
  • PoolNone

Utilities

Electricity Connected, Natural Gas Connected, Sewer Connected, Water Connected

Interior

  • InteriorTile, Vinyl
  • HeatingFireplace(s), Wall Furnace
  • CoolingNone
  • FireplaceYes
  • FireplacesWood Burning
  • # of Stories2
  • StoriesTwo

Interior Features

Breakfast Bar, Eat-in Kitchen, Furnished, Granite Counters, High Ceilings, Unfurnished, All Bedrooms Up

Appliances

SixBurnerStove, Barbecue, Dishwasher, Disposal, Gas Oven, Gas Range, Gas Water Heater, Microwave, Refrigerator, Range Hood, Dryer, Washer

Exterior

  • Lot DescriptionLevel, Street Level
  • WindowsScreens
  • RoofShingle
  • FoundationSlab

School Information

  • DistrictBear Valley Unified
  • ElementaryBaldwin
  • MiddleBig Bear
  • HighBig Bear

Additional Information

  • Date ListedMarch 11th, 2026
  • Days on Market4

Listing Details

  • AgentMarina Moulin Penido Ferrei
  • OfficeO'Donnell Real Estate
Please provide a valid email address.

Marina Moulin Penido Ferrei, O'Donnell Real Estate.

Based on information from California Regional Multiple Listing Service, Inc. as of March 16th, 2026 at 12:30am PDT. This information is for your personal, non-commercial use and may not be used for any purpose other than to identify prospective properties you may be interested in purchasing. Display of MLS data is usually deemed reliable but is NOT guaranteed accurate by the MLS. Buyers are responsible for verifying the accuracy of all information and should investigate the data themselves or retain appropriate professionals. Information from sources other than the Listing Agent may have been included in the MLS data. Unless otherwise specified in writing, Broker/Agent has not and will not verify any information obtained from other sources. The Broker/Agent providing the information contained herein may or may not have been the Listing and/or Selling Agent.