Connect

Find us on...

Dashboard

Login using...

Shawn Bengtson

Office Broker - DRE 01236964

  • Office 760-805-7199
Questions?

2325 Dunes, Tustin – $1,199,000

  • 3 Beds
  • 3 Baths
  • 1,718 Sqft
  • 3.1 Acres
  • 3 Beds
  • 3 Baths
  • 1,718 Sqft
  • 3.1 Acres

2325 Dunes

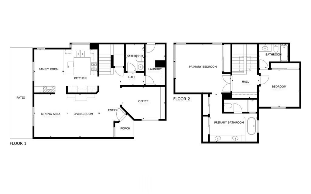
Experience elevated living in upper Tustin Ranch at 2325 Dunes, a beautifully appointed residence ideally situated in the sought-after gated community of Ventana. This townhome-style property welcomes you into the main living areas on the ground floor. Offering 3 bedrooms, 3 bathrooms, and approximately 1,718 square feet of thoughtfully designed open-concept space. With no neighbors above or below, enjoy the privacy of townhome-style living, complemented by a secluded patio featuring low-maintenance landscaping and a trellis cover—ideal for relaxing or entertaining outdoors. Inside, experience a seamless blend between living and dining areas highlighted by vaulted ceilings and an abundance of natural light. The dining area opens directly to the patio, embracing the indoor-outdoor lifestyle Orange County is known for. The main level also includes a convenient bedroom, which is currently staged as an office, offering versatility and added convenience. Additional amenities include a dedicated laundry room, downstairs bathroom, and direct access to a side-by-side two-car garage. The kitchen is both bright and inviting featuring bar seating and an intimate breakfast area situated near a cozy fireplace with access to the private courtyard. Upstairs, the expansive primary suite offers vaulted ceilings, dual closets, and an en-suite bathroom with dual vanities, a soaking tub, and a separate shower. The additional upstairs bedroom functions as a junior suite with its own private bathroom and closet. Located in the desirable upper Tustin Ranch area, Ventana residents benefit from close proximity to Tustin Ranch Golf Club, The Market Place for shopping and dining, and highly rated schools. The community also provides exclusive access to Greenway Park, which includes a pool, spa, playground, and tennis courts—delivering resort-style amenities just steps from home.

Essential Information

  • MLS® #OC26065449
  • Price$1,199,000
  • Bedrooms3
  • Bathrooms3.00
  • Full Baths3
  • Square Footage1,718
  • Acres3.10
  • Year Built1992
  • TypeResidential
  • Sub-TypeTownhouse
  • StatusActive

Community Information

  • Address2325 Dunes
  • Area89 - Tustin Ranch
  • SubdivisionVentana (VENT)
  • CityTustin
  • CountyOrange
  • Zip Code92782

Amenities

  • Parking Spaces2
  • # of Garages2
  • ViewNone
  • Has PoolYes
  • PoolAssociation

Amenities

Controlled Access, Maintenance Grounds, Maintenance Front Yard, Playground, Pool, Spa/Hot Tub, Tennis Court(s), Trash

Parking

Direct Access, Door-Single, Garage

Garages

Direct Access, Door-Single, Garage

Interior

  • InteriorCarpet, Tile
  • HeatingCentral, Fireplace(s)
  • CoolingCentral Air
  • FireplaceYes
  • FireplacesKitchen
  • # of Stories2
  • StoriesTwo

Interior Features

Built-in Features, Eat-in Kitchen, High Ceilings, Open Floorplan, Recessed Lighting, Bedroom on Main Level, Multiple Primary Suites, Primary Suite

Appliances

Dishwasher, Electric Oven, Gas Range, Microwave

School Information

  • DistrictTustin Unified
  • ElementaryLadera
  • MiddlePioneer
  • HighBeckman

Additional Information

  • Date ListedApril 7th, 2026
  • Days on Market9
  • HOA Fees434
  • HOA Fees Freq.Monthly

Listing Details

  • AgentDaniel Choi
  • OfficeColdwell Banker Realty
Please provide a valid email address.

Daniel Choi, Coldwell Banker Realty.

Based on information from California Regional Multiple Listing Service, Inc. as of April 16th, 2026 at 7:41pm PDT. This information is for your personal, non-commercial use and may not be used for any purpose other than to identify prospective properties you may be interested in purchasing. Display of MLS data is usually deemed reliable but is NOT guaranteed accurate by the MLS. Buyers are responsible for verifying the accuracy of all information and should investigate the data themselves or retain appropriate professionals. Information from sources other than the Listing Agent may have been included in the MLS data. Unless otherwise specified in writing, Broker/Agent has not and will not verify any information obtained from other sources. The Broker/Agent providing the information contained herein may or may not have been the Listing and/or Selling Agent.