Connect

Find us on...

Dashboard

Login using...

Shawn Bengtson

Office Broker - DRE 01236964

  • Office 760-805-7199
Questions?

6292 Forester, Huntington Beach – $3,350,000

  • 4 Beds
  • 4 Baths
  • 3,150 Sqft
  • .12 Acres
  • 4 Beds
  • 4 Baths
  • 3,150 Sqft
  • .12 Acres

6292 Forester

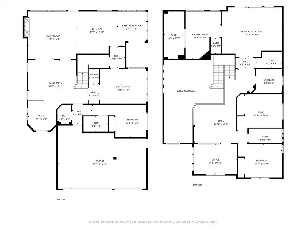
Beautiful home located in the highly desirable guard gated community of the Peninsula, a Seacliff Development. This home sits on a fabulous lot backing to the fairway of the Huntington Club Golf Course with gorgeous views. Great family floorplan with 3 bedrooms upstairs plus 1 down with its own attached bathroom. Plus, a great enclosed office, playroom or work out room and large loft area. The home is upgraded with designer carpet, custom cabinetry and beautiful wood flooring. The kitchen has stainless steel appliances, granite counters, large dining nook plus a huge walk in pantry and coffee/serving bar that leads to the formal dining room. 3 car attached garage has tons of storage as well. You’ll love relaxing in the sunny backyard and watching the sunsets and golfers! This wonderful community is close to Seacliff Elementary and Huntington Beach High School and just quick bike ride to beach and dining in downtown HB. More photos to come…

Essential Information

  • MLS® #OC26070218
  • Price$3,350,000
  • Bedrooms4
  • Bathrooms4.00
  • Full Baths3
  • Square Footage3,150
  • Acres0.12
  • Year Built1998
  • TypeResidential
  • Sub-TypeSingle Family Residence
  • StyleCraftsman
  • StatusActive

Community Information

  • Address6292 Forester
  • Area15 - West Huntington Beach
  • SubdivisionPeninsula Park (PNSL)
  • CityHuntington Beach
  • CountyOrange
  • Zip Code92648

Amenities

  • Parking Spaces3
  • # of Garages3
  • ViewGolf Course
  • PoolNone

Amenities

Dog Park, Maintenance Grounds, Management, Playground, Guard, Security

Interior

  • InteriorCarpet, Stone, Wood
  • CoolingNone
  • FireplaceYes
  • FireplacesFamily Room
  • # of Stories2
  • StoriesTwo

Interior Features

Balcony, Breakfast Area, Ceiling Fan(s), Separate/Formal Dining Room, High Ceilings, Two Story Ceilings, Bedroom on Main Level, Loft, Primary Suite, Walk-In Pantry, Walk-In Closet(s)

Appliances

SixBurnerStove, Built-In Range, Convection Oven, Dishwasher, Gas Cooktop, Microwave, Refrigerator

Exterior

  • Lot DescriptionZeroToOneUnitAcre

School Information

  • DistrictHuntington Beach Union High
  • ElementarySeacliff
  • MiddleDwyer

Additional Information

  • Date ListedApril 1st, 2026
  • Days on Market2
  • HOA Fees285
  • HOA Fees Freq.Monthly

Listing Details

  • AgentLisa Knott
  • OfficeSeven Gables Real Estate
Please provide a valid email address.

Lisa Knott, Seven Gables Real Estate.

Based on information from California Regional Multiple Listing Service, Inc. as of April 3rd, 2026 at 3:56am PDT. This information is for your personal, non-commercial use and may not be used for any purpose other than to identify prospective properties you may be interested in purchasing. Display of MLS data is usually deemed reliable but is NOT guaranteed accurate by the MLS. Buyers are responsible for verifying the accuracy of all information and should investigate the data themselves or retain appropriate professionals. Information from sources other than the Listing Agent may have been included in the MLS data. Unless otherwise specified in writing, Broker/Agent has not and will not verify any information obtained from other sources. The Broker/Agent providing the information contained herein may or may not have been the Listing and/or Selling Agent.