Connect

Find us on...

Dashboard

Login using...

Shawn Bengtson

Office Broker - DRE 01236964

  • Office 760-805-7199
Questions?

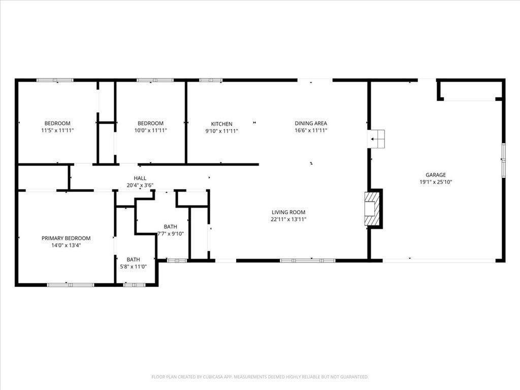
3930 Hildale Avenue, Oroville – $325,000

  • 3 Beds
  • 2 Baths
  • 1,410 Sqft
  • .45 Acres
  • 3 Beds
  • 2 Baths
  • 1,410 Sqft
  • .45 Acres

3930 Hildale Avenue

This well maintained 3-bedroom, 2-bathroom home sits on nearly a half-acre and is set slightly up off the road, giving it a welcoming and private presence. Inside, you’ll appreciate the spacious layout, nicely sized bedrooms (with original hardwood floors under the carpets) and a brick fireplace that adds a cozy focal point to the living space. An abundance of natural light shines through the updated windows. Recent improvements include a new roof and gutters, plus the comfort of central heat and air. The two-car garage provides ample storage and parking plus there is plenty of space for RV parking and maneuvering with the large concrete circular driveway. The yard offers plenty of space, is terraced in the back and is ready for your personal touch to make it shine. Come make this well priced home in a desired location yours!

Essential Information

  • MLS® #OR25241110
  • Price$325,000
  • Bedrooms3
  • Bathrooms2.00
  • Full Baths2
  • Square Footage1,410
  • Acres0.45
  • Year Built1963
  • TypeResidential
  • Sub-TypeSingle Family Residence
  • StatusActive Under Contract

Community Information

  • Address3930 Hildale Avenue
  • CityOroville
  • CountyButte
  • Zip Code95966

Amenities

  • UtilitiesWater Connected
  • Parking Spaces2
  • # of Garages2
  • ViewHills, Neighborhood
  • PoolNone

Parking

Boat, Concrete, Door-Multi, Direct Access, Driveway, Garage Faces Front, Garage, Garage Door Opener, Private, RV Access/Parking

Garages

Boat, Concrete, Door-Multi, Direct Access, Driveway, Garage Faces Front, Garage, Garage Door Opener, Private, RV Access/Parking

Interior

  • InteriorCarpet, Laminate, Wood
  • HeatingCentral, Fireplace(s)
  • CoolingCentral Air
  • FireplaceYes
  • FireplacesFamily Room, Wood Burning
  • # of Stories1
  • StoriesOne

Interior Features

Breakfast Bar, Ceiling Fan(s), Crown Molding, Separate/Formal Dining Room, Walk-In Closet(s)

Appliances

Dishwasher, Electric Cooktop, Electric Oven, Refrigerator

Exterior

  • WindowsDouble Pane Windows
  • RoofComposition
  • FoundationRaised

Lot Description

Sloped Down, Gentle Sloping, Rectangular Lot

School Information

  • DistrictOroville Union

Additional Information

  • Date ListedOctober 20th, 2025
  • Days on Market22

Listing Details

  • AgentJamie Engen
  • OfficeBidwell Realty
Please provide a valid email address.

Price Change History for 3930 Hildale Avenue, Oroville, (MLS® #OR25241110)

Date Details Change
Status Changed from Active to Active Under Contract

Jamie Engen, Bidwell Realty.

Based on information from California Regional Multiple Listing Service, Inc. as of November 12th, 2025 at 11:56pm PST. This information is for your personal, non-commercial use and may not be used for any purpose other than to identify prospective properties you may be interested in purchasing. Display of MLS data is usually deemed reliable but is NOT guaranteed accurate by the MLS. Buyers are responsible for verifying the accuracy of all information and should investigate the data themselves or retain appropriate professionals. Information from sources other than the Listing Agent may have been included in the MLS data. Unless otherwise specified in writing, Broker/Agent has not and will not verify any information obtained from other sources. The Broker/Agent providing the information contained herein may or may not have been the Listing and/or Selling Agent.