Connect

Find us on...

Dashboard

Login using...

Shawn Bengtson

Office Broker - DRE 01236964

  • Office 760-805-7199
Questions?

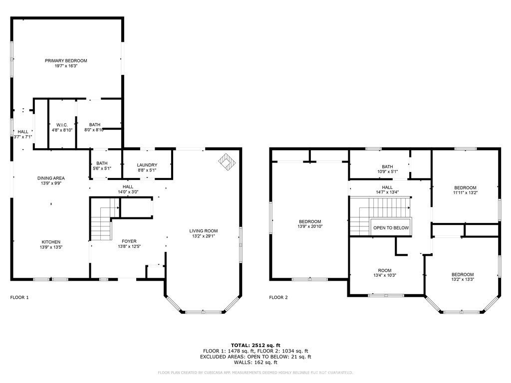
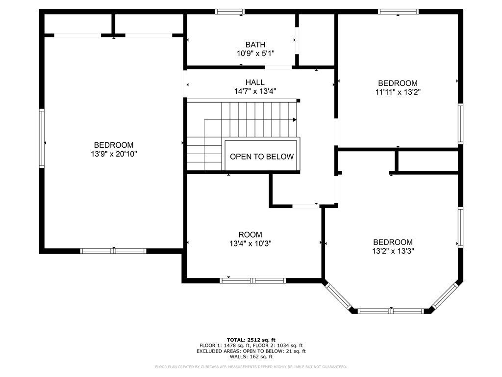
83 Gopher, Oroville – $667,499

  • 4 Beds
  • 2 Baths
  • 2,688 Sqft
  • 2.63 Acres
  • 4 Beds
  • 2 Baths
  • 2,688 Sqft
  • 2.63 Acres

83 Gopher

Price has been improved! Originally Priced at $698,898- Value, Value, Value! Welcome to your dream retreat - a thoughtfully designed home set on 2.63 acres beautifully groomed acres near the end of a quiet semi-private road. Featuring a wrapping front porch, circular driveway, and detached 2-car garage/shop with an extra width and depth, this property offers the space and flexibility today's buyers crave. Above the garage is an unfinished ADU, ready for your vision. Step inside to discover a sunken living room, a larger updated kitchen, and a downstairs master suite that adds ease and privacy. A covered deck complete with a hot tube and direct access to the pool. Upstairs, a bonus room makes a perfect home office, and one of the oversized bedrooms offers plenty of room for multiple beds or dual-use living. Relax or entertain by the built-in pool, powered by an owned, abundantly sized solar electric system that helps ensure an impressively low PG&E utility bill. This is more than a home - it's a lifestyle. Quiet, private, and family friendly, yet close to town, schools, shopping, and commuter routes. Whether you're looking to raise a family, work from home, or entertain with ease, this one-of-a-kind property is ready to welcome you.

Essential Information

  • MLS® #OR26000098
  • Price$667,499
  • Bedrooms4
  • Bathrooms2.00
  • Full Baths2
  • Square Footage2,688
  • Acres2.63
  • Year Built1993
  • TypeResidential
  • Sub-TypeSingle Family Residence
  • StatusActive

Community Information

  • Address83 Gopher
  • CityOroville
  • CountyButte
  • Zip Code95966

Amenities

  • Parking Spaces2
  • # of Garages2
  • ViewPasture
  • Has PoolYes

Pool

Fenced, Gunite, Private, Diving Board

Interior

  • Interior FeaturesMain Level Primary
  • HeatingCentral
  • CoolingCentral Air
  • FireplaceYes
  • FireplacesLiving Room
  • # of Stories2
  • StoriesTwo

Exterior

  • Lot DescriptionCorners Marked

School Information

  • DistrictOroville Union

Additional Information

  • Date ListedJanuary 1st, 2026
  • Days on Market34

Listing Details

  • AgentDavid Silva

Office

Real Brokerage Technologies, Inc

Please provide a valid email address.

David Silva, Real Brokerage Technologies, Inc.

Based on information from California Regional Multiple Listing Service, Inc. as of February 4th, 2026 at 6:56pm PST. This information is for your personal, non-commercial use and may not be used for any purpose other than to identify prospective properties you may be interested in purchasing. Display of MLS data is usually deemed reliable but is NOT guaranteed accurate by the MLS. Buyers are responsible for verifying the accuracy of all information and should investigate the data themselves or retain appropriate professionals. Information from sources other than the Listing Agent may have been included in the MLS data. Unless otherwise specified in writing, Broker/Agent has not and will not verify any information obtained from other sources. The Broker/Agent providing the information contained herein may or may not have been the Listing and/or Selling Agent.