Connect

Find us on...

Dashboard

Login using...

Shawn Bengtson

Office Broker - DRE 01236964

  • Office 760-805-7199
Questions?

31 Fulton Avenue, Pasadena – $4,500

  • $4.5k Price
  • 4 DOM
  • $4.5k Price
  • 4 DOM

31 Fulton Avenue

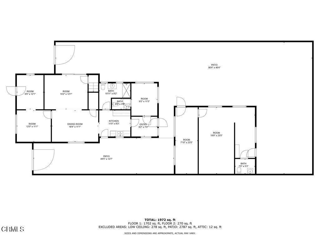
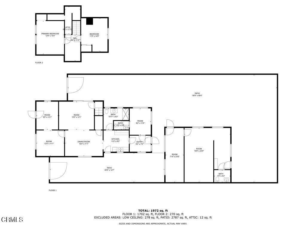
Commercial building located in north east Pasadena. Two separate buildings with separated driveways. Zoned Commercial Manufacturing, the property has many different possibilities for businesses. The property was built in 1914 as a single family home. As you walk in the front door, there is a small room that can be used as a reception area and two larger rooms next to the kitchen and bathroom with shower. Next to the back door are laundry hookups. An additional room with 1/2 bath completes the downstairs space. Property also has a converted attic space with two small rooms. There is a separate rear flex space that is comprised of 3 attached rectangular rooms with a rear restroom. There are two side yards that can be used as parking or outdoor space. Great location near the 210 freeway, Whole Foods, Amazon Fresh, Home Depot, Hastings Village, Target and many other large retailers and restaurants.

Essential Information

  • MLS® #P1-25803
  • Price$4,500
  • Bathrooms0.00
  • Acres0.00
  • Year Built1914
  • TypeCommercial Lease
  • Sub-TypeIndustrial
  • StatusActive

Community Information

  • Address31 Fulton Avenue
  • Area646 - Pasadena (NE)
  • CityPasadena
  • CountyOther

Exterior

  • Lot DescriptionSprinklers None

Additional Information

  • Date ListedFebruary 10th, 2026
  • Days on Market4

Listing Details

  • AgentJenny Lin
  • OfficeBerkshire Hathaway Home Servic
Please provide a valid email address.

Jenny Lin, Berkshire Hathaway Home Servic.

Based on information from California Regional Multiple Listing Service, Inc. as of February 14th, 2026 at 12:26pm PST. This information is for your personal, non-commercial use and may not be used for any purpose other than to identify prospective properties you may be interested in purchasing. Display of MLS data is usually deemed reliable but is NOT guaranteed accurate by the MLS. Buyers are responsible for verifying the accuracy of all information and should investigate the data themselves or retain appropriate professionals. Information from sources other than the Listing Agent may have been included in the MLS data. Unless otherwise specified in writing, Broker/Agent has not and will not verify any information obtained from other sources. The Broker/Agent providing the information contained herein may or may not have been the Listing and/or Selling Agent.