Connect

Find us on...

Dashboard

Login using...

Shawn Bengtson

Office Broker - DRE 01236964

  • Office 760-805-7199
Questions?

65 Grace Terrace, Pasadena – $4,500

  • 3 Beds
  • 2 Baths
  • 1,287 Sqft
  • .17 Acres
  • 3 Beds
  • 2 Baths
  • 1,287 Sqft
  • .17 Acres

65 Grace Terrace

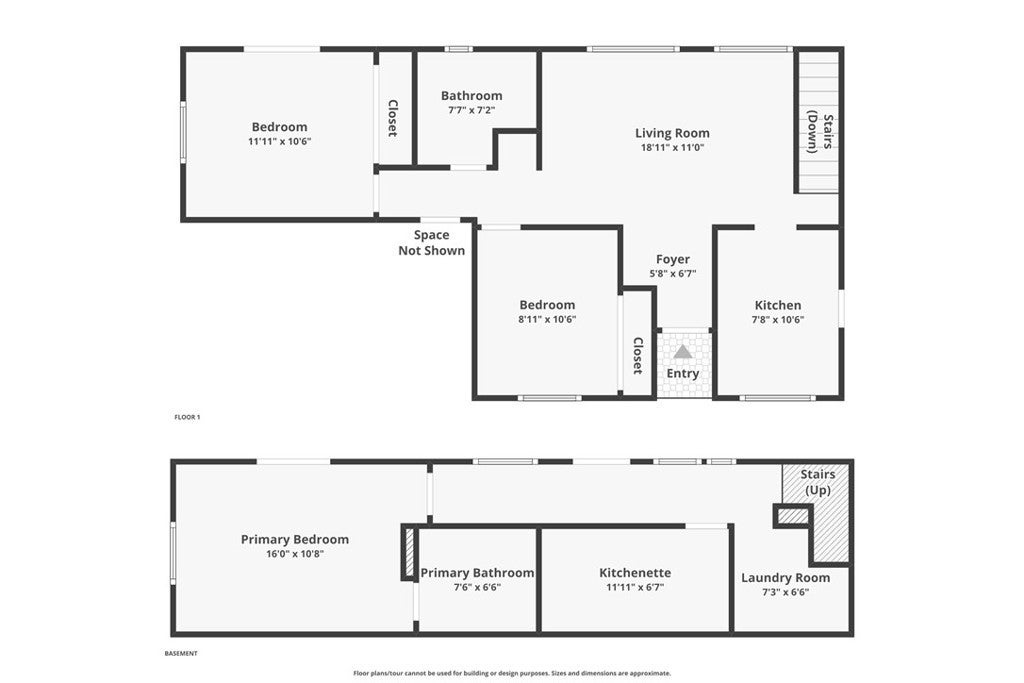
Don't miss out on 65 Grace Terrace, a wonderful three-bedroom, two-bathroom residence offering a quiet retreat from the modern pace. Gorgeous treetop views define the home, visible from both the light-filled main living area and the primary bedroom, which features its own private balcony. The thoughtful floor plan features two bedrooms on the main level, while a versatile third bedroom and bonus kitchenette on the lower level provide the perfect footprint for a private creative studio, home office or guest suite. The interior boasts significant recent upgrades, including new flooring throughout the top level, fresh paint, updated bathroom fixtures, new ceiling fans, and newer washer and dryer. The downstairs office/studio has sliding glass doors that open to a spacious garden-level deck. Cradled by mature oak trees and elevated above the city's bustle, the property offers a serene, retreat-like atmosphere while remaining strategically positioned just moments from Old Town's premier shops and dining, the Norton Simon Museum, Art Center, Huntington Hospital, and the Rose Bowl. This prestigious Grace Hill enclave is defined by its dramatic undulating topography, where winding, canopy-lined streets follow the natural contours of the hills to create an environment of absolute privacy and permanence. Characterized by a "canyon quiet" that feels worlds away from the urban core, the area serves as a natural sanctuary where the rugged beauty of the Arroyo Seco meets a refined residential stature. This location remains unparalleled for its proximity to multiple freeways, offering seamless access to the greater Los Angeles area.

Essential Information

  • MLS® #PF26014285
  • Price$4,500
  • Bedrooms3
  • Bathrooms2.00
  • Full Baths1
  • Square Footage1,287
  • Acres0.17
  • Year Built1947
  • TypeResidential Lease
  • Sub-TypeSingle Family Residence
  • StyleBungalow
  • StatusActive

Community Information

  • Address65 Grace Terrace
  • Area647 - Pasadena (SW)
  • CityPasadena
  • CountyLos Angeles
  • Zip Code91105

Amenities

  • ParkingGarage Faces Front, Garage
  • GaragesGarage Faces Front, Garage
  • PoolNone

Utilities

See Remarks, Gardener, Trash Collection

View

City Lights, Mountain(s), Neighborhood, Trees/Woods

Interior

  • InteriorWood
  • Interior FeaturesBalcony
  • HeatingCentral
  • CoolingCentral Air
  • FireplacesNone
  • # of Stories2
  • StoriesTwo

Appliances

Dishwasher, Gas Range, Refrigerator, Tankless Water Heater, Water Heater, Dryer, Washer

Exterior

  • ExteriorStucco
  • Lot DescriptionZeroToOneUnitAcre
  • RoofAsphalt
  • ConstructionStucco
  • FoundationConcrete Perimeter

School Information

  • DistrictPasadena Unified

Additional Information

  • Date ListedJanuary 19th, 2026
  • Days on Market15

Listing Details

  • AgentKhanh Oberley
  • OfficeDouglas Elliman of CA, Inc.
Please provide a valid email address.

Khanh Oberley, Douglas Elliman of CA, Inc..

Based on information from California Regional Multiple Listing Service, Inc. as of February 7th, 2026 at 5:45am PST. This information is for your personal, non-commercial use and may not be used for any purpose other than to identify prospective properties you may be interested in purchasing. Display of MLS data is usually deemed reliable but is NOT guaranteed accurate by the MLS. Buyers are responsible for verifying the accuracy of all information and should investigate the data themselves or retain appropriate professionals. Information from sources other than the Listing Agent may have been included in the MLS data. Unless otherwise specified in writing, Broker/Agent has not and will not verify any information obtained from other sources. The Broker/Agent providing the information contained herein may or may not have been the Listing and/or Selling Agent.