Connect

Find us on...

Dashboard

Login using...

Shawn Bengtson

Office Broker - DRE 01236964

  • Office 760-805-7199
Questions?

3213 Mills Avenue, La Crescenta – $925,000

  • $925k Price
  • .11 Acres
  • 28 DOM
  • $925k Price
  • .11 Acres
  • 28 DOM

3213 Mills Avenue

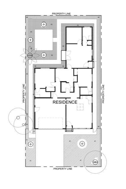
LAND VALUE INCLUDING PLANNING AND PERMITS FOR NEW HOME- A great opportunity to build your forever home. The existing structure on the property is not livable, this sale includes already permitted plans for a 1,950sqft single-story home with an attached garage. Don't miss the opportunity to create your dream home in a great city!

Essential Information

  • MLS® #PF26062488
  • Price$925,000
  • Bathrooms0.00
  • Acres0.11
  • TypeLand
  • StatusActive

Community Information

  • Address3213 Mills Avenue
  • CityLa Crescenta
  • CountyLos Angeles
  • Zip Code91214

Area

635 - La Crescenta/Glendale Montrose & Annex

Amenities

  • ViewMountain(s), Neighborhood

Exterior

  • Lot DescriptionZeroToOneUnitAcre, Back Yard

Additional Information

  • Date ListedMarch 23rd, 2026
  • Days on Market28
  • ZoningR1

Listing Details

  • AgentBailey Hall
  • OfficeDeseret Realty
Please provide a valid email address.

Bailey Hall, Deseret Realty.

Based on information from California Regional Multiple Listing Service, Inc. as of April 20th, 2026 at 4:31pm PDT. This information is for your personal, non-commercial use and may not be used for any purpose other than to identify prospective properties you may be interested in purchasing. Display of MLS data is usually deemed reliable but is NOT guaranteed accurate by the MLS. Buyers are responsible for verifying the accuracy of all information and should investigate the data themselves or retain appropriate professionals. Information from sources other than the Listing Agent may have been included in the MLS data. Unless otherwise specified in writing, Broker/Agent has not and will not verify any information obtained from other sources. The Broker/Agent providing the information contained herein may or may not have been the Listing and/or Selling Agent.