Connect

Find us on...

Dashboard

Login using...

Shawn Bengtson

Office Broker - DRE 01236964

  • Office 760-805-7199
Questions?

1783 N Leonard, Clovis – $405,999

  • 2 Beds
  • 3 Baths
  • 1,286 Sqft
  • .06 Acres
  • 2 Beds
  • 3 Baths
  • 1,286 Sqft
  • .06 Acres

1783 N Leonard

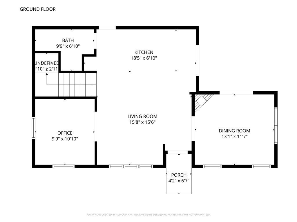
This move-in ready, single-family 2-story charms from the sidewalk! The moment you walk in you’ll be delighted with a sense of spaciousness. The ground floor’s open-concept layout comprises kitchen, dining room, living room, half bath and comfy office, convertible to a downstairs 3rd bedroom. Ten-foot ceilings maximize the light and visual flow of this 1,286 sq ft floor plan. All appliances are included. The kitchen’s gas stove is equipped with 4 burners, a middle grill and a convection oven. Both kitchen and half bath have been furnished with handsome granite countertops. You’ll love the oversized island countertop with its double-basin, stainless steel sink, perfect for spacious serving and dining! Upstairs is the primary bedroom with dual bathroom sinks, and a “junior” primary bedroom—each with its own private-access bathroom for maximum privacy! The 1-car garage is off the kitchen, making unloading groceries a snap. Every room reflects the meticulous care and maintenance lavished on this 2008 home. You’ll see freshly painted walls and newer tile, carpet and laminate on every floor. Outside you’ll enjoy the tiled covered patio, perfect for entertaining and relaxing. This 2008 home is energy-efficient! Its perimeter was constructed with 2”x6” studs and extra insulation. It is equipped with a high-efficiency, tankless water heater. And for energy-efficient heating and cooling it boasts a ± 6-month new, Energy Star Qualified Daikin Heat Pump, which allows separate control of upstairs/downstairs temperatures! Add in the HOA benefits which include gardening, a community clubhouse and large swimming pool...abundant guest parking...walking trails...proximity to top-rated schools and shopping...and proximity to Shaver Lake, Kings Canyon National Parks, and Sequoia National Forest...you may want to move in the moment you walk in! Call your Realtor® for a private tour! *All information is deemed reliable but is not guaranteed by Agent or Broker.

Essential Information

  • MLS® #PI25250917
  • Price$405,999
  • Bedrooms2
  • Bathrooms3.00
  • Full Baths2
  • Half Baths1
  • Square Footage1,286
  • Acres0.06
  • Year Built2008
  • TypeResidential
  • Sub-TypeSingle Family Residence
  • StatusActive

Community Information

  • Address1783 N Leonard
  • Area699 - Not Defined
  • CityClovis
  • CountyFresno
  • Zip Code93619

Amenities

  • Parking Spaces1
  • # of Garages1
  • ViewNone
  • Has PoolYes
  • PoolFenced, In Ground, Association

Amenities

Clubhouse, Maintenance Grounds, Insurance, Picnic Area, Playground, Pool, Spa/Hot Tub, Trail(s), Maintenance Front Yard, Meeting/Banquet/Party Room

Utilities

Electricity Connected, Natural Gas Connected, Sewer Connected, Water Connected, Underground Utilities

Parking

Concrete, Direct Access, Door-Single, Garage, Garage Door Opener, Paved

Garages

Concrete, Direct Access, Door-Single, Garage, Garage Door Opener, Paved

Interior

  • InteriorCarpet, Laminate, Tile
  • FireplaceYes
  • FireplacesGas
  • # of Stories2
  • StoriesTwo

Interior Features

Breakfast Bar, Eat-in Kitchen, Granite Counters, High Ceilings, Multiple Staircases, Recessed Lighting, Tile Counters, All Bedrooms Up, Multiple Primary Suites, Walk-In Closet(s)

Appliances

Convection Oven, Dishwasher, Electric Range, Disposal, Gas Range, High Efficiency Water Heater, Microwave, Refrigerator, Self Cleaning Oven, Tankless Water Heater, Vented Exhaust Fan, Water To Refrigerator, Dryer, Washer

Heating

Forced Air, High Efficiency, Heat Pump

Cooling

Central Air, ENERGY STAR Qualified Equipment, High Efficiency, Heat Pump

Exterior

  • Exterior FeaturesRain Gutters
  • WindowsDouble Pane Windows, Screens
  • RoofClay, Composition, Mixed
  • FoundationSlab

Lot Description

Front Yard, Lawn, Sprinkler System, Street Level, Trees, Zero Lot Line

School Information

  • DistrictClovis Unified
  • ElementaryOther
  • MiddleOther
  • HighOther

Additional Information

  • Date ListedNovember 1st, 2025
  • Days on Market46
  • HOA Fees169
  • HOA Fees Freq.Monthly

Listing Details

  • AgentJill Bennett
  • OfficeLPT Realty, Inc.
Please provide a valid email address.

Price Change History for 1783 N Leonard, Clovis, (MLS® #PI25250917)

Date Details Change
Price Reduced from $425,000 to $405,999 $19,001 (4.47%)
Price Reduced from $439,000 to $425,000 $14,000 (3.19%)

Jill Bennett, LPT Realty, Inc..

Based on information from California Regional Multiple Listing Service, Inc. as of December 16th, 2025 at 11:56pm PST. This information is for your personal, non-commercial use and may not be used for any purpose other than to identify prospective properties you may be interested in purchasing. Display of MLS data is usually deemed reliable but is NOT guaranteed accurate by the MLS. Buyers are responsible for verifying the accuracy of all information and should investigate the data themselves or retain appropriate professionals. Information from sources other than the Listing Agent may have been included in the MLS data. Unless otherwise specified in writing, Broker/Agent has not and will not verify any information obtained from other sources. The Broker/Agent providing the information contained herein may or may not have been the Listing and/or Selling Agent.