Connect

Find us on...

Dashboard

Login using...

Shawn Bengtson

Office Broker - DRE 01236964

  • Office 760-805-7199
Questions?

100 W Ramona Avenue, Grover Beach – $1,400,000

  • 3 Beds
  • 4 Baths
  • 1,967 Sqft
  • 44 DOM
  • 3 Beds
  • 4 Baths
  • 1,967 Sqft
  • 44 DOM

100 W Ramona Avenue

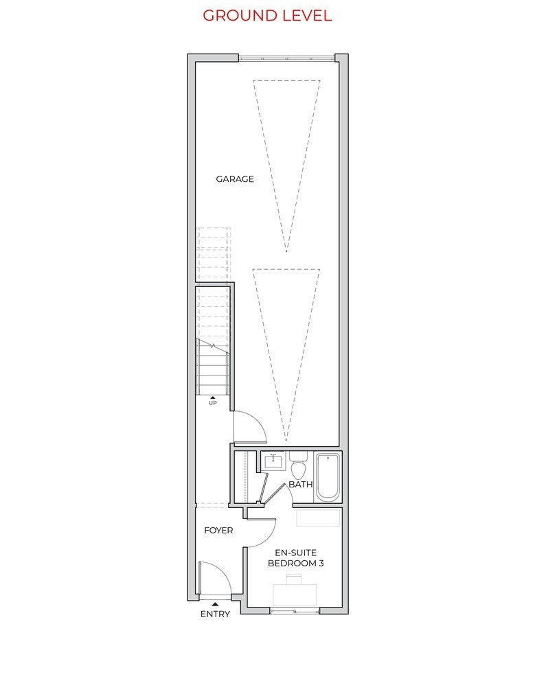
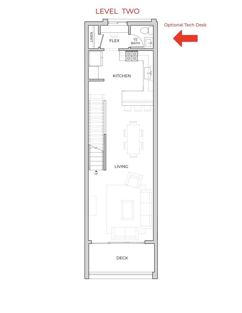
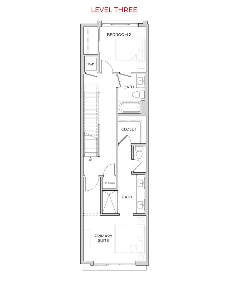
BRAND NEW CONSTRUCTION – Welcome to Lot 13 at Trinity, a limited collection of 23 luxury ocean-view townhomes and condominiums with spacious rooftop decks, located in Grover Beach's West End, just minutes from the shoreline. This contemporary 3-bedroom, 3.5-bath townhome offers open-concept living with modern and thoughtful finishes throughout. The kitchen features quartz countertops, designer cabinetry, and stainless-steel appliances. Multiple decks provide indoor-outdoor living. The primary bedroom is a tranquil retreat with a large sliding door to let the ocean breeze in and features an en-suite, spa-inspired bath and a spacious closet. The rooftop deck offers ocean and sunset views, with options for an outdoor kitchen and hot tub. Additional highlights include a two-car tandem garage with EV pre-wiring. The home is located near local beaches, cafes, farmers markets, and local wineries. Enjoy all that the Central Coast has to offer—all from your new coastal retreat.

Essential Information

  • MLS® #PI25253107
  • Price$1,400,000
  • Bedrooms3
  • Bathrooms4.00
  • Full Baths3
  • Half Baths1
  • Square Footage1,967
  • Acres0.00
  • Year Built2026
  • TypeResidential
  • Sub-TypeTownhouse
  • StyleContemporary, Modern
  • StatusActive

Community Information

  • Address100 W Ramona Avenue
  • AreaGRVC - Grover Beach
  • SubdivisionTrinity Townhomes and Condos
  • CityGrover Beach
  • CountySan Luis Obispo
  • Zip Code93433

Amenities

  • AmenitiesMaintenance Grounds
  • Parking Spaces2
  • # of Garages2
  • PoolNone

Utilities

Cable Available, Electricity Available, Natural Gas Available, Water Available

Parking

Door-Single, Garage, On Street, Tandem

Garages

Door-Single, Garage, On Street, Tandem

View

Coastline, Hills, Neighborhood, Panoramic

Waterfront

Across the Road from Lake/Ocean, Beach Access

Interior

  • InteriorCarpet, See Remarks, Vinyl
  • HeatingCentral
  • CoolingCentral Air
  • FireplacesNone
  • # of Stories4
  • StoriesThree Or More

Interior Features

Breakfast Bar, Balcony, Separate/Formal Dining Room, Living Room Deck Attached, Open Floorplan, Quartz Counters, Recessed Lighting, Tandem, Walk-In Closet(s)

Appliances

Dishwasher, Disposal, Gas Oven, Gas Range, Water Heater

Exterior

  • ExteriorStucco, Wood Siding
  • RoofComposition
  • ConstructionStucco, Wood Siding
  • FoundationSlab

Lot Description

Level, TwentyOneToTwentyFiveUnitsAcre, Zero Lot Line

School Information

  • DistrictLucia Mar Unified
  • ElementaryGrover Heights
  • MiddleJudkins
  • HighArroyo Grande

Additional Information

  • Date ListedNovember 4th, 2025
  • Days on Market44
  • HOA Fees182
  • HOA Fees Freq.Monthly

Listing Details

  • AgentShauna Weisbecker
  • OfficeCoastal Community Builders
Please provide a valid email address.

Shauna Weisbecker, Coastal Community Builders.

Based on information from California Regional Multiple Listing Service, Inc. as of December 24th, 2025 at 12:55am PST. This information is for your personal, non-commercial use and may not be used for any purpose other than to identify prospective properties you may be interested in purchasing. Display of MLS data is usually deemed reliable but is NOT guaranteed accurate by the MLS. Buyers are responsible for verifying the accuracy of all information and should investigate the data themselves or retain appropriate professionals. Information from sources other than the Listing Agent may have been included in the MLS data. Unless otherwise specified in writing, Broker/Agent has not and will not verify any information obtained from other sources. The Broker/Agent providing the information contained herein may or may not have been the Listing and/or Selling Agent.