Connect

Find us on...

Dashboard

Login using...

Shawn Bengtson

Office Broker - DRE 01236964

  • Office 760-805-7199
Questions?

1638 Aloha Place, Oceano – $395,000

  • $395k Price
  • .07 Acres
  • 22 DOM
  • $395k Price
  • .07 Acres
  • 22 DOM

1638 Aloha Place

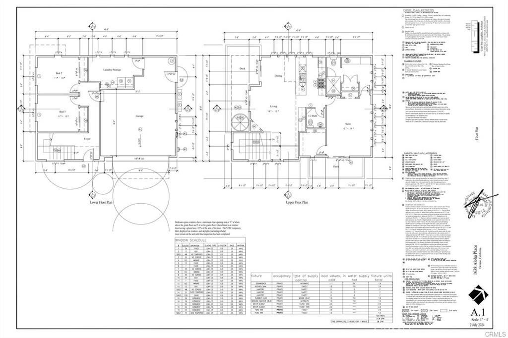
Exceptional opportunity to build your dream home on this residential lot just steps from beach access. Previously approved architectural plans are included for a 3-bedroom, 2-bath single-family residence. While the building permit will need to be renewed, all major approvals are already in place. The property has received approvals from: San Luis Obispo Archaeological Society – Approved Federal Aviation Administration (FAA) – Approved California Coastal Commission – Approved San Luis Obispo Public Works – Approved Over three years of extensive permitting work has already been completed, bringing this project significantly closer to reality. Numerous County fees have already been paid. Utilities are available at the curb, as this lot is located within an established neighborhood. A Natural Hazard Disclosure is available. Oceano is an unincorporated area, and all development questions should be directed to the County of San Luis Obispo. Build now and take advantage of this rare opportunity to own a nearly shovel-ready coastal homesite with approved plans for ocean views in place.

Essential Information

  • MLS® #PI26002721
  • Price$395,000
  • Bathrooms0.00
  • Acres0.07
  • TypeLand
  • StatusActive

Community Information

  • Address1638 Aloha Place
  • AreaOCNO - Oceano
  • SubdivisionOceano(350)
  • CityOceano
  • CountySan Luis Obispo
  • Zip Code93445

Amenities

  • ViewOcean, Creek/Stream, Water
  • WaterfrontBeach Access, Creek

Exterior

  • Lot DescriptionStreet Level

Additional Information

  • Date ListedJanuary 9th, 2026
  • Days on Market22
  • ZoningMFR

Listing Details

  • AgentJules Tuggle
  • OfficeAndrews Real Estate Group Inc
Please provide a valid email address.

Jules Tuggle, Andrews Real Estate Group Inc.

Based on information from California Regional Multiple Listing Service, Inc. as of February 3rd, 2026 at 2:56am PST. This information is for your personal, non-commercial use and may not be used for any purpose other than to identify prospective properties you may be interested in purchasing. Display of MLS data is usually deemed reliable but is NOT guaranteed accurate by the MLS. Buyers are responsible for verifying the accuracy of all information and should investigate the data themselves or retain appropriate professionals. Information from sources other than the Listing Agent may have been included in the MLS data. Unless otherwise specified in writing, Broker/Agent has not and will not verify any information obtained from other sources. The Broker/Agent providing the information contained herein may or may not have been the Listing and/or Selling Agent.