Connect

Find us on...

Dashboard

Login using...

Shawn Bengtson

Office Broker - DRE 01236964

  • Office 760-805-7199
Questions?

4617 4621 Idaho Street, San Diego – $2,650,000

  • 6 Beds
  • 7 Baths
  • .08 Acres
  • 41 DOM
  • 6 Beds
  • 7 Baths
  • .08 Acres
  • 41 DOM

4617 4621 Idaho Street

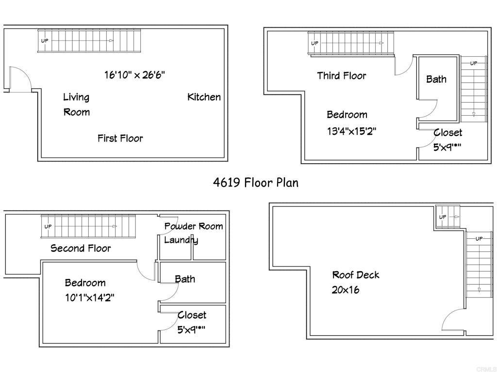
Luxury Living Meets Investment Opportunity. A rare chance to own a 4100sf modern trophy property in one of San Diego’s most desirable areas in North Park. Live in one residence, lease the others, or maximize returns while enjoying stable, high-end rental income. This impressive triplex includes (2) 2 Bed, 2.5 Bath units and (1) 2BD/2BA unit. Every residence features off-street parking with EV charging, paid solar, private rooftop decks with panoramic views, laundry rooms, oversized walk-in closets, and abundant storage. Interiors showcase luxury finishes; LVP flooring, quartz countertops, designer tile, spa-inspired baths with frameless shower enclosures, and custom lighting. The flexible layouts suit live/work lifestyles, long or mid-term rentals. All this in a thriving, historic neighborhood just moments from San Diego’s best dining, culture, and coastal access. An exceptional opportunity to combine lifestyle and investment in one property. Units are occupied. Drive by only, please do not disturb tenants.

Essential Information

  • MLS® #PTP2507053
  • Price$2,650,000
  • Bedrooms6
  • Bathrooms7.00
  • Acres0.08
  • Year Built2023
  • TypeResidential Income
  • StatusActive

Community Information

  • Address4617 4621 Idaho Street
  • Area92116 - Normal Heights
  • CitySan Diego
  • CountySan Diego
  • Zip Code92116

Amenities

  • UtilitiesWater Not Available
  • Parking Spaces3
  • PoolNone

Interior

  • Interior FeaturesOpen Floorplan, Wired for Data
  • AppliancesDryer, Washer
  • HeatingDuctless, Heat Pump
  • # of Stories3

Exterior

  • Lot DescriptionLandscaped

Additional Information

  • Date ListedSeptember 12th, 2025
  • Days on Market41
  • ZoningRM-2-5 buyer to verify

Listing Details

  • AgentJason Redditt
  • OfficeReal Estate Online
Please provide a valid email address.

Jason Redditt, Real Estate Online.

Based on information from California Regional Multiple Listing Service, Inc. as of November 24th, 2025 at 1:50am PST. This information is for your personal, non-commercial use and may not be used for any purpose other than to identify prospective properties you may be interested in purchasing. Display of MLS data is usually deemed reliable but is NOT guaranteed accurate by the MLS. Buyers are responsible for verifying the accuracy of all information and should investigate the data themselves or retain appropriate professionals. Information from sources other than the Listing Agent may have been included in the MLS data. Unless otherwise specified in writing, Broker/Agent has not and will not verify any information obtained from other sources. The Broker/Agent providing the information contained herein may or may not have been the Listing and/or Selling Agent.