Connect

Find us on...

Dashboard

Login using...

Shawn Bengtson

Office Broker - DRE 01236964

  • Office 760-805-7199
Questions?

2810 2818 Nye Street, San Diego – $2,295,000

  • $2.3M Price
  • .12 Acres
  • 111 DOM
  • $2.3M Price
  • .12 Acres
  • 111 DOM

2810 2818 Nye Street

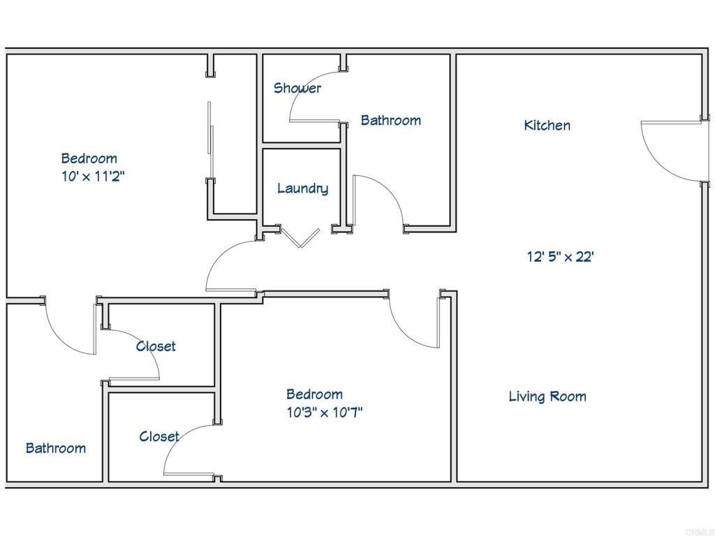
Exceptional investment opportunity in one of San Diego’s most dynamic rental markets. This property features (5) income-producing units, including a renovated detached 2 bed / 2 bath home of approximately 750SF and (4) brand-new 2 bed / 2 bath ADUs of approximately 822SF each. All units are separately metered for utilities, providing maximum efficiency and tenant accountability, and solar is fully paid. This turn-key asset combines modern construction with low-maintenance design, delivering immediate cash flow and strong long-term appreciation potential. With an ideal unit mix, reduced operating costs, and a highly desirable central location, Linda Vista remains one of San Diego’s most sought-after rental submarkets for tenants and investors alike. Interior features include 9-foot ceilings, premium designer fixtures and finishes, quartz countertops, ample storage, stainless-steel appliances, luxury vinyl plank flooring, spa-like bathrooms, and in-unit washers and dryers. Drive by only, please do not disturb tenants.

Essential Information

  • MLS® #PTP2507595
  • Price$2,295,000
  • Bathrooms0.00
  • Acres0.12
  • Year Built2025
  • TypeResidential Income
  • StatusActive

Community Information

  • Address2810 2818 Nye Street
  • Area92111 - Linda Vista
  • CitySan Diego
  • CountySan Diego
  • Zip Code92111

Amenities

  • PoolNone

Interior

  • AppliancesDryer, Washer
  • # of Stories2

Exterior

  • Lot DescriptionSloped Down

Additional Information

  • Date ListedSeptember 28th, 2025
  • Days on Market111
  • ZoningBuyer to verify

Listing Details

  • AgentJason Redditt
  • OfficeReal Estate Online
Please provide a valid email address.

Jason Redditt, Real Estate Online.

Based on information from California Regional Multiple Listing Service, Inc. as of January 23rd, 2026 at 11:56pm PST. This information is for your personal, non-commercial use and may not be used for any purpose other than to identify prospective properties you may be interested in purchasing. Display of MLS data is usually deemed reliable but is NOT guaranteed accurate by the MLS. Buyers are responsible for verifying the accuracy of all information and should investigate the data themselves or retain appropriate professionals. Information from sources other than the Listing Agent may have been included in the MLS data. Unless otherwise specified in writing, Broker/Agent has not and will not verify any information obtained from other sources. The Broker/Agent providing the information contained herein may or may not have been the Listing and/or Selling Agent.