Connect

Find us on...

Dashboard

Login using...

Shawn Bengtson

Office Broker - DRE 01236964

  • Office 760-805-7199
Questions?

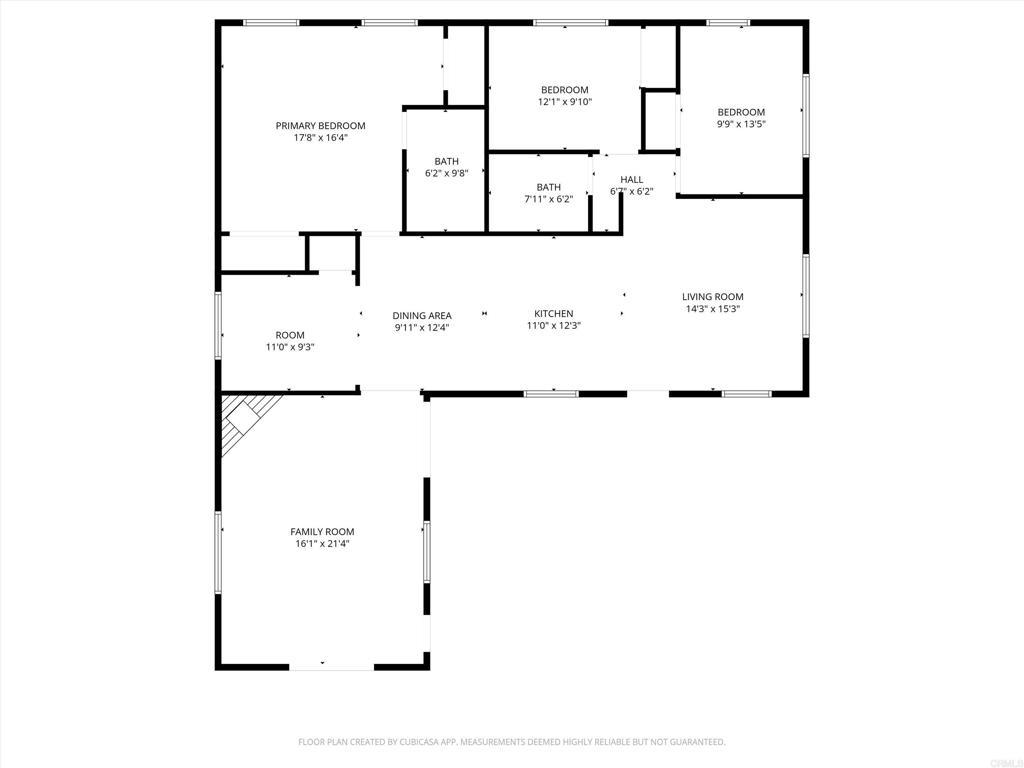
323 S 65th Street, Encanto – $799,000

  • 3 Beds
  • 2 Baths
  • 1,650 Sqft
  • ¼ Acres
  • 3 Beds
  • 2 Baths
  • 1,650 Sqft
  • ¼ Acres

323 S 65th Street

Unmatched Value in San Diego! No expense spared, PRICE TO SELL! Discover this stunning single-story home, 1650 sq ft a rare find that blends luxury and comfort. Features include: NEW ROOF & HUGE LOT: Enjoy privacy with no neighbors behind. Abundant Natural Light: Expansive windows illuminate the spacious layout, including a large bonus family room. Gourmet Kitchen: Brand new custom cabinets, luxurious Italian quartz countertops, and a complete stainless steel appliance package. Luxurious Bathrooms: Fully renovated with elegant tile, new vanities, modern faucets, and walk-in showers. Comfort & Efficiency: Two new mini-split AC and heating systems for year-round comfort. Stylish Interior: Gorgeous fireplace, waterproof flooring throughout, upgraded baseboards, modern doors, and ceiling fans. Energy Efficient: Soundproof retrofit dual-pane windows, new LED recessed lighting, electrical, and plumbing throughout. Ready to Move In: Laundry room hookups, fresh interior and exterior paint, and updated low-maintenance landscaping. Versatile Detached Garage: Ready for conversion to an ADU with a spacious driveway and new fencing on a large lot, perfect for future ADUs. FREE Home Warranty and complete new alarm system included!! Peace of mind comes standard!! Conveniently located near schools, freeways, restaurants, shops. Records show 1,512 sq ft NO HOA!, you won’t find a better deal in San Diego! Act Fast – This Gem Won’t Last!

Essential Information

  • MLS® #PTP2509019
  • Price$799,000
  • Bedrooms3
  • Bathrooms2.00
  • Full Baths2
  • Square Footage1,650
  • Acres0.25
  • Year Built1954
  • TypeResidential
  • Sub-TypeSingle Family Residence
  • StyleContemporary
  • StatusActive

Community Information

  • Address323 S 65th Street
  • Area92114 - Encanto
  • CityEncanto
  • CountySan Diego
  • Zip Code92114

Amenities

  • Parking Spaces5
  • # of Garages1
  • PoolNone

Utilities

Cable Available, Electricity Available, Electricity Connected, Natural Gas Available, See Remarks

Parking

Concrete, Direct Access, Door-Single, Driveway, Garage Faces Front, Garage, Garage Door Opener, On Site, Off Street, On Street, Gravel, See Remarks

Garages

Concrete, Direct Access, Door-Single, Driveway, Garage Faces Front, Garage, Garage Door Opener, On Site, Off Street, On Street, Gravel, See Remarks

View

City Lights, Canyon, Hills, Mountain(s)

Interior

  • InteriorTile, Vinyl, See Remarks
  • FireplaceYes
  • FireplacesFamily Room, Electric
  • # of Stories1
  • StoriesOne

Interior Features

Bedroom on Main Level, Main Level Primary

Appliances

Dishwasher, Gas Cooktop, Disposal, Gas Oven, Gas Range, Gas Water Heater, Microwave, Refrigerator, Gas Cooking, Ice Maker, Tankless Water Heater

Heating

Electric, Fireplace(s), Wall Furnace, ENERGY STAR Qualified Equipment, High Efficiency, Humidity Control, See Remarks

Cooling

Electric, ENERGY STAR Qualified Equipment, High Efficiency, Humidity Control, See Remarks

Exterior

  • ExteriorDrywall, Stucco, See Remarks
  • RoofShingle
  • ConstructionDrywall, Stucco, See Remarks
  • FoundationRaised

Lot Description

Back Yard, Front Yard, Yard, Value In Land

School Information

  • DistrictSan Diego Unified
  • ElementaryFulton K-8
  • HighMorse

Additional Information

  • Date ListedDecember 4th, 2025
  • Days on Market17
  • ZoningR-1 Single Family

Listing Details

  • AgentNissim Sasson
  • OfficeCasas Advisors
Please provide a valid email address.

Nissim Sasson, Casas Advisors.

Based on information from California Regional Multiple Listing Service, Inc. as of December 23rd, 2025 at 6:56am PST. This information is for your personal, non-commercial use and may not be used for any purpose other than to identify prospective properties you may be interested in purchasing. Display of MLS data is usually deemed reliable but is NOT guaranteed accurate by the MLS. Buyers are responsible for verifying the accuracy of all information and should investigate the data themselves or retain appropriate professionals. Information from sources other than the Listing Agent may have been included in the MLS data. Unless otherwise specified in writing, Broker/Agent has not and will not verify any information obtained from other sources. The Broker/Agent providing the information contained herein may or may not have been the Listing and/or Selling Agent.