Connect

Find us on...

Dashboard

Login using...

Shawn Bengtson

Office Broker - DRE 01236964

  • Office 760-805-7199
Questions?

301 W G St # 119, San Diego – $975,000

  • 2 Beds
  • 3 Baths
  • 1,922 Sqft
  • 1.36 Acres
  • 2 Beds
  • 3 Baths
  • 1,922 Sqft
  • 1.36 Acres

301 W G St # 119

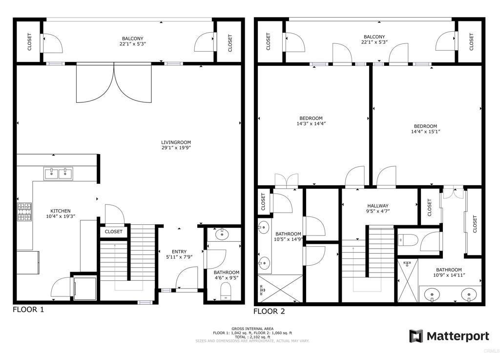
New Price! EXPANSIVE 2-bedroom, 2.5-bath townhome in the heart of the Marina District at City Walk! Offering 1,922 sq. ft., this residence features one of the LARGEST floor plans in the community and surrounding area. Feels like a single family home! Interior highlights include wide-plank birch distressed wood floors, crown molding, high ceilings, and arched doorways. The upgraded kitchen features granite countertops, stainless steel appliances, a breakfast bar, wine chiller, and brick accent wall/backsplash. The main living and dining area opens to a balcony fitted with newly installed French screens and pleasant neighborhood outlooks. The second level features two spacious primary suites, each with its own private balcony. Bathrooms include granite counters, dual sinks, and mosaic tile flooring. Additional features include fresh interior paint, elegant Italian Thassos and Carrara marble accents, two side-by-side parking spaces, and four deep, locked storage closets on the balconies. Located steps from the marina, newly developed RaDD, restaurants, shops, Petco Park, Seaport Village, Little Italy, and only one block from the dog park. Community amenities include two formal building entrances, three landscaped atriums with seating and firepits, a gym, bike storage, weekday on-site management, and VA approval.

Essential Information

  • MLS® #PTP2600777
  • Price$975,000
  • Bedrooms2
  • Bathrooms3.00
  • Full Baths2
  • Half Baths1
  • Square Footage1,922
  • Acres1.36
  • Year Built2004
  • TypeResidential
  • Sub-TypeCondominium
  • StatusActive

Community Information

  • Address301 W G St # 119
  • Area92101 - San Diego Downtown
  • CitySan Diego
  • CountySan Diego
  • Zip Code92101

Amenities

  • Parking Spaces2
  • ParkingAssigned, Community Structure
  • # of Garages2
  • GaragesAssigned, Community Structure
  • ViewNeighborhood
  • PoolNone

Amenities

Fitness Center, Fire Pit, Maintenance Grounds, Barbecue, Pets Allowed, Trash

Interior

  • Interior FeaturesAll Bedrooms Up
  • HeatingCentral
  • CoolingCentral Air
  • FireplacesNone
  • # of Stories2
  • StoriesTwo

School Information

  • DistrictSan Diego Unified

Additional Information

  • Date ListedJanuary 30th, 2026
  • Days on Market53
  • ZoningR-1:Single Fam-Res
  • HOA Fees915
  • HOA Fees Freq.Monthly

Listing Details

  • AgentAssaf Avissar
  • OfficeColdwell Banker West
Please provide a valid email address.

Assaf Avissar, Coldwell Banker West.

Based on information from California Regional Multiple Listing Service, Inc. as of March 26th, 2026 at 4:16pm PDT. This information is for your personal, non-commercial use and may not be used for any purpose other than to identify prospective properties you may be interested in purchasing. Display of MLS data is usually deemed reliable but is NOT guaranteed accurate by the MLS. Buyers are responsible for verifying the accuracy of all information and should investigate the data themselves or retain appropriate professionals. Information from sources other than the Listing Agent may have been included in the MLS data. Unless otherwise specified in writing, Broker/Agent has not and will not verify any information obtained from other sources. The Broker/Agent providing the information contained herein may or may not have been the Listing and/or Selling Agent.