Connect

Find us on...

Dashboard

Login using...

Shawn Bengtson

Office Broker - DRE 01236964

  • Office 760-805-7199
Questions?

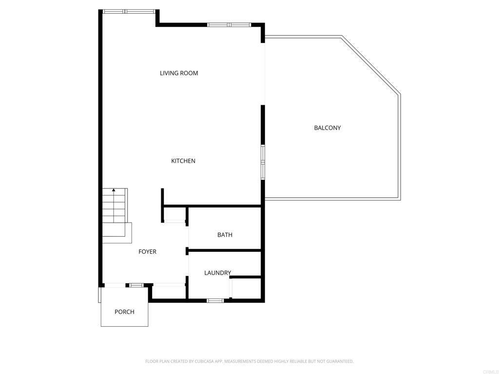
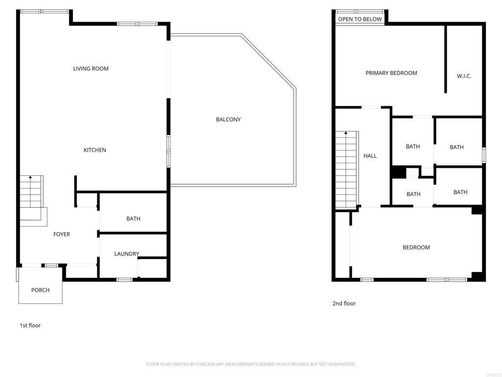
3980 9th Avenue # 404, San Diego – $990,000

  • 2 Beds
  • 3 Baths
  • 1,567 Sqft
  • .24 Acres
  • 2 Beds
  • 3 Baths
  • 1,567 Sqft
  • .24 Acres

3980 9th Avenue # 404

Welcome to Monde Unit 404, a top-floor, two-story townhouse-style condo in the heart of Hillcrest offering style, space, and an exceptional indoor-outdoor lifestyle. This unique residence features dual primary suites and an open-concept living area filled with abundant natural light, along with an expansive private balcony—an ideal outdoor retreat for dining, relaxing, or entertaining. The upgraded kitchen is outfitted with high-end appliances, sleek cabinetry, and modern finishes, making it perfectly suited for both everyday living and hosting guests.  Additional highlights include stylish luxury vinyl plank flooring on the main level, motorized blinds, fresh interior paint, added storage cabinetry, and custom closet systems designed for optimal organization. A dedicated laundry room and two secured parking spaces add to the home’s everyday convenience. Ideally located in the vibrant heart of Hillcrest, residents enjoy close proximity to an array of popular restaurants, cafés, nightlife, and the weekly Hillcrest Farmers Market, along with everyday essentials including Trader Joe’s, Ralphs, and Whole Foods. The central location also provides quick access to major freeways including I-5, I-163, and I-8, allowing for easy connectivity to Downtown San Diego, Balboa Park, Mission Valley, the airport, and nearby beaches. This rare top-floor residence seamlessly blends contemporary comfort with one of San Diego’s most dynamic and walkable neighborhoods.

Essential Information

  • MLS® #PTP2601863
  • Price$990,000
  • Bedrooms2
  • Bathrooms3.00
  • Full Baths2
  • Half Baths1
  • Square Footage1,567
  • Acres0.24
  • Year Built2007
  • TypeResidential
  • Sub-TypeCondominium
  • StatusActive

Community Information

  • Address3980 9th Avenue # 404
  • Area92103 - Mission Hills
  • CitySan Diego
  • CountySan Diego
  • Zip Code92103

Amenities

  • Parking Spaces2
  • # of Garages2
  • ViewCity Lights, Neighborhood
  • PoolNone

Amenities

Controlled Access, Management, Water

Interior

  • Interior FeaturesAll Bedrooms Up
  • AppliancesDryer, Washer
  • CoolingCentral Air
  • FireplacesNone
  • # of Stories3
  • StoriesTwo

School Information

  • DistrictSan Diego Unified

Additional Information

  • Date ListedMarch 11th, 2026
  • Days on Market18
  • ZoningR-1:SINGLE FAM-RES
  • HOA Fees557
  • HOA Fees Freq.Monthly

Listing Details

  • AgentChristine Baker
  • OfficeWillis Allen Real Estate
Please provide a valid email address.

Christine Baker, Willis Allen Real Estate.

Based on information from California Regional Multiple Listing Service, Inc. as of March 29th, 2026 at 10:10am PDT. This information is for your personal, non-commercial use and may not be used for any purpose other than to identify prospective properties you may be interested in purchasing. Display of MLS data is usually deemed reliable but is NOT guaranteed accurate by the MLS. Buyers are responsible for verifying the accuracy of all information and should investigate the data themselves or retain appropriate professionals. Information from sources other than the Listing Agent may have been included in the MLS data. Unless otherwise specified in writing, Broker/Agent has not and will not verify any information obtained from other sources. The Broker/Agent providing the information contained herein may or may not have been the Listing and/or Selling Agent.