Connect

Find us on...

Dashboard

Login using...

Shawn Bengtson

Office Broker - DRE 01236964

  • Office 760-805-7199
Questions?

16660 Paramount Boulevard, Paramount – $5,800,000

  • $5.8M Price
  • 1.67 Acres
  • 156 DOM
  • $5.8M Price
  • 1.67 Acres
  • 156 DOM

16660 Paramount Boulevard

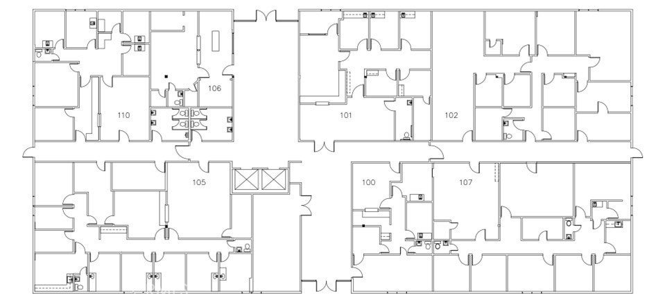
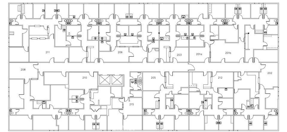
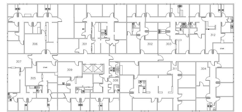
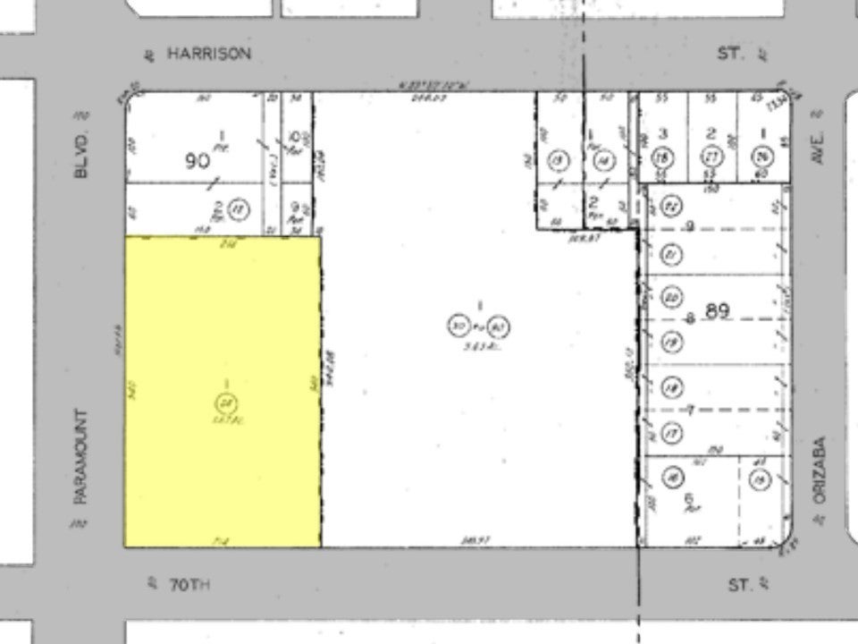
The subject property is a 3-story office building located at 16660 Paramount Blvd. in the city of Paramount, CA. The property is a ±45,900 SF off-campus medical office property situated on ±1.67 acres of land. The building was built in 1973 and is currently 100% occupied by a mix of medical and office-oriented tenants with a master lease in place with Kinder Healthcare until March of 2026. This property is located only a block to the south of Paramount City Hall on Paramount Blvd, and is part of the Central Business District Area 1. Paramount Blvd. is a busy north-south arterial with approximately 25,670 VPD (DOT 2017). The property is also only ½ mile north of the 91 Freeway providing great freeway access. The site is rectangular in shape with approximately 340’ of frontage along Paramount Blvd. and approximately 214’ of frontage along E. 70th Street. There are 107 parking spaces in a striped surface parking lot providing a parking ratio of 2.33 parking spaces per 1,000 SF. The roof type is flat built-up composition and it was recently replaced in December of 2020 (15-year warranty). Additionally, there are two elevators to serve this building. This property is located in an ideal location for any company serving the Los Angeles and Orange County market area and is priced competitively for either an owner/user, an investor, or a developer who would want to redevelop the site.

Essential Information

  • MLS® #PW25133167
  • Price$5,800,000
  • Bathrooms0.00
  • Acres1.67
  • Year Built1973
  • TypeCommercial Sale
  • Sub-TypeOffice
  • StatusActive

Community Information

  • Address16660 Paramount Boulevard
  • CityParamount
  • CountyLos Angeles
  • Zip Code90723

Area

RK - Paramount South of Somerset

Amenities

  • Parking Spaces107

Interior

  • # of Stories3

Exterior

  • RoofComposition, Flat

Lot Description

Corner Lot, Level, Near Public Transit, Paved, Rectangular Lot

Additional Information

  • Date ListedJune 12th, 2025
  • Days on Market156
  • ZoningC3

Listing Details

  • AgentMatthew Wenzel
  • OfficeMarcus & Millichap
Please provide a valid email address.

Matthew Wenzel, Marcus & Millichap.

Based on information from California Regional Multiple Listing Service, Inc. as of November 15th, 2025 at 11:26pm PST. This information is for your personal, non-commercial use and may not be used for any purpose other than to identify prospective properties you may be interested in purchasing. Display of MLS data is usually deemed reliable but is NOT guaranteed accurate by the MLS. Buyers are responsible for verifying the accuracy of all information and should investigate the data themselves or retain appropriate professionals. Information from sources other than the Listing Agent may have been included in the MLS data. Unless otherwise specified in writing, Broker/Agent has not and will not verify any information obtained from other sources. The Broker/Agent providing the information contained herein may or may not have been the Listing and/or Selling Agent.