Connect

Find us on...

Dashboard

Login using...

Shawn Bengtson

Office Broker - DRE 01236964

  • Office 760-805-7199
Questions?

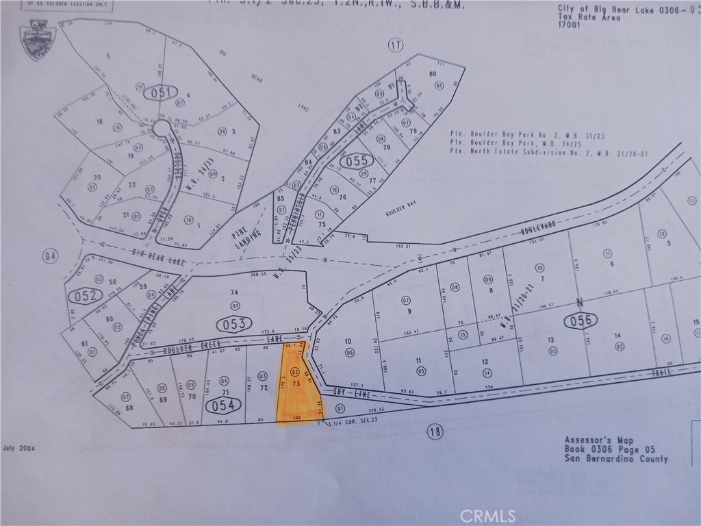
Ponca Lane, Big Bear Lake – $21,500

  • $21.5k Price
  • .28 Acres
  • 119 DOM
  • $21.5k Price
  • .28 Acres
  • 119 DOM

Ponca Lane

UNLIMITED POTENTIAL BEAUTIFUL STUNNING PICTURESQUE PARCEL IN DESIRABLE BOULDER BAY - BIG BEAR LAKE Surrounded by whispering pines, national forest, minutes to walk to the Boulder Bay, while also being able to hike in the national forest right from where you build your home. Stunning natural scenery, clean air and ancient boulders, Opportunity knocks in the heart of Big Bear Lake ~This vacant parcel offers the perfect setting for your custom-built mountain home, vacation cabin, or investment property~Surrounded by panoramic, tranquil and heavenly natural scenery~This lot is a peaceful retreat just minutes from all the excitement Big Bear has to offer~No address has been assigned to this property. We are currently accepting backup offers.

Essential Information

  • MLS® #PW25164758
  • Price$21,500
  • Bathrooms0.00
  • Acres0.28
  • TypeLand
  • StatusActive Under Contract

Community Information

  • AddressPonca Lane
  • Area289 - Big Bear Area
  • CityBig Bear Lake
  • CountySan Bernardino
  • Zip Code92315

Amenities

  • ViewMountain(s), Neighborhood

Exterior

  • Lot DescriptionZeroToOneUnitAcre

Additional Information

  • Date ListedJuly 22nd, 2025
  • Days on Market119
  • ZoningResidential

Listing Details

  • AgentMike Wochner
  • OfficeRe/Max Big Bear
Please provide a valid email address.

Price Change History for Ponca Lane, Big Bear Lake, (MLS® #PW25164758)

Date Details Change
Status Changed from Active to Active Under Contract
Price Reduced from $25,000 to $21,500 $3,500 (14.00%)
Price Increased from $20,000 to $25,000 $5,000 (25.00%)

Mike Wochner, Re/Max Big Bear.

Based on information from California Regional Multiple Listing Service, Inc. as of November 18th, 2025 at 4:40am PST. This information is for your personal, non-commercial use and may not be used for any purpose other than to identify prospective properties you may be interested in purchasing. Display of MLS data is usually deemed reliable but is NOT guaranteed accurate by the MLS. Buyers are responsible for verifying the accuracy of all information and should investigate the data themselves or retain appropriate professionals. Information from sources other than the Listing Agent may have been included in the MLS data. Unless otherwise specified in writing, Broker/Agent has not and will not verify any information obtained from other sources. The Broker/Agent providing the information contained herein may or may not have been the Listing and/or Selling Agent.