Connect

Find us on...

Dashboard

Login using...

Shawn Bengtson

Office Broker - DRE 01236964

  • Office 760-805-7199
Questions?

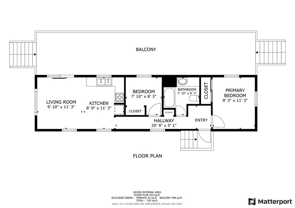
30 Welcome Lane, Seal Beach – $449,000

  • 2 Beds
  • 1 Bath
  • 576 Sqft
  • .03 Acres
  • 2 Beds
  • 1 Bath
  • 576 Sqft
  • .03 Acres

30 Welcome Lane

I wanted to give you a more detailed picture of the delightful two-bedroom, one-bathroom home nestled in the heart of Seal Beach Shores. This isn't just a house; it's a lifestyle; it's a lifestyle. Imagine yourself relaxing on the covered patio, enjoying the gentle ocean breeze - a perfect spot for morning coffee or evening barbecues. The convenience factor is undeniable. Inside, you'll find the practicality of indoor laundry, saving you time and effort. But the real magic lies just outside your door. You're practically steps away from the pristine sands of Seal Beach, a vibrant array of shops and boutiques, and a diverse culinary scene offering everything from casual cafes to upscale restaurants. Think of the ease of walking to dinner or a quick stroll on the beach to watch the sunset. This home is located within a well-maintained, resident-owned family park, creating a close-knit community atmosphere. The spacious lot includes a convenient storage shed, and there's plenty of room for gardening, perhaps even creating your own little beach themed oasis. The community clubhouse, equipped with a full kitchen and restrooms, provides an ideal setting for gatherings and socializing with your neighbors. This truly a rare find, offering a blend of comfort, convenience, and community in a coveted coastal location. I'm confident you'll appreciate the charm and potential this property holds. See the two 360 video tours -1 walk through home - 2 view community

Essential Information

  • MLS® #PW25197172
  • Price$449,000
  • Bedrooms2
  • Bathrooms1.00
  • Full Baths1
  • Square Footage576
  • Acres0.03
  • Year Built1977
  • TypeManufactured In Park
  • StatusActive Under Contract

Community Information

  • Address30 Welcome Lane
  • Area1A - Seal Beach
  • SubdivisionSeal Beach Shores
  • CitySeal Beach
  • CountyOrange
  • Zip Code90740

Amenities

  • Parking Spaces1
  • ParkingAssigned
  • GaragesAssigned
  • PoolNone

Amenities

Barbecue, Clubhouse, Fire Pit, Management, Pet Restrictions, Trash

Interior

  • InteriorCarpet, Laminate
  • HeatingForced Air
  • CoolingNone
  • # of Stories1
  • StoriesOne

Interior Features

Ceiling Fan(s), Storage, All Bedrooms Down

Exterior

  • Lot DescriptionZeroToOneUnitAcre

School Information

  • DistrictLos Alamitos Unified

Additional Information

  • Date ListedSeptember 2nd, 2025
  • Days on Market139
  • HOA Fees752.84
  • HOA Fees Freq.Monthly

Listing Details

  • AgentDorothy Mesner
  • OfficeTriple S Realty, Inc
Please provide a valid email address.

Price Change History for 30 Welcome Lane, Seal Beach, (MLS® #PW25197172)

Date Details Change
Status Changed from Active to Active Under Contract
Price Reduced from $459,000 to $449,000 $10,000 (2.18%)

Dorothy Mesner, Triple S Realty, Inc.

Based on information from California Regional Multiple Listing Service, Inc. as of January 19th, 2026 at 12:55am PST. This information is for your personal, non-commercial use and may not be used for any purpose other than to identify prospective properties you may be interested in purchasing. Display of MLS data is usually deemed reliable but is NOT guaranteed accurate by the MLS. Buyers are responsible for verifying the accuracy of all information and should investigate the data themselves or retain appropriate professionals. Information from sources other than the Listing Agent may have been included in the MLS data. Unless otherwise specified in writing, Broker/Agent has not and will not verify any information obtained from other sources. The Broker/Agent providing the information contained herein may or may not have been the Listing and/or Selling Agent.