Connect

Find us on...

Dashboard

Login using...

Shawn Bengtson

Office Broker - DRE 01236964

  • Office 760-805-7199
Questions?

151 Kalmus Drive # K3, Costa Mesa – $2,600,000

  • $2.6M Price
  • .12 Acres
  • 55 DOM
  • $2.6M Price
  • .12 Acres
  • 55 DOM

151 Kalmus Drive # K3

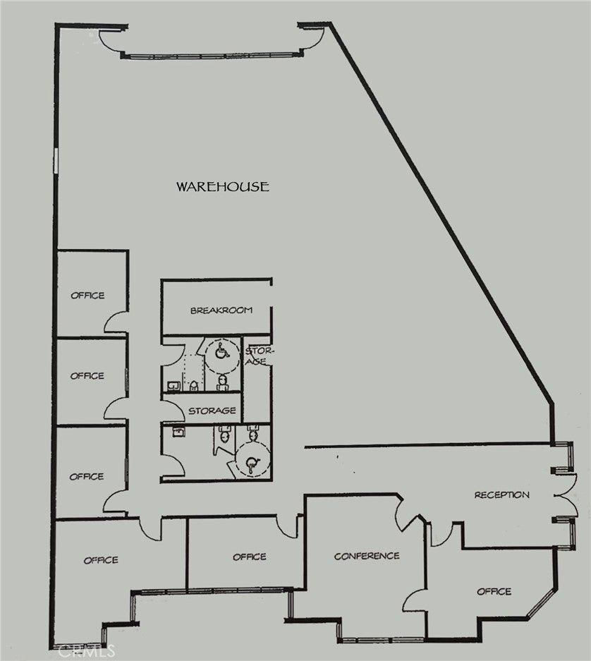
Excellent opportunity for business owners and investors alike. Versatile office/warehouse property currently operating as a wellness center. Thoughtfully built-out with six private offices, a conference room, two bathrooms, kitchen, laundry area, plus a bonus space offering flexibility for a variety of needs. The combination of office build-out and warehouse space makes this property ideal for professional services, medical/wellness, creative uses, or a wide range of other business operations. Ample functionality, adaptable layout, and excellent potential for owner-users or investors looking for a property that can support multiple business models. Recent updates includes all new paint and flooring, brand new HVAC, and build out a loft office not included in the square footage.

Essential Information

  • MLS® #PW25199930
  • Price$2,600,000
  • Bathrooms0.00
  • Acres0.12
  • Year Built1981
  • TypeCommercial Sale
  • Sub-TypeOffice
  • StatusActive Under Contract

Community Information

  • Address151 Kalmus Drive # K3
  • Area699 - Not Defined
  • CityCosta Mesa
  • CountyOrange
  • Zip Code92626

Interior

  • # of Stories1

Exterior

  • Lot DescriptionSixToTenUnitsAcre

Additional Information

  • Date ListedSeptember 5th, 2025
  • Days on Market55

Listing Details

  • AgentMatthew Hoyt
  • OfficeHoyt Real Estate, Inc.
Please provide a valid email address.

Price Change History for 151 Kalmus Drive # K3, Costa Mesa, (MLS® #PW25199930)

Date Details Change
Status Changed from Active to Active Under Contract
Price Reduced from $2,700,000 to $2,600,000 $100,000 (3.70%)
Price Reduced from $2,800,000 to $2,700,000 $100,000 (3.57%)

Matthew Hoyt, Hoyt Real Estate, Inc..

Based on information from California Regional Multiple Listing Service, Inc. as of November 11th, 2025 at 12:41am PST. This information is for your personal, non-commercial use and may not be used for any purpose other than to identify prospective properties you may be interested in purchasing. Display of MLS data is usually deemed reliable but is NOT guaranteed accurate by the MLS. Buyers are responsible for verifying the accuracy of all information and should investigate the data themselves or retain appropriate professionals. Information from sources other than the Listing Agent may have been included in the MLS data. Unless otherwise specified in writing, Broker/Agent has not and will not verify any information obtained from other sources. The Broker/Agent providing the information contained herein may or may not have been the Listing and/or Selling Agent.