Connect

Find us on...

Dashboard

Login using...

Shawn Bengtson

Office Broker - DRE 01236964

  • Office 760-805-7199
Questions?

23517 S Main Street # 103, Carson – $2,090

  • $2.1k Price
  • .97 Acres
  • 44 DOM
  • $2.1k Price
  • .97 Acres
  • 44 DOM

23517 S Main Street # 103

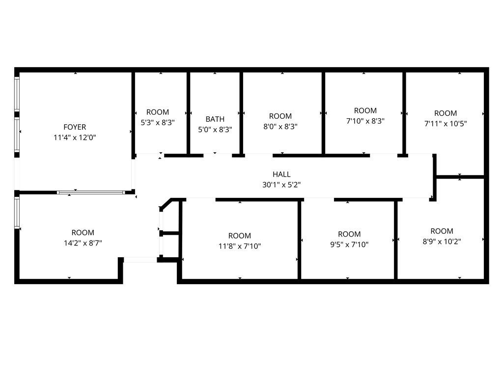
Move-in ready office space—ideal for medical, dental, law, accounting, tax, or other professional uses. This suite features six private rooms built out for medical use, each with a hand-wash sink, plus a reception/front desk area, laminate flooring, and central A/C and heating. Ample parking available for staff and clients. A must-see to appreciate!

Essential Information

  • MLS® #PW25259751
  • Price$2,090
  • Bathrooms0.00
  • Acres0.97
  • TypeCommercial Lease
  • Sub-TypeOffice
  • StatusActive

Community Information

  • Address23517 S Main Street # 103
  • Area699 - Not Defined
  • CityCarson
  • CountyLos Angeles
  • Zip Code90745

Amenities

  • UtilitiesSewer Connected

Interior

  • HeatingCentral, Forced Air
  • CoolingCentral Air
  • # of Stories1

Exterior

  • ExteriorStucco
  • Lot DescriptionLandscaped, Street Level
  • RoofFlat
  • ConstructionStucco

Additional Information

  • Date ListedNovember 13th, 2025
  • Days on Market44

Listing Details

  • AgentJimmy Thach
  • OfficeSeal Real Estate
Please provide a valid email address.

Price Change History for 23517 S Main Street # 103, Carson, (MLS® #PW25259751)

Date Details Change
Price Increased from $0 to $2,090 $2,090

Jimmy Thach, Seal Real Estate.

Based on information from California Regional Multiple Listing Service, Inc. as of December 27th, 2025 at 5:56pm PST. This information is for your personal, non-commercial use and may not be used for any purpose other than to identify prospective properties you may be interested in purchasing. Display of MLS data is usually deemed reliable but is NOT guaranteed accurate by the MLS. Buyers are responsible for verifying the accuracy of all information and should investigate the data themselves or retain appropriate professionals. Information from sources other than the Listing Agent may have been included in the MLS data. Unless otherwise specified in writing, Broker/Agent has not and will not verify any information obtained from other sources. The Broker/Agent providing the information contained herein may or may not have been the Listing and/or Selling Agent.