Connect

Find us on...

Dashboard

Login using...

Shawn Bengtson

Office Broker - DRE 01236964

  • Office 760-805-7199
Questions?

868 S Calle Venado, Anaheim – $1,800,000

  • 5 Beds
  • 4 Baths
  • 3,454 Sqft
  • .14 Acres
  • 5 Beds
  • 4 Baths
  • 3,454 Sqft
  • .14 Acres

868 S Calle Venado

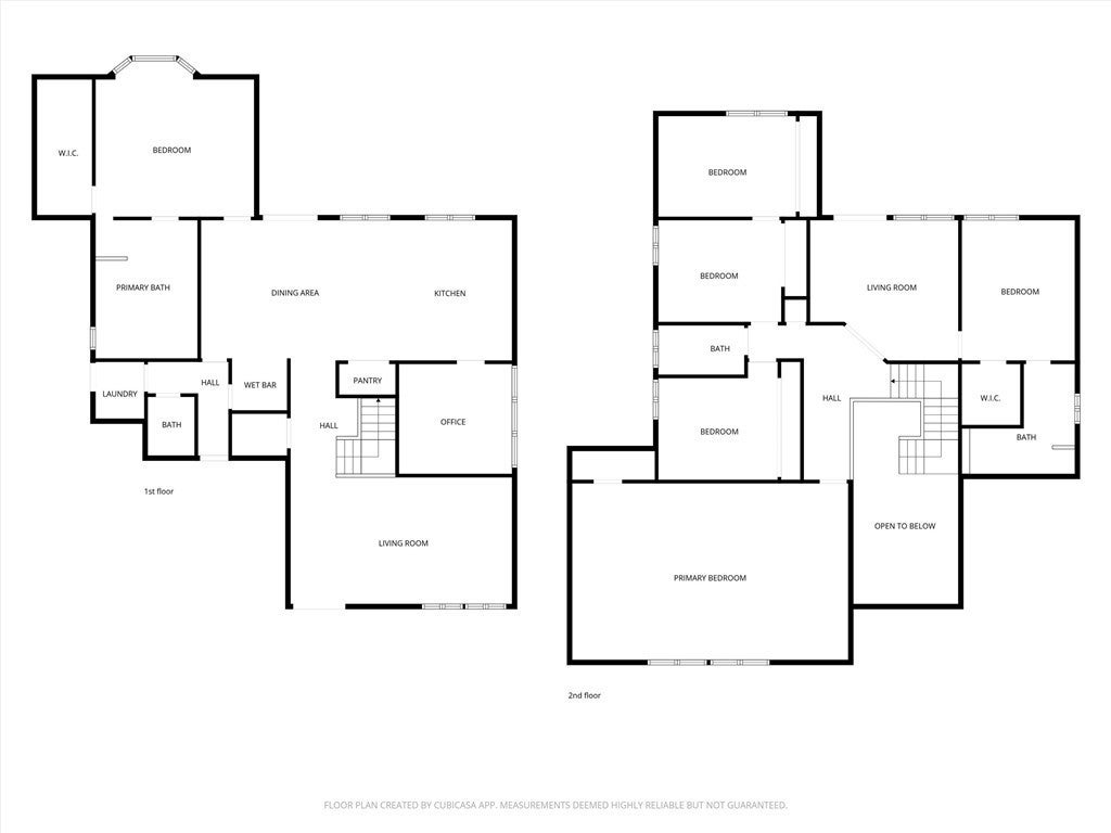
This expansive Anaheim Hills residence offers 4–5 bedrooms and 4 bathrooms, set in a quiet no-HOA enclave with no rear neighbors and breathtaking panoramic views of the canyon, mountains, and nature reserve. Enjoy peaceful sunrises, exceptional privacy, and a highly desirable hillside setting. Designed for entertaining and everyday comfort, the home features a large great room ideal for a home theater, two wet bars, seamless indoor-outdoor living, a wrap-around view deck, multiple patios, indoor and outdoor BBQ areas, and a private spa retreat. The flexible layout includes a permitted downstairs primary suite with beautiful views, a second primary bedroom upstairs, and two office spaces—perfect for multi-generational living or working from home. Bright living areas capture natural light and scenic outlooks throughout. Additional highlights include low-maintenance landscaping, automatic attic ventilation, extra storage shed, built-in garage cabinetry, newer roof, updated HVAC and water heater, water softener and filtration system, and direct access toward canyon trails. Layout note: Tax records reflect 4 bedrooms and 3 bathrooms; the home now offers 4 bathrooms by permit, with a potential 5th bedroom conversion without permits. Buyer to verify. A rare opportunity to own a private view home offering space, flexibility, and tranquil Anaheim Hills living.

Essential Information

  • MLS® #PW26029519
  • Price$1,800,000
  • Bedrooms5
  • Bathrooms4.00
  • Full Baths4
  • Square Footage3,454
  • Acres0.14
  • Year Built1975
  • TypeResidential
  • Sub-TypeSingle Family Residence
  • StatusActive

Community Information

  • Address868 S Calle Venado
  • Area77 - Anaheim Hills
  • SubdivisionOak Creek Canyon Estates
  • CityAnaheim
  • CountyOrange
  • Zip Code92807

Amenities

  • Parking Spaces3
  • ParkingDirect Access, Garage
  • # of Garages3
  • GaragesDirect Access, Garage
  • ViewCanyon
  • PoolNone

Interior

  • CoolingCentral Air
  • FireplacesNone
  • # of Stories2
  • StoriesTwo

Interior Features

High Ceilings, Main Level Primary, Primary Suite, Walk-In Closet(s), Two Story Ceilings

Appliances

Built-In Range, Dishwasher, Microwave, Refrigerator

Exterior

  • Lot DescriptionLandscaped, Bluff, Greenbelt

School Information

  • DistrictOrange Unified

Additional Information

  • Date ListedFebruary 9th, 2026
  • Days on Market12

Listing Details

  • AgentRyan Banderas
  • OfficeRyan Banderas, Broker
Please provide a valid email address.

Ryan Banderas, Ryan Banderas, Broker.

Based on information from California Regional Multiple Listing Service, Inc. as of February 21st, 2026 at 8:30pm PST. This information is for your personal, non-commercial use and may not be used for any purpose other than to identify prospective properties you may be interested in purchasing. Display of MLS data is usually deemed reliable but is NOT guaranteed accurate by the MLS. Buyers are responsible for verifying the accuracy of all information and should investigate the data themselves or retain appropriate professionals. Information from sources other than the Listing Agent may have been included in the MLS data. Unless otherwise specified in writing, Broker/Agent has not and will not verify any information obtained from other sources. The Broker/Agent providing the information contained herein may or may not have been the Listing and/or Selling Agent.