Connect

Find us on...

Dashboard

Login using...

Shawn Bengtson

Office Broker - DRE 01236964

  • Office 760-805-7199
Questions?

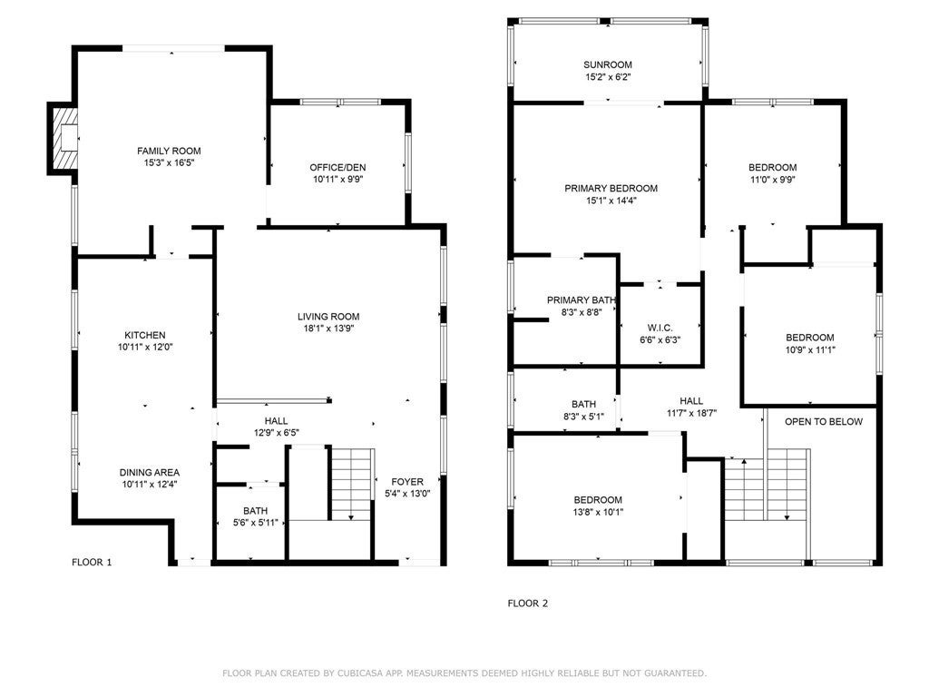
5048 W 121st Street, Hawthorne – $1,325,000

  • 4 Beds
  • 3 Baths
  • 2,754 Sqft
  • .1 Acres
  • 4 Beds
  • 3 Baths
  • 2,754 Sqft
  • .1 Acres

5048 W 121st Street

PRICE IMPROVEMENT!!! Nestled in the highly desirable Del Aire neighborhood, this stunning two-story home offers an impressive 2,754 sq. ft. of living space with 4 bedrooms and 3 bathrooms. Designed for comfort and versatility, the home features a spacious living room, an office/den with its own private entry, a modern kitchen with an adjoining breakfast/dining nook, and a cozy family room complete with a fireplace, wet bar, and sliding doors that open to a covered patio and peaceful private yard. Upstairs, the expansive primary suite includes a walk-in closet and an enclosed balcony, while the additional bedrooms provide generous space for family, guests, or flexible use. An attached two-car garage adds everyday convenience. Perfectly positioned near the 405, this home offers exceptional accessibility for commuters—providing quick routes to the South Bay, Silicon Beach, LAX, and beyond. Many residents appreciate the ease of getting anywhere in minutes, a rare advantage in Los Angeles living. Located in a quiet pocket of Hawthorne within the esteemed WISEBURN SCHOOL DISTRICT, this property blends comfort, convenience, and value. It’s an incredible opportunity to own a beautiful home in a sought-after neighborhood.

Essential Information

  • MLS® #SB25091437
  • Price$1,325,000
  • Bedrooms4
  • Bathrooms3.00
  • Full Baths2
  • Half Baths1
  • Square Footage2,754
  • Acres0.10
  • Year Built1990
  • TypeResidential
  • Sub-TypeSingle Family Residence
  • StatusActive

Community Information

  • Address5048 W 121st Street
  • Area107 - Holly Glen/Del Aire
  • CityHawthorne
  • CountyLos Angeles
  • Zip Code90250

Amenities

  • Parking Spaces2
  • ParkingDirect Access, Garage
  • # of Garages2
  • GaragesDirect Access, Garage
  • ViewNeighborhood
  • PoolNone

Utilities

Electricity Connected, Natural Gas Connected, Sewer Connected, Water Connected

Interior

  • InteriorWood, Vinyl
  • HeatingForced Air
  • CoolingNone
  • FireplaceYes
  • FireplacesFamily Room
  • # of Stories2
  • StoriesTwo

Interior Features

Primary Suite, All Bedrooms Up, Wet Bar

Exterior

Lot Description

Back Yard, Corner Lot, Front Yard

School Information

  • DistrictWiseburn Unified

Additional Information

  • Date ListedApril 24th, 2025
  • Days on Market343
  • ZoningLCR1*

Listing Details

  • AgentYanina Venegas
  • OfficeCentury 21 Coastal Properties
Please provide a valid email address.

Price Change History for 5048 W 121st Street, Hawthorne, (MLS® #SB25091437)

Date Details Change
Price Reduced from $1,350,000 to $1,325,000 $25,000 (1.85%)
Price Reduced from $1,399,000 to $1,350,000 $49,000 (3.50%)
Price Reduced from $1,455,000 to $1,399,000 $56,000 (3.85%)
Price Reduced from $1,599,000 to $1,455,000 $144,000 (9.01%)

Yanina Venegas, Century 21 Coastal Properties.

Based on information from California Regional Multiple Listing Service, Inc. as of April 15th, 2026 at 9:14am PDT. This information is for your personal, non-commercial use and may not be used for any purpose other than to identify prospective properties you may be interested in purchasing. Display of MLS data is usually deemed reliable but is NOT guaranteed accurate by the MLS. Buyers are responsible for verifying the accuracy of all information and should investigate the data themselves or retain appropriate professionals. Information from sources other than the Listing Agent may have been included in the MLS data. Unless otherwise specified in writing, Broker/Agent has not and will not verify any information obtained from other sources. The Broker/Agent providing the information contained herein may or may not have been the Listing and/or Selling Agent.