Connect

Find us on...

Dashboard

Login using...

Shawn Bengtson

Office Broker - DRE 01236964

  • Office 760-805-7199
Questions?

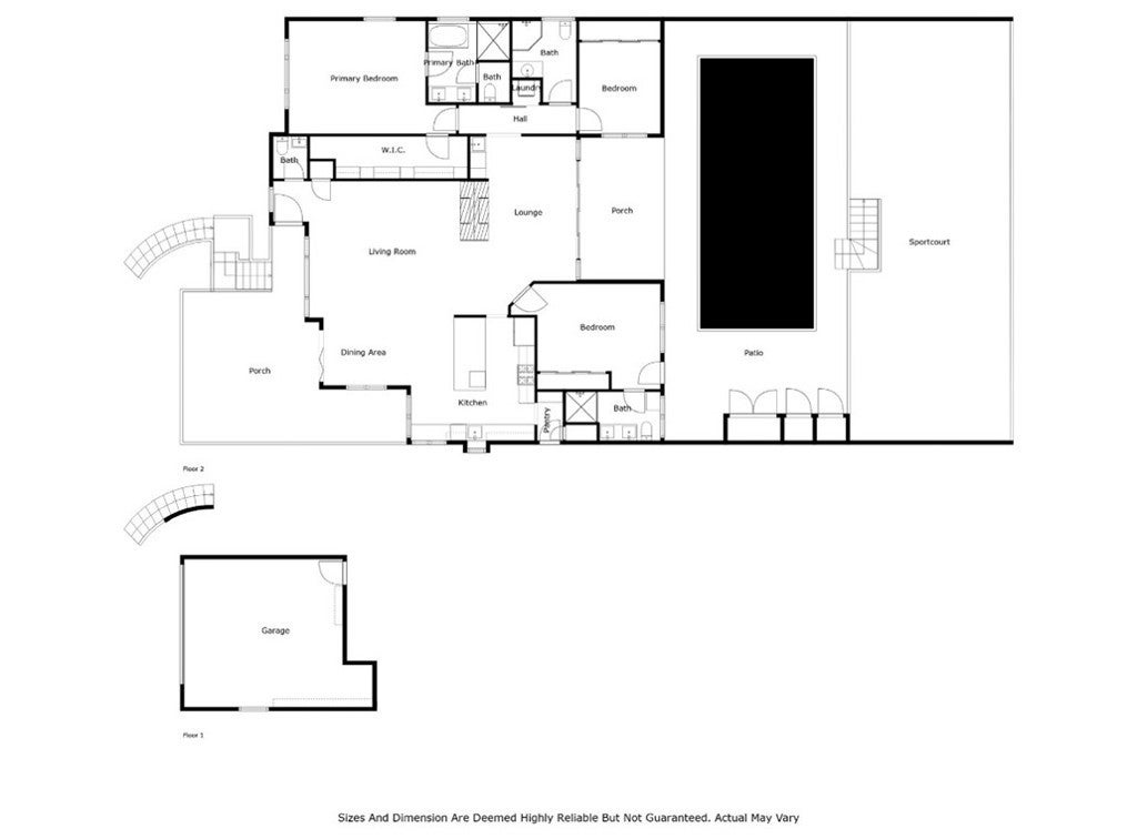
320 Calle Mayor, Redondo Beach – $2,800,000

  • 3 Beds
  • 4 Baths
  • 2,074 Sqft
  • .18 Acres
  • 3 Beds
  • 4 Baths
  • 2,074 Sqft
  • .18 Acres

320 Calle Mayor

Welcome to 320 Calle Mayor, the pinnacle of Californian living. Sitting fetchingly atop the view side of the Hollywood Riviera, this single level home will marvel and delight. Dazzling design is reimagined into a seamless, flowing ethereal space. Large format tiles bring a cool crisp hip and casual elegant vibe throughout the home. The interior nucleus integrates almost seamlessly with the outside. Sparking pool water visible from the interior via the large sliding glass doors. Filled with splendid custom finishes like vegan leather pulls, soft touch cabinets, walk in pantry with large pull out storage cabinets. There is balance everywhere the eye falls. You will want to linger and take in the commodious space. All the senses are engaged and rewarded - touch, visual, sensory. The breeze makes its gentle entrance from outside the cantina doors leading to the sunset ocean view veranda. The Queens Necklace view Pickle Ball sports court (almost official dimensions), hoops, volleyball - you name it it’s an overall cool spot for any activity. The fully automated blinds throughout the home are not the only intelligent features of this unique property. So are all 3.5 baths equipped with bidet toilets; ie, smart toilets. A simple tap of the foot from raising the seat, to flushing its modern luxury technology. This unique and timeless beauty boasts a Brand New Roof with a 50 year warranty, new ABS plumbing, Tankless water heater, 220 in the garage ready for your electric car. Move in ready!

Essential Information

  • MLS® #SB25140169
  • Price$2,800,000
  • Bedrooms3
  • Bathrooms4.00
  • Full Baths2
  • Half Baths1
  • Square Footage2,074
  • Acres0.18
  • Year Built1952
  • TypeResidential
  • Sub-TypeSingle Family Residence
  • StatusActive

Community Information

  • Address320 Calle Mayor
  • Area128 - Hollywood Riviera
  • CityRedondo Beach
  • CountyLos Angeles
  • Zip Code90277

Amenities

  • Parking Spaces4
  • # of Garages2
  • Has PoolYes

Utilities

Electricity Connected, Sewer Connected, Water Connected

Parking

Garage Faces Front, Garage, Garage Door Opener, Driveway, Private, Storage

Garages

Garage Faces Front, Garage, Garage Door Opener, Driveway, Private, Storage

View

City Lights, Coastline, Hills, Mountain(s), Neighborhood, Ocean, Pool

Pool

Gas Heat, Heated, In Ground, Private

Interior

  • InteriorTile
  • HeatingHeat Pump
  • CoolingHeat Pump
  • FireplaceYes
  • FireplacesSee Remarks, See Through
  • # of Stories2
  • StoriesOne

Interior Features

Breakfast Bar, Open Floorplan, Pantry, Quartz Counters, Recessed Lighting, Storage, All Bedrooms Down, Bar, Bedroom on Main Level, Eat-in Kitchen, Living Room Deck Attached, Main Level Primary, Multiple Primary Suites, Primary Suite, Separate/Formal Dining Room, Walk-In Closet(s), Walk-In Pantry, Wet Bar

Appliances

SixBurnerStove, Dishwasher, Gas Cooktop, Disposal, Gas Range, Microwave, Range Hood, Tankless Water Heater, Vented Exhaust Fan, Gas Oven, Ice Maker, Refrigerator, Self Cleaning Oven, Water To Refrigerator

Exterior

  • RoofSee Remarks

Exterior Features

Rain Gutters, Lighting, Sport Court

Lot Description

Drip Irrigation/Bubblers, Front Yard, Landscaped, Sprinklers In Front, Sprinklers Timer, Sprinkler System

Windows

Double Pane Windows, Blinds, Custom Covering(s), Insulated Windows, Screens, Skylight(s)

School Information

  • DistrictTorrance Unified

Additional Information

  • Date ListedJune 24th, 2025
  • Days on Market107
  • ZoningTORR-LO

Listing Details

  • AgentAlison Clay-duboff
  • OfficeEstate Properties
Please provide a valid email address.

Price Change History for 320 Calle Mayor, Redondo Beach, (MLS® #SB25140169)

Date Details Change
Price Reduced from $2,890,000 to $2,800,000 $90,000 (3.11%)
Price Reduced from $2,944,000 to $2,890,000 $54,000 (1.83%)
Price Increased from $2,899,000 to $2,944,000 $45,000 (1.55%)
Status Changed from Active Under Contract to Active
Status Changed from Active to Active Under Contract
Show More (4)

Alison Clay-duboff, Estate Properties.

Based on information from California Regional Multiple Listing Service, Inc. as of January 30th, 2026 at 9:57am PST. This information is for your personal, non-commercial use and may not be used for any purpose other than to identify prospective properties you may be interested in purchasing. Display of MLS data is usually deemed reliable but is NOT guaranteed accurate by the MLS. Buyers are responsible for verifying the accuracy of all information and should investigate the data themselves or retain appropriate professionals. Information from sources other than the Listing Agent may have been included in the MLS data. Unless otherwise specified in writing, Broker/Agent has not and will not verify any information obtained from other sources. The Broker/Agent providing the information contained herein may or may not have been the Listing and/or Selling Agent.