Connect

Find us on...

Dashboard

Login using...

Shawn Bengtson

Office Broker - DRE 01236964

  • Office 760-805-7199
Questions?

125 E 68th Way, Long Beach – $589,000

  • 1 Bed
  • 1 Bath
  • 558 Sqft
  • .07 Acres
  • 1 Bed
  • 1 Bath
  • 558 Sqft
  • .07 Acres

125 E 68th Way

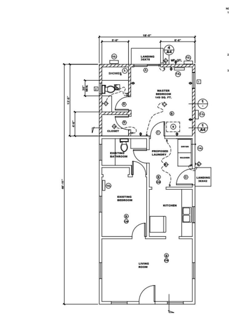
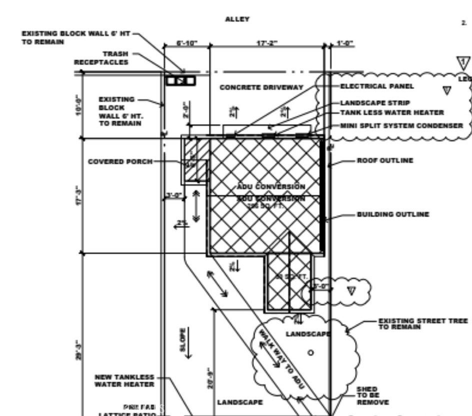
Welcome to 125 E 68th Way, a charming and cozy 1-bedroom, 1-bath home featuring a bonus room that is ideal for a second bedroom, home office, or den. This home is perfect as a starter home or an investment property, combining functionality with great potential. A two-car detached garage is located at the rear of the property with convenient alley access, offering an exciting opportunity for conversion into an Accessory Dwelling Unit (ADU) to add long-term value. ADU plans and permitted additions for a master suite are included with the sale. Please call / Text for details.

Essential Information

  • MLS® #SB25203252
  • Price$589,000
  • Bedrooms1
  • Bathrooms1.00
  • Full Baths1
  • Square Footage558
  • Acres0.07
  • Year Built1924
  • TypeResidential
  • Sub-TypeSingle Family Residence
  • StatusActive

Community Information

  • Address125 E 68th Way
  • Area7 - North Long Beach
  • CityLong Beach
  • CountyLos Angeles
  • Zip Code90805

Amenities

  • Parking Spaces2
  • # of Garages2
  • ViewNeighborhood
  • PoolNone

Interior

  • CoolingNone
  • FireplacesNone
  • # of Stories1
  • StoriesOne

Exterior

  • Lot DescriptionZeroToOneUnitAcre, Back Yard

School Information

  • DistrictLong Beach Unified

Additional Information

  • Date ListedSeptember 12th, 2025
  • Days on Market79
  • ZoningLBR1N

Listing Details

  • AgentJohnny Chacon
  • OfficeBuckingham Investments, Inc
Please provide a valid email address.

Price Change History for 125 E 68th Way, Long Beach, (MLS® #SB25203252)

Date Details Change
Price Reduced from $595,000 to $589,000 $6,000 (1.01%)
Price Increased from $555,000 to $595,000 $40,000 (7.21%)

Johnny Chacon, Buckingham Investments, Inc.

Based on information from California Regional Multiple Listing Service, Inc. as of December 21st, 2025 at 11:56am PST. This information is for your personal, non-commercial use and may not be used for any purpose other than to identify prospective properties you may be interested in purchasing. Display of MLS data is usually deemed reliable but is NOT guaranteed accurate by the MLS. Buyers are responsible for verifying the accuracy of all information and should investigate the data themselves or retain appropriate professionals. Information from sources other than the Listing Agent may have been included in the MLS data. Unless otherwise specified in writing, Broker/Agent has not and will not verify any information obtained from other sources. The Broker/Agent providing the information contained herein may or may not have been the Listing and/or Selling Agent.