Connect

Find us on...

Dashboard

Login using...

Shawn Bengtson

Office Broker - DRE 01236964

  • Office 760-805-7199
Questions?

121 E 223rd Street # 3, Carson – $779,000

  • 3 Beds
  • 4 Baths
  • 1,712 Sqft
  • 96 DOM
  • 3 Beds
  • 4 Baths
  • 1,712 Sqft
  • 96 DOM

121 E 223rd Street # 3

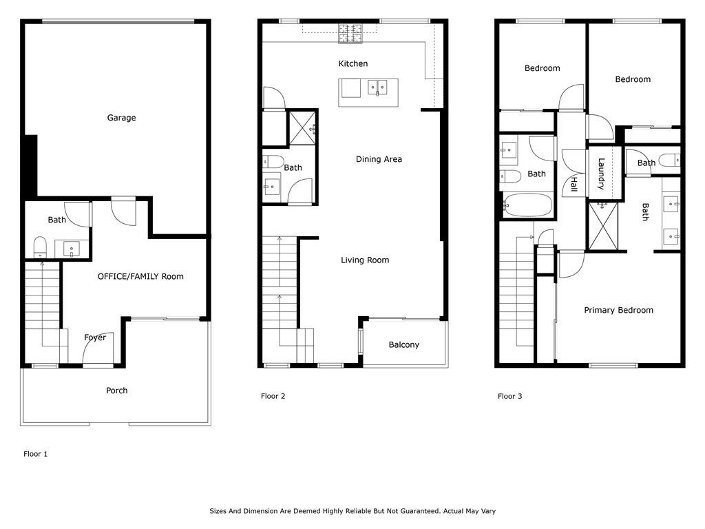
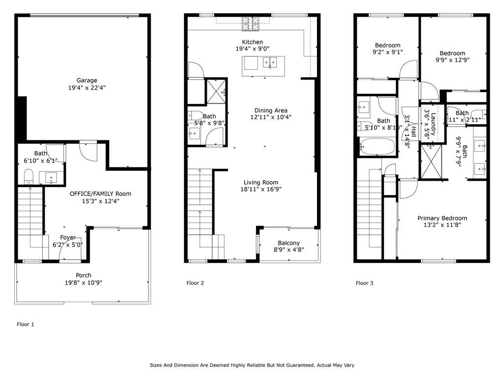
KM Townhomes are turning heads again with a powerful combination of value, quality, and location. With five of the nine homes already sold, the final collection is INCREDIBLE NEW PRICING, PLUS LIMITED-TIME BUYER INCENTIVES THAT MAKE THESE HOMES MORE ATTAINABLE THAN EVER. Crafted by a well-respected local builder known for excellence and attention to detail, each 1,712-square-foot residence features three spacious bedrooms, three-and-a-half bathrooms, a versatile additional room that can function as a fourth bedroom, home office, gym, or media room, and a private two-car garage. Thoughtful design meets modern living with professional-grade kitchens outfitted with 36" ranges, stainless steel appliances, sleek cabinetry, in-unit washer and dryer hookups, designer-selected finishes, and central air conditioning throughout. Each unit also includes a private patio for outdoor enjoyment and direct access to off-street guest parking, all within a secure setting enhanced by gated pedestrian entry for added safety and peace of mind. Every home is also equipped with high-efficiency solar panels, offering long-term utility savings and a commitment to sustainable living. Ideally situated near major freeways, shopping, dining, and highly regarded schools, KM Townhomes deliver the best of both convenience and community. Whether you're a first-time buyer, investor, or simply looking for a low-maintenance lifestyle in a well-connected location, these homes check every box. With limited inventory remaining and new pricing that won’t last, now is the time to make your move. Reach out to schedule your private tour and ask about current incentives — these final homes are ready to go.

Essential Information

  • MLS® #SB25215735
  • Price$779,000
  • Bedrooms3
  • Bathrooms4.00
  • Full Baths3
  • Half Baths1
  • Square Footage1,712
  • Acres0.00
  • Year Built2024
  • TypeResidential
  • Sub-TypeTownhouse
  • StyleContemporary, Traditional
  • StatusActive

Community Information

  • Address121 E 223rd Street # 3
  • Area136 - Central Carson
  • CityCarson
  • CountyLos Angeles
  • Zip Code90745

Amenities

  • AmenitiesOther
  • Parking Spaces2
  • # of Garages2
  • ViewMountain(s)
  • PoolNone

Interior

  • CoolingCentral Air
  • FireplacesNone
  • # of Stories3
  • StoriesThree Or More

Interior Features

Separate/Formal Dining Room, Eat-in Kitchen, All Bedrooms Up, Walk-In Closet(s)

School Information

  • DistrictLos Angeles Unified

Additional Information

  • Date ListedSeptember 12th, 2025
  • Days on Market96
  • HOA Fees380
  • HOA Fees Freq.Monthly

Listing Details

  • AgentSahmon Zoughi
  • OfficeCompass
Please provide a valid email address.

Sahmon Zoughi, Compass.

Based on information from California Regional Multiple Listing Service, Inc. as of December 19th, 2025 at 6:35am PST. This information is for your personal, non-commercial use and may not be used for any purpose other than to identify prospective properties you may be interested in purchasing. Display of MLS data is usually deemed reliable but is NOT guaranteed accurate by the MLS. Buyers are responsible for verifying the accuracy of all information and should investigate the data themselves or retain appropriate professionals. Information from sources other than the Listing Agent may have been included in the MLS data. Unless otherwise specified in writing, Broker/Agent has not and will not verify any information obtained from other sources. The Broker/Agent providing the information contained herein may or may not have been the Listing and/or Selling Agent.