Connect

Find us on...

Dashboard

Login using...

Shawn Bengtson

Office Broker - DRE 01236964

  • Office 760-805-7199
Questions?

1801 Long Beach, Long Beach – $5,000,000

  • $5M Price
  • .65 Acres
  • 71 DOM
  • $5M Price
  • .65 Acres
  • 71 DOM

1801 Long Beach

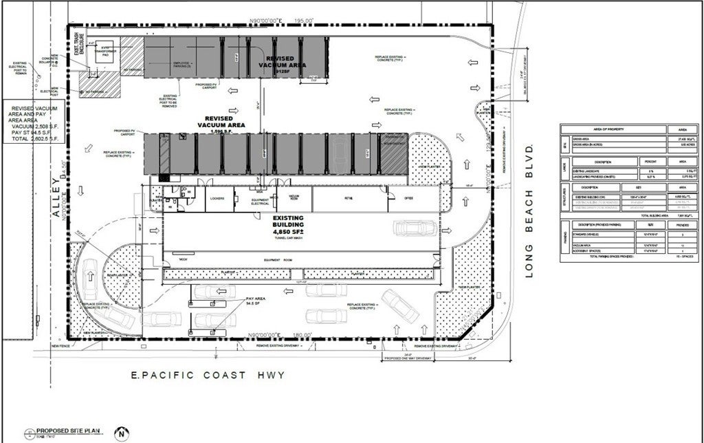
We are pleased to present this once in a lifetime opportunity to purchase an automated Car Wash portfolio. There are currently two Car Wash locations for sale individually or as a portfolio in Long Beach and Lynwood. Both properties are fully entitled with approved plans and permits to develop an express automated car wash. The properties can be sold as fee simple real estate with business and plans or will be sold as a NNN leaseback generating over a $25,000/month for a passive buyer. General Terms of the NNN Leaseback would be a 20 year Absolute NNN Lease with 10% increases every 5 years and (2) 10 year option periods to extend the lease. There is also an option to purchase this property as a land development opportunity and build 100+ unit multi family project (buyer to verify with city). This Long Beach Car Wash will feature a proposed 4,850 sq ft automated carwash building on a 28,091 sq ft corner lot. There are a proposed 15 vacuum sites, and more parking and office space for employees as well. The strategic location adjacent to the the Metro Blue line stop on a major intersection of PCH & Long Beach provides endless options for investors, owners, and developers alike in an area massively poised for growth.

Essential Information

  • MLS® #SB26000865
  • Price$5,000,000
  • Bathrooms0.00
  • Acres0.65
  • Year Built1958
  • TypeCommercial Sale
  • Sub-TypeSpecial Purpose
  • StatusActive

Community Information

  • Address1801 Long Beach
  • Area5 - Wrigley Area
  • CityLong Beach
  • CountyLos Angeles
  • Zip Code90806

Interior

  • # of Stories1

Exterior

Lot Description

ZeroToOneUnitAcre, Corner Lot, Level, Near Public Transit, Paved

Additional Information

  • Date ListedJanuary 2nd, 2026
  • Days on Market71

Listing Details

  • AgentAustin Longwell
  • OfficeWest Shores Realty, Inc.
Please provide a valid email address.

Austin Longwell, West Shores Realty, Inc..

Based on information from California Regional Multiple Listing Service, Inc. as of March 17th, 2026 at 3:57pm PDT. This information is for your personal, non-commercial use and may not be used for any purpose other than to identify prospective properties you may be interested in purchasing. Display of MLS data is usually deemed reliable but is NOT guaranteed accurate by the MLS. Buyers are responsible for verifying the accuracy of all information and should investigate the data themselves or retain appropriate professionals. Information from sources other than the Listing Agent may have been included in the MLS data. Unless otherwise specified in writing, Broker/Agent has not and will not verify any information obtained from other sources. The Broker/Agent providing the information contained herein may or may not have been the Listing and/or Selling Agent.