Connect

Find us on...

Dashboard

Login using...

Shawn Bengtson

Office Broker - DRE 01236964

  • Office 760-805-7199
Questions?

400 Prado Road, San Luis Obispo – $7,995,000

  • $8M Price
  • 4.89 Acres
  • 511 DOM
  • $8M Price
  • 4.89 Acres
  • 511 DOM

400 Prado Road

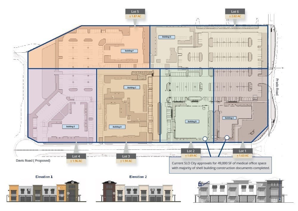
A commercial developer’s dream, the Prado Road Business Park presents an approved commercial subdivision in San Luis Obispo, featuring an 11 net acre 6-lot tract zoned Business Park, allowing a wide array of uses. Commercial tracts of this size are rare in the City of SLO and typically take up to a decade to get approved. Construction documents have been completed to finish the tract, and lot lines can still be adjusted to suit specific needs. In addition, the front two parcels of the tract are approved for 49,000 sf of medical space. A rare, unique opportunity to step into a turnkey commercial tract in the City of San Luis Obispo. $7,995,000

Essential Information

  • MLS® #SC24125611
  • Price$7,995,000
  • Bathrooms0.00
  • Acres4.89
  • TypeLand
  • StatusActive

Community Information

  • Address400 Prado Road
  • AreaSLO - San Luis Obispo
  • SubdivisionSan Luis Obispo(380)
  • CitySan Luis Obispo
  • CountySan Luis Obispo
  • Zip Code93401

Amenities

  • ViewNone

Exterior

  • Lot DescriptionLevel

Additional Information

  • Date ListedJune 19th, 2024
  • Days on Market511
  • ZoningBP

Listing Details

  • AgentPreston Thomas

Office

Colliers Tingey International Inc.

Please provide a valid email address.

Preston Thomas, Colliers Tingey International Inc..

Based on information from California Regional Multiple Listing Service, Inc. as of November 13th, 2025 at 8:30pm PST. This information is for your personal, non-commercial use and may not be used for any purpose other than to identify prospective properties you may be interested in purchasing. Display of MLS data is usually deemed reliable but is NOT guaranteed accurate by the MLS. Buyers are responsible for verifying the accuracy of all information and should investigate the data themselves or retain appropriate professionals. Information from sources other than the Listing Agent may have been included in the MLS data. Unless otherwise specified in writing, Broker/Agent has not and will not verify any information obtained from other sources. The Broker/Agent providing the information contained herein may or may not have been the Listing and/or Selling Agent.