Connect

Find us on...

Dashboard

Login using...

Shawn Bengtson

Office Broker - DRE 01236964

  • Office 760-805-7199
Questions?

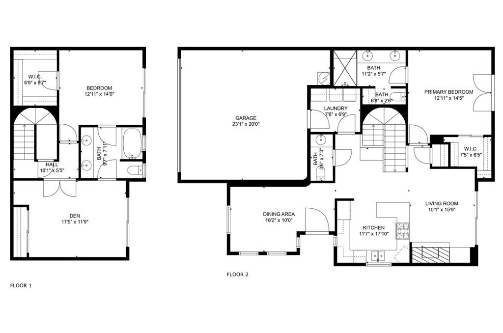
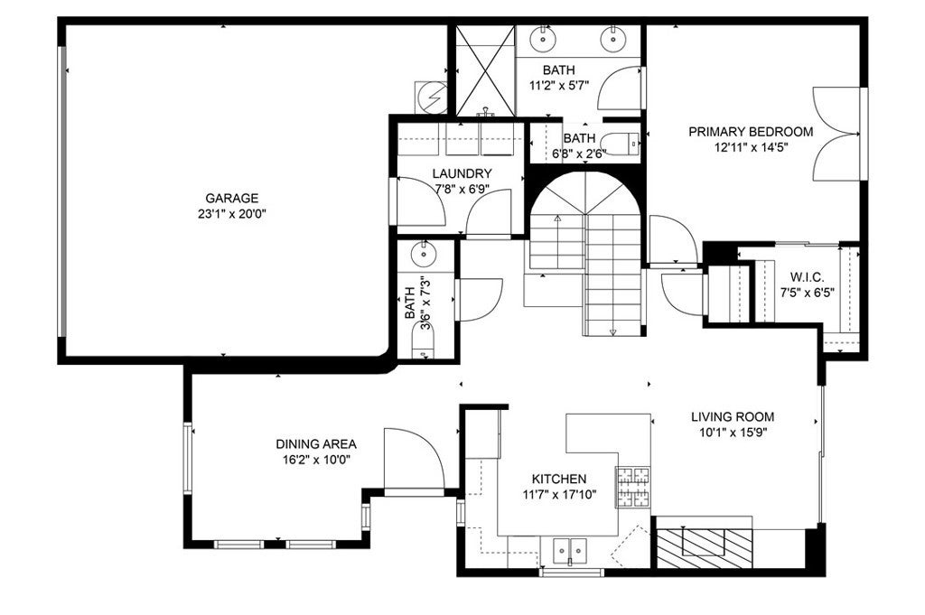
1943 Barcelona, Pismo Beach – $4,995

  • 2 Beds
  • 3 Baths
  • 1,682 Sqft
  • .13 Acres
  • 2 Beds
  • 3 Baths
  • 1,682 Sqft
  • .13 Acres

1943 Barcelona

Seize the opportunity to rent a delightful condo in a scenic beach town. This spacious residence offers 1,682 square feet of well-designed living space, featuring two bedrooms, a generous den, and three bathrooms. Enjoy breathtaking ocean views from its prime location. Key Features • Accessibility: Easily enter the main-level living area through the front door or the attached two-car garage. • Single Level Living, with additional rooms/bathrooms downstairs for privacy. • Modern Kitchen: The contemporary kitchen is equipped with sleek stainless-steel appliances, offering immediate ocean views. • Living Room: An inviting room, accentuated by a cozy fireplace, sets the perfect ambiance for relaxation or entertaining. • Tranquil Atmosphere: From the moment you step inside, the soothing sounds of the ocean will enchant you. The home features elegant hardwood and tile flooring in the kitchen and dining areas, while soft carpeting provides warmth and comfort in the bedrooms. The entire condo is decorated in neutral tones, allowing your personal style to shine. This space comes fully furnished and includes a refrigerator, along with a dedicated laundry room equipped with a washer and dryer. Lease Terms: • Duration: 6-month or 1-year lease available. • Availability: Starting December 1, 2025 • Rent: $4,995/month • Tenant pays for water, gas, and electricity; owner covers HOA fees. • Security Deposit: $4,995 due at lease signing • $49 move-in fee for digital images and walkthrough. Don’t wait—schedule a viewing today! This amazing opportunity won’t last long!

Essential Information

  • MLS® #SC25111638
  • Price$4,995
  • Bedrooms2
  • Bathrooms3.00
  • Full Baths2
  • Half Baths1
  • Square Footage1,682
  • Acres0.13
  • Year Built2004
  • TypeResidential Lease
  • Sub-TypeCondominium
  • StatusActive

Community Information

  • Address1943 Barcelona
  • AreaPSMO - Pismo Beach
  • SubdivisionPismo Beach (360)
  • CityPismo Beach
  • CountySan Luis Obispo
  • Zip Code93449

Amenities

  • UtilitiesNone
  • Parking Spaces2
  • # of Garages2
  • PoolNone

View

Coastline, Mountain(s), Neighborhood, Ocean, Panoramic

Interior

  • AppliancesDryer, Washer
  • HeatingForced Air
  • CoolingNone
  • FireplaceYes
  • FireplacesLiving Room
  • # of Stories2
  • StoriesTwo

School Information

  • DistrictSan Luis Coastal Unified

Additional Information

  • Date ListedMay 19th, 2025
  • Days on Market211
  • ZoningPR

Listing Details

  • AgentKimberly Conti Degroot

Office

Kimberly's Global Real Estate Corp

Please provide a valid email address.

Price Change History for 1943 Barcelona, Pismo Beach, (MLS® #SC25111638)

Date Details Change
Price Reduced from $5,200 to $4,995 $205 (3.94%)

Kimberly Conti Degroot, Kimberly's Global Real Estate Corp.

Based on information from California Regional Multiple Listing Service, Inc. as of February 5th, 2026 at 1:55am PST. This information is for your personal, non-commercial use and may not be used for any purpose other than to identify prospective properties you may be interested in purchasing. Display of MLS data is usually deemed reliable but is NOT guaranteed accurate by the MLS. Buyers are responsible for verifying the accuracy of all information and should investigate the data themselves or retain appropriate professionals. Information from sources other than the Listing Agent may have been included in the MLS data. Unless otherwise specified in writing, Broker/Agent has not and will not verify any information obtained from other sources. The Broker/Agent providing the information contained herein may or may not have been the Listing and/or Selling Agent.