Connect

Find us on...

Dashboard

Login using...

Shawn Bengtson

Office Broker - DRE 01236964

  • Office 760-805-7199
Questions?

254 Granada Drive, San Luis Obispo – $0

  • $0 Price
  • 1.29 Acres
  • 168 DOM
  • $0 Price
  • 1.29 Acres
  • 168 DOM

254 Granada Drive

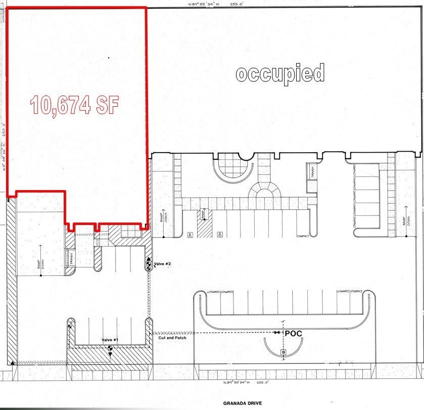
A 10,674 SF warehouse for sublease. $1.30/SF Gross. This warehouse has high ceilings and a grade level roll-up door. Sublease term is negotiable.

Essential Information

  • MLS® #SC25120212
  • Bathrooms0.00
  • Acres1.29
  • Year Built1988
  • TypeCommercial Lease
  • Sub-TypeWarehouse
  • StatusActive

Community Information

  • Address254 Granada Drive
  • AreaSLO - San Luis Obispo
  • CitySan Luis Obispo
  • CountySan Luis Obispo
  • Zip Code93401

Amenities

  • UtilitiesWater Not Available

Interior

  • # of Stories1

Exterior

  • Lot DescriptionTwoToFiveUnitsAcre

Additional Information

  • Date ListedMay 29th, 2025
  • Days on Market168

Listing Details

  • AgentDerek Senn

Office

Anderson & Senn Commercial Real Estate

Please provide a valid email address.

Derek Senn, Anderson & Senn Commercial Real Estate.

Based on information from California Regional Multiple Listing Service, Inc. as of November 14th, 2025 at 4:30am PST. This information is for your personal, non-commercial use and may not be used for any purpose other than to identify prospective properties you may be interested in purchasing. Display of MLS data is usually deemed reliable but is NOT guaranteed accurate by the MLS. Buyers are responsible for verifying the accuracy of all information and should investigate the data themselves or retain appropriate professionals. Information from sources other than the Listing Agent may have been included in the MLS data. Unless otherwise specified in writing, Broker/Agent has not and will not verify any information obtained from other sources. The Broker/Agent providing the information contained herein may or may not have been the Listing and/or Selling Agent.