Connect

Find us on...

Dashboard

Login using...

Shawn Bengtson

Office Broker - DRE 01236964

  • Office 760-805-7199
Questions?

859 Ricardo Court, San Luis Obispo – $0

  • $0 Price
  • .23 Acres
  • 147 DOM
  • $0 Price
  • .23 Acres
  • 147 DOM

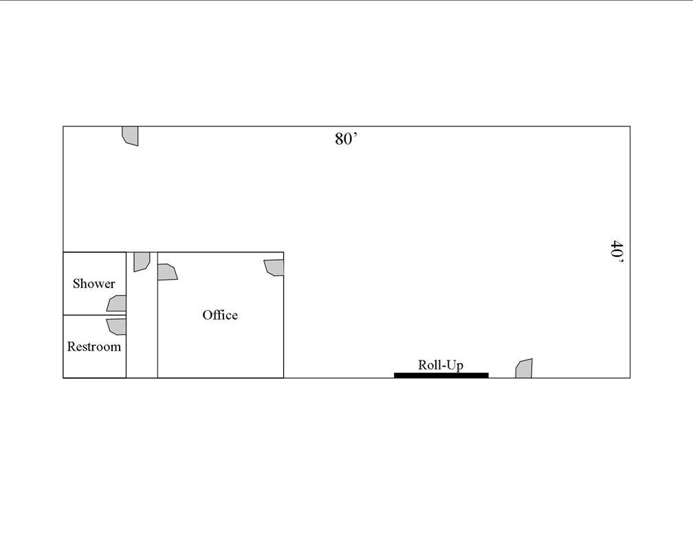
859 Ricardo Court

859 Ricardo Court has twelve on-site parking spaces, a restroom, a shower, a large private office, a roll-up door, and a warehouse with skylights.

Essential Information

  • MLS® #SC25193436
  • Bathrooms0.00
  • Acres0.23
  • TypeCommercial Lease
  • Sub-TypeWarehouse
  • StatusActive

Community Information

  • Address859 Ricardo Court
  • AreaSLO - San Luis Obispo
  • CitySan Luis Obispo
  • CountySan Luis Obispo
  • Zip Code93401

Amenities

  • UtilitiesWater Not Available

Interior

  • # of Stories1

Exterior

  • Lot DescriptionZeroToOneUnitAcre

Additional Information

  • Date ListedAugust 27th, 2025
  • Days on Market147

Listing Details

  • AgentDerek Senn

Office

Anderson & Senn Commercial Real Estate

Please provide a valid email address.

Derek Senn, Anderson & Senn Commercial Real Estate.

Based on information from California Regional Multiple Listing Service, Inc. as of January 21st, 2026 at 5:30pm PST. This information is for your personal, non-commercial use and may not be used for any purpose other than to identify prospective properties you may be interested in purchasing. Display of MLS data is usually deemed reliable but is NOT guaranteed accurate by the MLS. Buyers are responsible for verifying the accuracy of all information and should investigate the data themselves or retain appropriate professionals. Information from sources other than the Listing Agent may have been included in the MLS data. Unless otherwise specified in writing, Broker/Agent has not and will not verify any information obtained from other sources. The Broker/Agent providing the information contained herein may or may not have been the Listing and/or Selling Agent.