Connect

Find us on...

Dashboard

Login using...

Shawn Bengtson

Office Broker - DRE 01236964

  • Office 760-805-7199
Questions?

8840 Morro Road, Atascadero – $550,000

  • $550k Price
  • .15 Acres
  • 145 DOM
  • $550k Price
  • .15 Acres
  • 145 DOM

8840 Morro Road

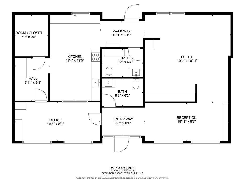
Freestanding commercial condo on Atascadero’s westside! Built in 2005, this detached unit offers over 1,400 sq. ft. with two ADA-compliant restrooms, a private office, reception area, storage, break room, and a large open space (see last photo for floor plan). The property provides convenient access off Highway 41 West and is situated near other professional business offices, Atascadero Lake Park, and the Central Coast Zoo. Long-term lease just renewed for an additional three years with the following pay schedule: $2,275.56 per month 11/01/25 - 10/31/26; $2,389.34 per month 11/01/26 - 10/31/27; $2,508.80 per month 11/01/27 - 10/31/28.

Essential Information

  • MLS® #SC25226108
  • Price$550,000
  • Bathrooms0.00
  • Acres0.15
  • Year Built2006
  • TypeCommercial Sale
  • Sub-TypeOffice
  • StatusActive

Community Information

  • Address8840 Morro Road
  • AreaATSC - Atascadero
  • CityAtascadero
  • CountySan Luis Obispo
  • Zip Code93422

Interior

  • HeatingNatural Gas
  • CoolingCentral Air
  • # of Stories1

Exterior

  • Lot DescriptionZero Lot Line

Additional Information

  • Date ListedSeptember 26th, 2025
  • Days on Market145
  • ZoningCR

Listing Details

  • AgentValerie Walla
  • OfficeCentury 21 Masters
Please provide a valid email address.

Valerie Walla, Century 21 Masters.

Based on information from California Regional Multiple Listing Service, Inc. as of February 18th, 2026 at 5:30am PST. This information is for your personal, non-commercial use and may not be used for any purpose other than to identify prospective properties you may be interested in purchasing. Display of MLS data is usually deemed reliable but is NOT guaranteed accurate by the MLS. Buyers are responsible for verifying the accuracy of all information and should investigate the data themselves or retain appropriate professionals. Information from sources other than the Listing Agent may have been included in the MLS data. Unless otherwise specified in writing, Broker/Agent has not and will not verify any information obtained from other sources. The Broker/Agent providing the information contained herein may or may not have been the Listing and/or Selling Agent.