Connect

Find us on...

Dashboard

Login using...

Shawn Bengtson

Office Broker - DRE 01236964

  • Office 760-805-7199
Questions?

3970 Orcutt, San Luis Obispo – $3,000,000

  • $3M Price
  • 106 Acres
  • 26 DOM
  • $3M Price
  • 106 Acres
  • 26 DOM

3970 Orcutt

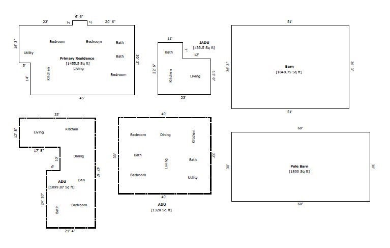
Edna Ranch offers a rare opportunity to partner in a legacy asset that blends classic ranch living with significant long-term development potential—just minutes from downtown San Luis Obispo. This offering is for a 50% joint venture interest, ideal for an investor seeking both current income and future upside. Set across expansive acreage in the heart of Edna Valley, the property features sweeping panoramic views of the Cuesta Mountain Range and the iconic Nine Sisters. The ranch is improved with four existing residences, providing immediate utility and income potential. The land is rich with natural features, including three reservoirs, two creeks, mature trees, and rolling terrain that enhances both privacy and scenic appeal. Water resources are supported by three productive wells with approximate yields of 20, 14, and 5 gallons per minute. Two all-weather access roads from Orcutt Road provide convenient and reliable access throughout the property. Strategically positioned adjacent to city limits and within the City’s Sphere of Influence, the property is identified for future annexation—currently anticipated around 2028 per LAFCO guidance—creating a compelling long-term investment opportunity. A prior ownership vision contemplated subdivision into 8–9 legal parcels, with remaining acreage suited for higher-density residential development, including both multifamily and single-family housing. This offering represents a 50% joint venture interest with existing ownership, with an investment target of $3,000,000.

Essential Information

  • MLS® #SC26059988
  • Price$3,000,000
  • Bathrooms0.00
  • Acres106.00
  • TypeCommercial Sale
  • Sub-TypeSpecial Purpose
  • StatusActive

Community Information

  • Address3970 Orcutt
  • AreaSLO - San Luis Obispo
  • CitySan Luis Obispo
  • CountySan Luis Obispo
  • Zip Code93401

Interior

  • # of Stories1

Exterior

  • Lot DescriptionHorse Property, Agricultural

Additional Information

  • Date ListedMarch 19th, 2026
  • Days on Market26

Listing Details

  • AgentPatrick Smith
  • OfficeAvila Beach Realty Inc.
Please provide a valid email address.

Price Change History for 3970 Orcutt, San Luis Obispo, (MLS® #SC26059988)

Date Details Change
Price Reduced from $6,000,000 to $3,000,000 $3,000,000 (50.00%)

Patrick Smith, Avila Beach Realty Inc..

Based on information from California Regional Multiple Listing Service, Inc. as of April 14th, 2026 at 11:46am PDT. This information is for your personal, non-commercial use and may not be used for any purpose other than to identify prospective properties you may be interested in purchasing. Display of MLS data is usually deemed reliable but is NOT guaranteed accurate by the MLS. Buyers are responsible for verifying the accuracy of all information and should investigate the data themselves or retain appropriate professionals. Information from sources other than the Listing Agent may have been included in the MLS data. Unless otherwise specified in writing, Broker/Agent has not and will not verify any information obtained from other sources. The Broker/Agent providing the information contained herein may or may not have been the Listing and/or Selling Agent.