Connect

Find us on...

Dashboard

Login using...

Shawn Bengtson

Office Broker - DRE 01236964

  • Office 760-805-7199
Questions?

975 Broad Street, San Luis Obispo – $1,749,000

  • 3 Beds
  • 3 Baths
  • 1,809 Sqft
  • .11 Acres
  • 3 Beds
  • 3 Baths
  • 1,809 Sqft
  • .11 Acres

975 Broad Street

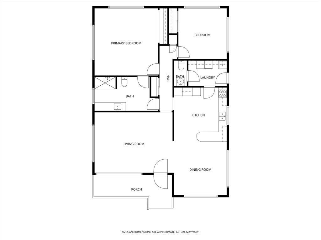
Charming and inviting, this high-profile, iconic property offers a rare opportunity to own a single-level 2-bedroom, 1.5-bath home in one of downtown San Luis Obispo’s most coveted and recognizable locations. Originally built in 1961, the home blends timeless vintage charm with comfortable, everyday living. Ideally situated directly across from the Old Mission and adjacent to The San Luis Obispo County Historical Society Museum, it is just steps to the vibrant Mission Plaza and serves as a true gateway to downtown San Luis Obispo. An inviting covered porch sets the tone, offering the perfect spot to relax and take in the energy of this premier location. Inside, the thoughtfully designed layout showcases warmth and character, with light-filled living spaces that create a bright and welcoming atmosphere. The farmhouse-style kitchen serves as the heart of the home, featuring classic design elements, ample cabinetry, and a cozy, nostalgic feel that’s both functional and full of charm. An attached studio adds incredible versatility—ideal for guests, home office, or potential rental opportunity. A detached 2-car garage provides ample parking, storage, or workshop space in addition to plentiful off-street parking. Zoned R3, this property presents exceptional flexibility and potential in a premier downtown setting. Whether envisioned as a primary residence, investment property, or future development opportunity, the zoning allows for a variety of possibilities (buyer to verify with the City). Combined with its superb, high-visibility location and proximity to restaurants, shops, and cultural landmarks, this offering represents a truly outstanding opportunity to invest in one of San Luis Obispo’s most dynamic and desirable areas.

Essential Information

  • MLS® #SC26060695
  • Price$1,749,000
  • Bedrooms3
  • Bathrooms3.00
  • Half Baths1
  • Square Footage1,809
  • Acres0.11
  • Year Built1961
  • TypeResidential
  • Sub-TypeSingle Family Residence
  • StatusActive

Community Information

  • Address975 Broad Street
  • AreaSLO - San Luis Obispo
  • SubdivisionSan Luis Obispo(380)
  • CitySan Luis Obispo
  • CountySan Luis Obispo
  • Zip Code93401

Amenities

  • Parking Spaces5
  • ParkingConcrete, Driveway, Garage
  • # of Garages2
  • GaragesConcrete, Driveway, Garage
  • ViewMountain(s), Neighborhood
  • PoolNone

Utilities

Cable Available, Electricity Connected, Natural Gas Connected, Phone Available, Sewer Connected, Water Connected

Interior

  • HeatingForced Air
  • CoolingNone
  • FireplacesNone
  • # of Stories1
  • StoriesOne

Interior Features

Ceiling Fan(s), All Bedrooms Down, Country Kitchen

Appliances

Dishwasher, Free-Standing Range, Disposal, Refrigerator, Dryer, Washer

Exterior

  • ExteriorStucco
  • Exterior FeaturesRain Gutters
  • Lot DescriptionNear Public Transit, Yard
  • RoofComposition
  • ConstructionStucco
  • FoundationNone

School Information

  • DistrictSan Luis Coastal Unified
  • MiddleLaguna
  • HighSan Luis Obispo

Additional Information

  • Date ListedMarch 19th, 2026
  • ZoningR3

Listing Details

  • AgentDenise Silva Topham
  • OfficeBHGRE HAVEN PROPERTIES
Please provide a valid email address.

Denise Silva Topham, BHGRE HAVEN PROPERTIES.

Based on information from California Regional Multiple Listing Service, Inc. as of March 20th, 2026 at 7:50pm PDT. This information is for your personal, non-commercial use and may not be used for any purpose other than to identify prospective properties you may be interested in purchasing. Display of MLS data is usually deemed reliable but is NOT guaranteed accurate by the MLS. Buyers are responsible for verifying the accuracy of all information and should investigate the data themselves or retain appropriate professionals. Information from sources other than the Listing Agent may have been included in the MLS data. Unless otherwise specified in writing, Broker/Agent has not and will not verify any information obtained from other sources. The Broker/Agent providing the information contained herein may or may not have been the Listing and/or Selling Agent.