Connect

Find us on...

Dashboard

Login using...

Shawn Bengtson

Office Broker - DRE 01236964

  • Office 760-805-7199
Questions?

194 Cohasset Road # A, Chico – $5,454

  • $5.5k Price
  • 4.81 Acres
  • 339 DOM
  • $5.5k Price
  • 4.81 Acres
  • 339 DOM

194 Cohasset Road # A

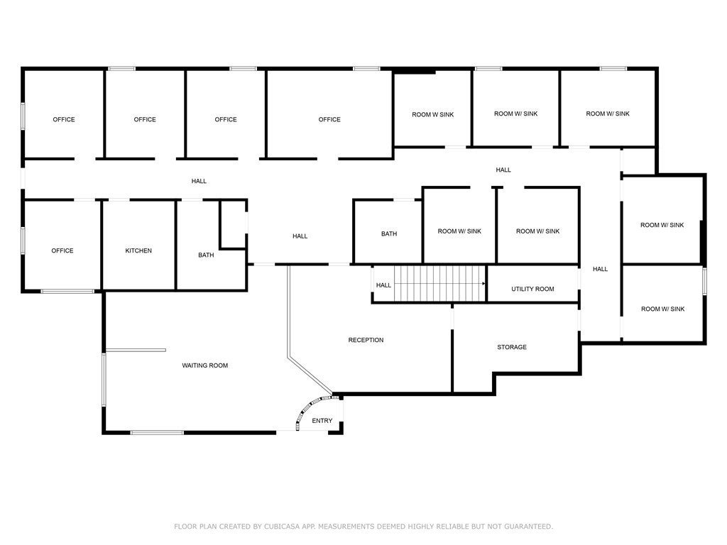
Prime medical office space located in a highly desirable Garden Villa complex. This former pediatric primary care office offers an ideal setup for healthcare providers. The 3,452 sq. ft. suite features a spacious waiting and reception area, seven exam rooms with sinks, five private offices, a kitchenette for staff, and two private restrooms. Additionally, there is a dedicated storage room to accommodate operational needs. The flexible floor plan can easily be adapted to suit a variety of medical or professional uses. With ample parking and a convenient location, this is an excellent opportunity for medical practitioners or businesses seeking a turnkey space in a professional, well maintained professional park.

Essential Information

  • MLS® #SN25061505
  • Price$5,454
  • Bathrooms0.00
  • Acres4.81
  • Year Built2005
  • TypeCommercial Lease
  • Sub-TypeOffice
  • StatusActive

Community Information

  • Address194 Cohasset Road # A
  • CityChico
  • CountyButte
  • Zip Code95926

Amenities

Utilities

Electricity Connected, Sewer Connected, Water Connected

Interior

  • HeatingCentral
  • CoolingCentral Air
  • # of Stories2

Exterior

  • Lot DescriptionLandscaped, Walkstreet

Additional Information

  • Date ListedMarch 20th, 2025
  • Days on Market339

Listing Details

  • AgentCarrie Welch
  • OfficeCapital Rivers Commercial Inc
Please provide a valid email address.

Carrie Welch, Capital Rivers Commercial Inc.

Based on information from California Regional Multiple Listing Service, Inc. as of February 22nd, 2026 at 6:45am PST. This information is for your personal, non-commercial use and may not be used for any purpose other than to identify prospective properties you may be interested in purchasing. Display of MLS data is usually deemed reliable but is NOT guaranteed accurate by the MLS. Buyers are responsible for verifying the accuracy of all information and should investigate the data themselves or retain appropriate professionals. Information from sources other than the Listing Agent may have been included in the MLS data. Unless otherwise specified in writing, Broker/Agent has not and will not verify any information obtained from other sources. The Broker/Agent providing the information contained herein may or may not have been the Listing and/or Selling Agent.